direct naar inhoud van 2.7 Ontwikkeling Edo Koi
Plan: International Trade Centre (ITC) 2012
Status: vastgesteld
Plantype: bestemmingsplan
IMRO-idn: NL.IMRO.1672.11BPHDitcterrein-VG01

2.7 Ontwikkeling Edo Koi

Zoals beschreven in paragraaf 2.2.2 is aan de noordoostelijke rand van het plangebied een perceel grond van 5832 m2 gelegen dat oorspronkelijk niet tot het bedrijventerrein behoort. Het terrein is op dit moment deels verhard en deels onverhard en wordt momenteel gebruikt voor de opslag van potplanten in de buitenlucht. Het maaiveld is grotendeels bedekt met folie, dit vanwege het voormalige gebruik van het terrein voor containerteelt.

2.7.1 Projectbeschrijving

De ontwikkeling van het terrein is gericht op het uitbreiden van de bedrijfsactiviteiten op het bestaande pereel Belgiƫlaan 1F, het kweken van koikarpers. Het terrein zal worden ingericht in Japanse sferen om zo een stuk Japanse cultuur aan Nederland te laten zien. Het plan is om meerdere, wisselende thema's (bijvoorbeeld: vissen, vormbomen, bonsai, tuinbeplanting en ornamenten, cultuur en architectuur) aan bod te laten komen. Hiervoor zal het perceel worden ingericht als een Japans park met speciale vormbomen en tuinbeplanting. De huidige inrichting zal hiervoor worden opgeschoond en er zullen bekkens worden gerealiseerd voor de teelt van Koikarpers (en aanverwanten).

2.7.2 Themapaviljoens

Er zullen op het terrein vijf thema paviljoens geplaatst worden. Maximaal twee paviljoens zullen bestemd zijn voor koikarpers. In dat geval zullen een aantal vijvers aan de binnen -en buitenzijde van het paviljoen worden gemaakt. In het paviljoen zal tevens een (geluidloze) filterbehuizing worden geplaatst. De andere paviljoens zullen voornamelijk gebruikt worden voor bonsai(vorming), tuinbeplanting, architectuur en algemene Japanse cultuur doeleinden waarbij geen sprake is van een filterbehuizing.

2.7.3 Bouwmogelijkheden

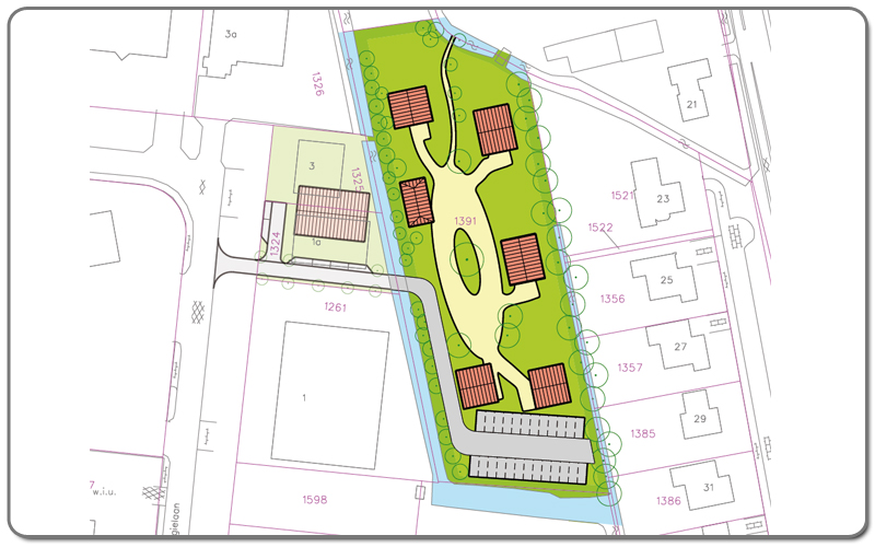
Ieder paviljoen (onafhankelijk van het thema) zal maximaal 200 m2 bedragen, met een maximale hoogte van 5 meter. De gebouwen worden op een onderlinge afstand van minimaal 15 meter in de lengterichting en minimaal 10 meter in de breedterichting van elkaar geplaatst. Omdat op het terrein de behoefte is aan voorziening voor de eigen productie van water zal eveneens een filterhuisje van 5m x 10m x 2,5m (h) geplaatst worden. Op de onderstaande overzichtstekening is de voorgenomen indeling te zien. Het totale bouwvlak wat is opgenomen op de planverbeelding mag voor 25% bebouwd worden.

Tussen de perceelsgrens aan de zijde van de bedrijfswoningen aan de Roemer en de op te richten paviljoens zit een minimale afstand van 7 meter. Aan de overige zijden van het perceel is dit 3 meter. met uitzondering van de zuidzijde van het perceel daar is de grens tussen het perceel en de te realiseren parkeerplaatsen 2 meter. Benadrukt wordt dat de groene omzoming van het plangebied aan de zijde van de bedrijfswoningen aan de Roemer behouden blijft. Er is op deze manier voldoende afscherming tussen het plangebied en de bedrijfswoningen. Om deze groene buffer en landschappelijke inpassing nog meer te garanderen is door de initiatiefnemer een beplantingsplan opgesteld. Het beplantingsplan is opgenomen in bijlage 2 en juridisch vertaald in de planregels, in artikel 15.

Het uiterlijk van de paviljoens zal, na overleg met een architect, een Japanse uitstraling krijgen. Behalve de bovengenoemde paviljoens zal bij de ingang van het terrein een Paviljoen komen waar men terecht kan voor algemene informatie.

2.7.4 Bedrijfsvoering

De koikarperkwekerij richt zich op de kweek van koikarpers en daaraan verwante artikelen en diensten. De kwekerij zal van maandag tot en met woensdag van 8:00 uur tot 17:00 uur geopend zijn voor groothandelaren, verwacht wordt dat er dan tussen de 10 tot 20 bezoekers per dag het bedrijf zullen bezoeken. Bij het bedrijf is sprake van productiegerichte detailhandel. Van donderdag tot en met zaterdag is de kwekerij van 9:00 uur tot 17:00 uur geopend voor particuliere verkoop. Er worden dan per dag 50 bezoekers verwacht.

2.7.5 Parkeren

Ten aanzien van het benodigd aantal parkeerplaatsen moet worden voldaan aan de gemeentelijke Parkeernota. Hierin is bepaald dat voor gebieden die vallen onder "overige functies" en waar het arbeidsextensieve en bezoekersintensieve bedrijven betreft de parkeernorm 1,7 parkeerplaats per 100 m2 bruto vloeroppervlak is. Bepaald is dat het perceel voor 25% bebouwd mag worden. Het perceel is in totaal 5832 m2 groot. Het bruto vloeroppervlak (25% van het totaal) is 1458 m2 groot. Dit betekent dat er op het perceel in totaal 25 parkeerplaatsen aanwezig moeten zijn. Dit buiten de zes parkeerplaatsen die volgens het geldende bestemmingsplan op het huidige terrein voor de huidige activiteiten en bebouwing nodig zijn. Het realiseren van de 25 parkeerplaatsen is juridisch vertaald in de planregels, in artikel 4.5.

afbeelding "i_NL.IMRO.1672.11BPHDitcterrein-VG01_0006.jpg"

Figuur 2.2: Overzichtstekening nieuwe situatie met situering parkeerplaatsen

2.7.6 Ruimtelijke onderbouwing

Door het bedrijf Edo Koi is op 26 september 2009 bij het college van burgemeester en wethouders een principeverzoek ingediend om het bedrijf op bovenstaand perceel uit te breiden. Op 23 november 2009 is dit verzoek positief beoordeeld. Dit project zal positief bijdragen aan de verdere ontwikkeling van de Greenport regio Boskoop in het algemeen en het ITC-terrein te Rijnwoude in het bijzonder. Met de komst van een nieuwe vorm van agrarische sierteelt (bonsai(vorming) en tuinbeplanting uit de Japanse cultuur) de diversiteit van het ITC-terrein toeneemt, wordt de handels- en promotiefunctie ten behoeve van de sierteelt verstevigd.

Op 24 november 2011 is een concept ruimtelijke onderbouwing opgesteld waarin is aangetoond dat de gevraagde uitbreiding van het bedrijf planologisch en milieutechnisch inpasbaar is. Op 29 november 2011 is dit planinitiatief voor direct omwonenden en belanghebbenden tijdens een informatieavond gepresenteerd. Als vervolg hierop hebben de direct omwonenden op 22 december 2011 een schriftelijk voorstel ontvangen van de planologische invulling van het perceel Edo Koi. Men heeft de gelegenheid gehad hierop te reageren, de uitkomsten zijn opgenomen in de Nota van Beantwoording inspraak en vooroverleg en wordt verder besproken in hoofdstuk 7.

De ruimtelijke onderbouwing is om advies voorgelegd aan de Omgevingsdienst West-Holland. De Omgevingsdienst komt in haar advies van 10 februari 2012 tot de conclusie dat er vanuit bedrijven en milieuzonering geen knelpunten zijn te verwachten. De uitkomsten hiervan zijn opgenomen in hoofdstuk 4.

Geconcludeerd kan worden dat er zowel vanuit milieu oogpunt als planologisch oogpunt geen bedenkingen zijn ten aanzien van de ontwikkeling van dit perceel. De uitbreiding is hierdoor opgenomen in dit bestemmingplan.