Type plan: bestemmingsplan
Naam van het plan: Hoorn 100
Status: vastgesteld
Plan identificatie: NL.IMRO.0484.BPHoorn100-VA01

Toelichting

1 Inleiding
1.1 Aanleiding
Van Leeuwen Projectontwikkeling is voornemens 3 bouwkavels op het perceel aan de Hoorn 100 in Alphen aan den Rijn vrij te geven waarop (half)vrijstaande woningen kunnen worden gerealiseerd. Momenteel is hier een meubelzaak gevestigd en is sprake van een detailhandelsbestemming. Om woningbouw mogelijk te maken is het noodzakelijk om af te wijken van het vigerende bestemmingsplan 'Alphen-West'.
 
Afwijken van het vigerende bestemmingsplan is mogelijk middels een planologische procedure, mits goed ruimtelijk onderbouwd. In onderhavig geval is gekozen voor het opstellen van een nieuw bestemmingsplan in het kader van de Wro. In de toelichting op het bestemmingsplan wordt uiteengezet waarom de gemeente het aanvaardbaar vindt om voor dit specifieke project af te wijken van de geldende bestemmingsplanregels. Het geeft inzicht in de bij de afweging betrokken belangen en aspecten, alsmede in hoeverre het project past in een breder ruimtelijk verband en perspectief.
1.2 Ligging plangebied
Het plangebied Hoorn 100 bevindt zich ten noorden van het centrum van Alphen aan den Rijn in de wijk Hoorn. De Oude Rijn is direct ten noorden van het plangebied gelegen. Het plangebied maakt dan ook onderdeel uit van het stedelijk lint Oude Rijn.
 
Op de navolgende afbeeldingen zijn de ligging van het plangebied en de plangrens globaal aangegeven:
  
Globale ligging plangebied (rode cirkel) Bron: ruimtelijkeplannen.zuid-holland.nl/vrm
  
Globale plangrens plangebied (rode omkadering) Bron: ruimtelijkeplannen.zuid-holland.nl/vrm
 
1.3 Geldend bestemmingsplan
Het plangebied ligt binnen de plangrenzen van het bestemmingsplan 'Alphen-West'. Dit bestemmingsplan is op 27 november 2008 vastgesteld. De gronden in het plangebied hebben in dit bestemmingsplan de bestemming 'detailhandelsdoeleinden' met de aanduiding 'volumineuze detailhandel'.
Binnen deze bestemming is uitsluitend detailhandel in volumineuze goederen toegestaan, inclusief de bij deze doeleinden behorende voorzieningen zoals (ontsluitings)wegen, nutsvoorzieningen, groenvoorzieningen, parkeervoorzieningen en water ten behoeve van wateraanvoer en -afvoer, waterberging en sierwater. In het bestemmingsvlak is een bouwvlak gelegen. De maximale goothoogte bedraagt 4 meter.  
   
Uitsnede geldend bestemmingsplan 'Alphen-West' (plangebied: rode omkadering)
 
Het realiseren van woningen is niet passend binnen de bestemming 'detailhandel', zodat het bestemmingsplan voor de gronden in het plangebied moet worden herzien om de realisatie van 3 (half)vrijstaande woningen mogelijk te maken. Om woningbouw mogelijk te maken dient een nieuw juridisch-planologisch kader te worden opgesteld.
1.4 Leeswijzer
De huidige en de toekomstige situatie in het plangebied worden in hoofdstuk 2 beschreven. In hoofdstuk 3 is een beschrijving van het relevante nationale, provinciale en gemeentelijke beleid opgenomen. In hoofdstuk 4 wordt de uitvoerbaarheid van het project onderbouwd met betrekking tot de verschillende omgevingsaspecten. In hoofdstuk 5 wordt vervolgens een juridische planbeschrijving gegeven. Tot slot bevat hoofdstuk 6 de maatschappelijke uitvoerbaarheid van het plan, waarbij de uitkomsten van het vooroverleg en een verslag van de tegen het ontwerpbestemmingsplan ingediende zienswijzen zijn opgenomen.
2 Planbeschrijving
2.1 Huidige situatie
Het plangebied, Hoorn 100 in Alphen aan den Rijn, bevindt zich aan de noordoostzijde van de wijk Hoorn en is direct gelegen aan de Oude Rijn. Het grootste deel van het plangebied wordt ingevuld met bebouwing. Dit betreft een verouderd pand van circa 1.500 m² waar momenteel een meubelwinkel is gevestigd. Daarvoor heeft het pand enige tijd leeggestaan.
 
Aan de Hoorn bevinden zich enkele langsparkeerplaatsen. De Hoorn is een doorgaande weg welke onder andere in verbinding staat met de Prins Bernhardlaan (oostzijde) en N11 (zuidwestzijde) richting Leiden of Bodegraven. Vanaf de N11 is eveneens de rijksweg A12 te bereiken.  
 
Ten westen van het plangebied is een parkeerterrein gelegen welke behoort tot het naastgelegen bedrijf Goedhart Keukens & Tegels. Ten zuidwesten van het plangebied ligt het Vogelpark Avifauna. Ten (zuid)oosten van het plangebied bevinden zich voornamelijk woningen.
   
Navolgende afbeelding geeft het plangebied in vogelvluchtperspectief weer.
 
Vogelvluchtperspectief plangebied
2.2 Toekomstige situatie
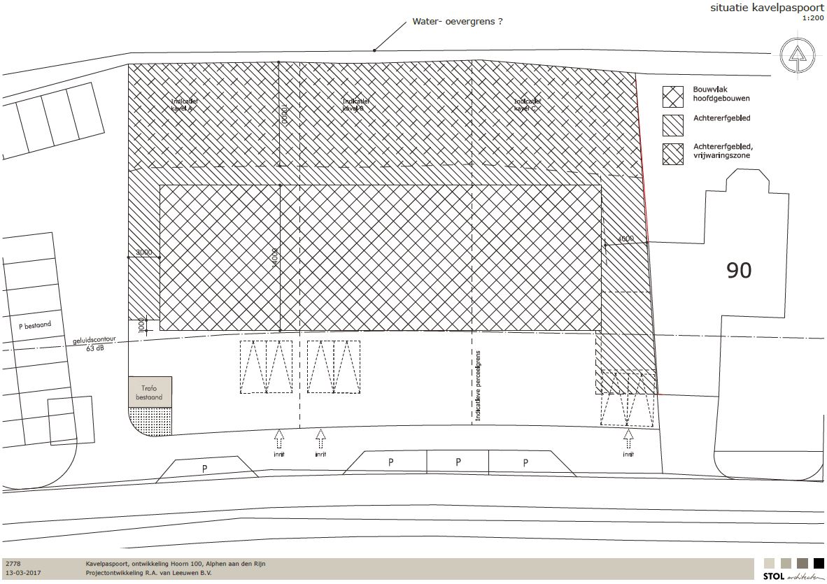
Met de voorgenomen ontwikkeling wordt de huidige bebouwing in het plangebied gesloopt en wordt de mogelijkheid geboden 3 (half)vrijstaande woningen te realiseren. Onderstaande afbeelding geeft de situering van de woningen op het perceel weer.
 
Kavelpaspoort
 
De twee oostelijke woningen worden voorzien van een maximale goot- en bouwhoogte van 6 en 10 meter.  Het hoofdgebouw op de westelijke kavel (kavel A) wordt voorzien van een maximale goot- en bouwhoogte van 7 en 11 meter. Wat betreft architectuur en beeldkwaliteit wordt aangesloten op de Welstandsnota, waarin het plangebied onderdeel uitmaakt van het 'stedelijk lint Oude Rijn'. De woningen zijn dermate georiënteerd dat ze over een open, uitnodigende uitstraling en gerichtheid beschikken op zowel de Hoorn als de Oude Rijn. De nokrichting zal haaks op de Oude Rijn zijn.
 
In totaal zullen een tweetal inritten worden gerealiseerd vanaf de Hoorn. Per woning worden 2 parkeerplaatsen voorzien. Tevens blijven een viertal langsparkeerplaatsen aan de Hoorn behouden. De tuin van de woningen is, net als bij de westelijk gelegen woningen, aan de noordzijde voorzien, aan de oever van de Oude Rijn.
   
Met de situering van de woningen is rekening gehouden met de vrijwaringszone provinciale vaarwegen van de Verordening Ruimte. Het kavel ligt in een rechtstand, daarbij hoort een vrijwaringszone van 10 meter. De op het kavel beoogde woonbebouwing ligt geheel buiten deze vrijwaringszone.
Met betrekking tot het binnen bedoelde vrijwaringzone gelegen perceelsgedeelte geldt dat 10 meter vanaf de waterzijde van de oever geen diepwortelende beplanting mag worden geplaatst en geen schuren, tuinhuisjes of andere hoogopgaande getimmerten mogen worden aangebracht. Ten aanzien van de huidige situatie is dit uit nautisch oogpunt een verbetering.
3 Beleidskader
 
3.1 Nationaal beleid
3.1.1 Structuurvisie Infrastructuur en Ruimte
De Structuurvisie Infrastructuur en Ruimte (SVIR) is op 13 maart 2012 in werking getreden. In deze visie schetst het Rijk de ambities tot 2040 en de doelen, belangen en opgaven tot 2028. Daarmee moet Nederland concurrerend, bereikbaar en veilig worden. De structuurvisie gaat uit van het adagium 'decentraal, tenzij'. Het rijk kiest voor een selectievere inzet van rijksbeleid op slechts 13 nationale belangen. Voor deze belangen is het Rijk verantwoordelijk en wil het resultaten boeken. Buiten deze belangen hebben decentrale overheden beleidsvrijheid. Afspraken over verstedelijking, groene ruimte en landschap laat het Rijk over aan de provincies en gemeenten. Gemeenten krijgen ruimte voor kleinschalige natuurlijke groei en voor het bouwen van huizen die aansluiten bij de woonwensen van mensen. Bij het beheren en ontwikkelen van natuur krijgen boeren en particulieren in het landelijk gebied een grotere rol.
 
De woon- en werklocaties in steden en dorpen moeten aansluiten op de kwalitatieve vraag en de locaties voor transformatie en herstructurering worden zo veel mogelijk benut. Om zorgvuldig ruimtegebruik te bevorderen heeft het Rijk enkel nog een 'ladder voor duurzame verstedelijking’ opgenomen. Hierdoor neemt de bestuurlijke drukte af en ontstaat er ruimte voor regionaal maatwerk.
 
Planspecifiek
Aangezien de beoogde ontwikkeling geen rijksverantwoordelijkheid omvat zijn er geen raakvlakken met het Rijksbeleid. In toelichting paragraaf 3.1.3 wordt op de ladder voor duurzame verstedelijking ingegaan.
 
3.1.2 Besluit algemene regels ruimtelijke ordening
De wetgever heeft in de Wro, ter waarborging van de nationale of provinciale belangen, de besluitmogelijkheden van lagere overheden begrensd. Indien nationale of provinciale belangen dat met het oog op een goede ruimtelijke ordening noodzakelijk maken, kunnen bij of krachtens algemene maatregel van bestuur respectievelijk bij of krachtens provinciale verordening regels worden gesteld omtrent de inhoud van bestemmingsplannen. In het Besluit algemene regels ruimtelijke ordening (Barro) zijn 14 nationale belangen opgenomen die in de Structuurvisie Infrastructuur en Ruimte (SVIR) zijn herbevestigd. Voor deze belangen is het Rijk verantwoordelijk en wil het resultaten boeken. Buiten deze 14 belangen hebben decentrale overheden beleidsvrijheid. Het Barro is op 30 december 2011 in werking getreden en op 1 oktober 2012 en 1 juli 2014 op onderdelen aangevuld.
 
Planspecifiek
Het Barro is verder niet specifiek van toepassing op het plangebied.
3.1.3 Ladder voor duurzame verstedelijking
In het Besluit ruimtelijke ordening (Bro) is de verplichting opgenomen om in het geval van een nieuwe stedelijke ontwikkeling in de toelichting een onderbouwing op te nemen van nut en noodzaak van de nieuwe stedelijke ruimtevraag en de ruimtelijke inpassing. Hierbij wordt uitgegaan van de 'ladder voor duurzame verstedelijking'.
 
De 'stappen van de ladder' worden in artikel 3.1.6, leden 2 - 4 Bro als volgt omschreven:
  1. De toelichting bij een bestemmingsplan dat een nieuwe stedelijke ontwikkeling mogelijk maakt, bevat een beschrijving van de behoefte aan die ontwikkeling, en, indien het bestemmingsplan die ontwikkeling mogelijk maakt buiten het bestaand stedelijk gebied, een motivering waarom niet binnen het bestaand stedelijk gebied in die behoefte kan worden voorzien.
  2. Indien in een bestemmingsplan als bedoeld in het tweede lid toepassing is gegeven aan artikel 3.6, eerste lid, onder a of b, van de wet kan bij dat bestemmingsplan worden bepaald dat de beschrijving van de behoefte aan een nieuwe stedelijke ontwikkeling en een motivering als bedoeld in het tweede lid eerst wordt opgenomen in de toelichting bij het wijzigings- of het uitwerkingsplan als bedoeld in dat artikel.
  3. Een onderzoek naar de behoefte als bedoeld in het tweede lid, heeft, in het geval dat een bestemmingsplan als bedoeld in het tweede lid, ziet op de vestiging van een dienst als bedoeld in artikel 1 van de Dienstenwet en dit onderzoek betrekking heeft op de economische behoefte, de marktvraag of de beoordeling van de mogelijke of actuele economische gevolgen van die vestiging, slechts tot doel na te gaan of de vestiging van een dienst in overeenstemming is met een goede ruimtelijke ordening.
Planspecifiek
 
Behoefte
Conform artikel 1.1.1, eerste lid onder i van het Bro wordt onder een stedelijke ontwikkeling verstaan: een 'ruimtelijke ontwikkeling van een bedrijventerrein of zeehaventerrein, of van kantoren, detailhandel, woningbouwlocaties of andere stedelijke voorzieningen.' Uit jurisprudentie van de Afdeling bestuursrechtspraak van de Raad van State blijkt dat de ondergrens van wat als nieuwe stedelijke ontwikkeling moet worden gezien, ligt tussen de 9 en 14 nieuwe woningen afhankelijk van de omgeving waarin de ontwikkeling plaatsvindt. Gezien de ligging van het plangebied in het bestaand bebouwd gebied van Alphen aan den Rijn betekent dit dat er geen verantwoording noodzakelijk is in het kader van de ladder voor duurzame verstedelijking voor de 3 woningen die in het plangebied worden gerealiseerd.
 
Bestaand stedelijk gebied
Het plangebied maakt onderdeel uit van het bestaand stedelijk gebied.
 
Geconcludeerd wordt dat voorgenomen ontwikkeling voldoet aan de ladder voor duurzame verstedelijking.
3.2 Provinciaal beleid
3.2.1 Visie Ruimte en Mobiliteit
van de Visie Ruimte en Mobiliteit (VRM)vastgesteld. Op 12 januari 2017 is deze in werking getreden. In deze visie signaleert de provincie de structurele veranderingen in samenleving, economie en milieu. De voorspelbaarheid van nieuwe ontwikkelingen vermindert, demografische ontwikkelingen verschillen en de regionale economie internationaliseert en is kwetsbaar voor externe schokken. Tegelijkertijd gaan technologische innovaties snel en kunnen oplossingen in beeld brengen die nu nog onhaalbaar lijken. Deze tijd vraagt om maatwerk, flexibiliteit en aanpassingsvermogen. De economische, technologische en demografische ontwikkelingen werken door in de wijze waarop mensen en bedrijven de ruimte en het mobiliteitsnetwerk gebruiken. De provincie wil aansluiten op de bestaande en toekomstige dynamiek door waar mogelijk flexibiliteit in regelgeving te bieden. De Visie Ruimte en Mobiliteit is opgesteld vanuit de gedachte dat regels en kaders van de overheid nodig blijven, maar niet nodeloos mogen knellen.
 
De Visie Ruimte en Mobiliteit biedt geen vastomlijnd ruimtelijk eindbeeld, maar wel een perspectief voor de gewenste ontwikkeling van Zuid-Holland als geheel. De gewenste ontwikkeling is verwoord in vier rode draden:
  1. beter benutten en opwaarderen van wat er is;
  2. vergroten van de agglomeratiekracht;
  3. verbeteren van de ruimtelijke kwaliteit;
  4. bevorderen van de transitie naar een water- en energie-efficiënte samenleving.
Vanuit het besef dat stad en land één leefomgeving vormen met elkaar aanvullende kwaliteiten, kent deze Visie Ruimte en Mobiliteit een indeling in functionele hoofdstukken. Het hoofdstuk 'Mobiliteit en bebouwde ruimte' geeft uitwerking aan de eerste en tweede rode draad. Het verbeteren van de ruimtelijke kwaliteit (derde rode draad) komt hoofdzakelijk tot uiting in het hoofdstuk 'Kwaliteit van landschap, groen en erfgoed’ en het bevorderen van de transitie naar een water- en energie-efficiënte samenleving hoofdzakelijk bij ‘Water, bodem en energie’. Onder planspecifiek wordt voor voorliggende ontwikkeling nader ingegaan op de hoofdstukken.
 
Planspecifiek
Bebouwde ruimte
Om de bebouwde ruimte beter te laten benutten heeft de provincie het bestaand stads- en dorpsgebied en de linten in het buitengebied aangegeven en gesteld dat, in beginsel, hierbinnen de verstedelijking dient plaats te vinden. Het plangebied is geheel binnen het bestaande stads- en dorpsgebied gesitueerd. Daarmee draagt het voornemen om de bedrijfslocatie te herontwikkelen naar woningbouw bij aan de provinciale ambities met de bebouwde ruimte en ondersteunt de rode draden 'beter benutten en opwaarderen van wat er is' en 'vergroten van de agglomeratiekracht'.
 
Kwaliteit van landschap, groen en erfgoed
Voor de groene ruimte, bestaande uit de overwegend onbebouwde ruimte buiten de steden, dorpen, linten en kassen en uit de stedelijke groen- en waterstructuur, is het sturen op ruimtelijke kwaliteit leidend voor de keuzes die in dit gebied worden gemaakt. De provincie stuurt middels een kwaliteitskaart en gebiedsprofielen op de ruimtelijke kwaliteit. In het vervolg van deze paragraaf wordt het initiatief getoetst aan de richtpunten die voortkomen uit de kwaliteitskaart.
 
Kwaliteitskaart
De inzet van de provincie is dat ruimtelijke ontwikkelingen bijdragen aan het behoud en versterking van de ruimtelijke kwaliteit, zoals benoemd op de kwaliteitskaart en uitgewerkt in richtpunten. Navolgende afbeelding toont een uitsnede van de kwaliteitskaart:
 
Uitsnede VRM (plangebied: witte ovaal)
 
Met betrekking tot het plangebied zijn de kaartlagen 'Laag van de ondergrond', 'Laag van de cultuur- en natuurlandschappen' en 'Laag van de beleving' van belang.
 
Laag van de ondergrond
Binnen deze laag is voornamelijk het aspect 'water als structuurdrager' van belang. Het water in Zuid-Holland kent vele verschijningsvormen: grote rivieren, deltawateren, (boezem)vaarten, kanalen, veenstroompjes, sloten en plassen. Dit water vertelt veel over de geschiedenis van Zuid-Holland en de kunde op het gebied van waterbeheersing. Wonen of recreëren op of langs dit water is van waarde voor veel inwoners en bezoekers. Over de belangrijkste vaarwegen worden mensen en goederen vervoerd. Ook natuurwaarden hangen nauw samen met de kwaliteit en kwantiteit van water. Richtpunten bij ontwikkelingen zijn:  
  • Ontwikkelingen houden rekening met hun invloed op het watersysteem als geheel en dragen bij aan een duurzame en zo eenvoudig mogelijke werking van dit systeem.
  • Ontwikkelingen versterken de samenhang en continuïteit in het watersysteem als dragende ecologische en recreatieve structuur van Zuid-Holland. Ruimte voor natuurlijke dynamiek is hierbij een uitgangspunt.
  • Ontwikkelingen dragen bij aan het verbeteren van de zichtbaarheid en toegankelijkheid van het oppervlaktewater.
Met de voorgenomen ontwikkeling maakt de bestaande bebouwing in het plangebied plaats voor 3 (half)vrijstaande woningen. Hierbij wordt rekening gehouden met een vrijwaringszone van 10 meter vanaf de oever. Ten aanzien van de huidige situatie is dit uit nautisch oogpunt een verbetering. Voorts neemt de totale bebouwing in het plangebied af ten opzichte van de huidige situatie. Tezamen is dit een verbetering van het plangebied, wat ten goede komt van het woon- en leefklimaat.
  
Laag van de cultuur- en natuurlandschappen
Het plangebied is gelegen in het veenlandschap van het Groene Hart. De structuur in de veengebieden is sterk bepaald door de rivieren en veenstromen, de op enige afstand daarvan aangelegde weteringen en andere ontginningsbasissen. Loodrecht daarop staan de (regelmatige) verkavelingspatronen. In het veenlandschap zet de provincie in op behoud en versterking van het waterrijke en open karakter. Daarnaast is behoud van de kenmerkende afwisseling van veenweidelandschap, rivieren, boezems, plassen en droogmakerijen van groot belang. Voorts maakt het plangebied onderdeel uit van een rivierdijk en een lint.
Met de realisatie van 3 (half)vrijstaande woningen wordt aangesloten op het kenmerkende verkavelingspatroon, waarbij de woningen loodrecht ten opzichte van de rivier worden gesitueerd. De totale bebouwing in het plangebied neemt af ten opzichte van de huidige situatie. Hiermee ontstaat een meer open karakter. Daarbij zijn de woningen zowel op het water als op de weg georiënteerd. Met de ontwikkeling vindt derhalve aansluiting plaats met de karakteristiek van het veenlandschap, rivierdijken en linten.
 
Laag van de beleving
Zuid-Holland kent vier (potentiële) werelderfgoederen: het molengebied van Kinderdijk, de Romeinse Limes, de Nieuwe Hollandse Waterlinie en de Van Nellefabriek in Rotterdam. Het plangebied maakt onderdeel uit van de Romeinse Limes. De Limes is de aanduiding van de noordgrens van het voormalige Romeinse rijk, die zich in Europa uitstrekt van de Balkan tot in Engeland. De kernwaarden betreffen: verspreide, losse militaire complexen en infrastructuur; steden, grafvelden en (water)infrastructuur die redelijkerwijs behoren tot de militaire centra; verbindende structurerende elementen als de rivier (gereconstrueerde bedding van Beneden-, Kromme en Oude Rijn in de Romeinse tijd), de Limesweg en enkele andere stukken infrastructuur als het Kanaal van Corbulo en de weg tussen Nijmegen en Rijn. Richtpunt bij ontwikkelingen is het bijdragen aan het behoud en de herkenbaarheid van de Limes en de elementen die daar deel van uitmaken.
In de huidige situatie is het plangebied vrijwel volledig bebouwd. Behoudens de ligging aan de Oude Rijn zijn er geen kernwaarden in het plangebied aanwezig welke kunnen worden behouden. De verouderde bebouwing maakt plaats voor een drietal (half)vrijstaande woningen. Derhalve vindt wel een verbetering plaats van de ruimtelijke kwaliteit aan de Oude Rijn.
 
Conclusie
Met de herontwikkeling van de locatie is er wel sprake van een verbetering van de ruimtelijke kwaliteit. Functioneel is de nieuwe woonfunctie goed inpasbaar en ook ruimtelijk is er sprake van een kwaliteitsverbetering omdat met de ontwikkeling sprake is van een open ruimtelijke structuur aan de noordzijde. Vanuit nautisch oogpunt zal er meer zicht zijn vanaf het water op de oever.
De beoogde ontwikkeling past binnen de VRM en draagt bij aan de provinciale ambities met de bebouwde ruimte en ondersteunt de rode draden 'beter benutten en opwaarderen van wat er is' en 'vergroten van de agglomeratiekracht'. Bovendien krijgt het plangebied een kwaliteitsimpuls. Daarmee vormt de VRM geen belemmering voor de beoogde ontwikkeling.
 
3.2.2 Verordening Ruimte
Tegelijk met de Visie Ruimte en Mobiliteit (VRM) hebben Provinciale Staten van Zuid-Holland ook de Verordening Ruimte 2014 vastgesteld. Op 12 januari 2017 is een geactualiseerde versie van de verordening in werking getreden. In de verordening stelt de provincie regels aan ruimtelijke ontwikkelingen. De Verordening ruimte draagt bij aan het realiseren van de provinciaal ruimtelijke beleid zoals dat benoemd is in de VRM. De verordening omvat in aanvulling op de VRM toetsbare criteria waaraan planvorming moet voldoen.
 
Ladder voor duurzame verstedelijking
Uitgangspunt van de strategie voor de bebouwde ruimte is betere benutting van het bestaand stads- en dorpsgebied (BSD). Stedelijke ontwikkeling vindt daarom primair plaats binnen BSD. Niet alle vraag naar wonen en werken kan en hoeft te worden opgevangen binnen BSD. De ladder voor duurzame verstedelijking, zoals opgenomen in het Besluit ruimtelijke ordening (Bro) bevat het handelingskader. De provincie heeft de ladder voor duurzame verstelijking ook opgenomen in de verordening, om het provinciaal belang bij toepassing van deze ladder te benadrukken. Dit biedt de provincie de mogelijkheid om enkele begrippen die voor meerdere uitleg vatbaar zijn, te verduidelijken voor de specifieke Zuid-Hollandse situatie.
In lid 1 staat dat: 'Een bestemmingsplan dat een nieuwe stedelijke ontwikkeling mogelijk maakt, moet voldoen aan de volgende eisen:
  1. de stedelijke ontwikkeling voorziet in een actuele behoefte, die zo nodig regionaal is afgestemd;
  2. in die behoefte wordt binnen het bestaand stads- en dorpsgebied voorzien door benutting van beschikbare gronden door herstructurering, transformatie of anderszins, of
  3. indien de stedelijke ontwikkeling niet binnen het bestaand stads- en dorpsgebied van de betreffende regio kan plaatsvinden, wordt gebruik gemaakt van locaties die,
    1. gebruikmakend van verschillende middelen van vervoer, passend ontsloten zijn of als zodanig worden ontwikkeld,
    2. passen in de doelstellingen en richtpunten van de kwaliteitskaart van de Visie ruimte en mobiliteit, waarbij artikel 2.2.1 van toepassing is, en
    3. zijn opgenomen in het Programma ruimte, voor zover het gaat om locaties groter dan 3 hectare.'
 
Planspecifiek Ladder voor duurzame verstedelijking
In toelichting paragraaf 3.1.3 is de ladder doorlopen. Daarmee voldoet de voorgenomen ontwikkeling aan de Ladder voor duurzame verstedelijking uit het Bro en de bepalingen uit artikel 2.1.1 van de Verordening ruimte 2014.
3.3 Gemeentelijk beleid
3.3.1 Structuurvisie Alphen aan den Rijn 2031
De structuurvisie Alphen aan den Rijn 2031 is opgesteld in juni 2013. In de visie wordt het ruimtelijk beeld voor Alphen aan den Rijn in 2031 geschetst. Daarbij is niet alleen gekeken naar ruimtelijke ordening maar zijn ook componenten vanuit een sociale, maatschappelijke en economische invalshoek meegenomen.
 
In de toekomstvisie is onderscheid gemaakt tussen de Intense Stad, de Vitale Dorpen en het Waardevol Landschap. Deze drie elementen vormen een drie-eenheid waarbij sprake is van een contrastrijk samenspel. In de toekomstvisie wordt dit als volgt verwoordt:
 
In 2031 is Alphen aan den Rijn een gemeente die zich onderscheidt door het contrastrijke samenspel tussen de intense stedelijkheid van Alphen aan den Rijn, de bijzondere leefmilieus in haar vitale dorpse kernen en het grote economische en recreatieve potentieel van een waardevol landschap.
 
Water en groen zijn beeldbepalende elementen die de basis vormen voor een duurzame, economische en ruimtelijke ontwikkeling en een aantrekkelijke leefomgeving. Binnen de gemeente is er een sterke fysieke en programmatische relatie tussen stad en buitengebied met attractieve en toegankelijke groen- en waterstructuren.
 
Intense Stad
De keuze voor de intense stad betekent een intensiever gebruik van de ruimte in Alphen aan den Rijn. Er wordt nadrukkelijk gezocht naar mogelijkheden om binnenstedelijke verdichting vorm te geven. Prioriteit van ontwikkelingslocaties gaat uit naar locaties waar ruimtelijk, sociaal en economisch het grootste rendement te verwachten valt. Intensivering van het stedelijk gebied wordt niet gerealiseerd door het volbouwen van de groene ruimten in de stad, maar door naast nieuwbouw samen met betrokken eigenaren en gebruikers creatief om te gaan met leegstand, renovatie, herstructurering, transformatie en herprogrammering waar mogelijk en wenselijk.  
  
Planspecifiek
Onderhavige ontwikkeling maakt 3 (half)vrijstaande woningen mogelijk. De aan het plangebied grenzende Oude Rijn is beeldbepalend voor de stad. Met de ontwikkeling wordt toegezien op een verbetering van de ruimtelijke kwaliteit door de sloop van de bestaande, verouderde bebouwing. De nieuwe woningen worden op minimaal 10 meter afstand van de oever gesitueerd waardoor ook vanuit nautisch oogpunt sprake is van een verbetering. Met de ligging aan de Oude Rijn is het plangebied een interessante vestigingslocatie waar veel vraag naar is, met name vanuit stedelijk georiënteerde, veelal hoogopgeleide huishoudens.
Voorts sluit de ontwikkeling aan op het wensbeeld van Alphen aan den Rijn wat betreft het onderdeel 'intense stad'. Door het bestaand bebouwd gebied te transformeren naar woningbouw, vindt op intensieve wijze woningbouw plaats, zonder dat dit afbreuk doet aan de groene ruimte.
 
3.3.2 Alphense Woonagenda
In de Alphense Woonagenda (2016) is de visie van de gemeente Alphen aan den Rijn op het wonen voor de periode tot en met 2025 vastgelegd. De Woonagenda vloeit voort uit de Contourennotitie (2015/34368). In deze notitie zijn zeven woonkwaliteiten benoemd die onderscheidend zijn voor prettig wonen in Alphen aan den Rijn; nu en in de toekomst. De toekomst van het wonen ligt meer dan in het verleden in de bestaande stad en dorpen. Wonen is niet meer alleen bouwen, maar vooral de bestaande woongebieden kwaliteit geven, zodat inwoners trots zijn op de plek waar ze wonen. Het versterken van herkenbare identiteiten, de woonaantrekkelijkheid en gebruiksfunctie van wijken en dorpen staat hierbij centraal.
Vijf thema's vormen de speerpunten van de Woonagenda, te weten:
  1. Wijken en kernen met identiteit
  2. Keuzemogelijkheden door variatie
  3. Een veilige en gezonde leefomgeving
  4. Zelfredzame bewoners investeren in zichzelf en hun omgeving
  5. Woningvoorraad met toekomstwaarde
Met de Woonagenda wil de gemeente partners, bewoners en ontwikkelaars inspireren om hun bijdrage te leveren aan Alphen aan den Rijn als aantrekkelijke en prettige woonomgeving. Zij krijgen de ruimte initiatieven te realiseren die een bijdrage leveren aan de gewenste woonkwaliteit van Alphen aan den Rijn.
 
Planspecifiek
Met de voorgenomen ontwikkeling, waarbij een verouderd pand plaatsmaakt voor een drietal (half)vrijstaande woningen, vindt een kwaliteitsslag plaats voor het bestaand stedelijk (woon)gebied aan de Hoorn. Aangesloten wordt op het woongebied ten zuiden en westen van het plangebied. De woningen worden dermate georiënteerd dat een open, uitnodigende uitstraling en gerichtheid ontstaat op zowel de Hoorn als de Oude Rijn. Hiermee vindt eveneens aansluiting plaats met de aangrenzende watergang en ontstaat een aantrekkelijke, kwalitatieve woonbeleving. Hiermee is de ontwikkeling in lijn met speerpunt 1 en 2 uit de Woonagenda.
 
3.3.3 Duurzaamheidsprogramma 2014 - 2020
Het duurzaamheidsprogramma 2014-2020 en het bijbehorende uitvoeringsprogramma is op 24 september 2015 door de gemeenteraad vastgesteld en is leidend voor de uitvoering van duurzaamheid binnen de gemeente.
 
In het duurzaamheidsprogramma is beschreven wat de ambitie van de gemeente is en wat de gemeente wil bereiken in de periode 2014 t/m 2020. Hierbij wordt onderscheid gemaakt in enerzijds ambities van de gemeentelijke organisatie en anderzijds ambities voor de Alphense samenleving. Voor het behalen van deze ambities is de gemeente afhankelijk van de samenleving als geheel. De gemeente stimuleert en faciliteert: “Een duurzaam Alphen aan den Rijn bereiken we samen”.
De stip op de horizon is: “In 2050 is de samenleving van Alphen aan den Rijn fossiele brandstofvrij en energie- en CO2-neutraal”. In het bijbehorende uitvoeringsprogramma "Spoorboekje van A naar D: werken aan het (duurzaamheids)spoor” zijn per ambitie projecten benoemd die de komende jaren uitgevoerd worden om bij te dragen aan het behalen van de ambities.
   
Planspecifiek
Met dit bestemmingsplan wordt het mogelijk gemaakt 3 (half)vrijstaande woningen aan de Hoorn 100 te realiseren. Initiatiefnemer is voornemens 3 bouwkavels op het perceel aan de Hoorn 100 in Alphen aan den Rijn vrij te geven waarop deze (half)vrijstaande woningen kunnen worden gerealiseerd. Specifieke plannen zijn nog niet aanwezig en dus is onduidelijk in hoeverre de woningen duurzaam worden uitgevoerd. In elk geval zal aangesloten worden op de huidige wet- en regelgeving. Zo stelt het Bouwbesluit eisen aan energiezuinigheid van nieuwe woningen en utiliteitsgebouwen. De maat voor energiezuinigheid heet Energie Prestatie Coëfficiënt (EPC). De bepaling van de EPC ligt vast in de norm NEN 7120 Energieprestatie van gebouwen (EPG). Deze norm geldt voor zowel nieuwbouw van woningen als utiliteitsbouw. Per 1 januari 2015 is de EPC-eis aan de energieprestatie van gebouwen aangescherpt en aangepast in het Bouwbesluit. Voor woningen geldt een EPC-eis van 0,4.
 
3.3.4 Welstandsnota
De Welstandsnota is in 2015 herzien waarmee het welstandsbeleid is vereenvoudigd. De welstandsnota is opgesteld als naslagwerk en bevat verschillende beoordelingskaders. Doel van de welstandstoets is het behartigen van het publieke belang door de lokale overheid, waarbij de individuele vrijheid van de burger of ondernemer wordt afgewogen tegen het aanzien van hun omgeving als algemene waarde. Met de verschijningsvorm van een  bouwwerk wordt iedere voorbijganger geconfronteerd. Het beleid is opgesteld vanuit de gedachte, dat welstand een bijdrage levert aan de totstandkoming en het beheer van een aantrekkelijke bebouwde omgeving.
Doel van het welstandsbeleid is het welstandstoezicht helder onder woorden te brengen en op een effectieve en controleerbare wijze in te richten. Daarbij is het van belang aanvragers door middel van de welstandsnota van tevoren op de hoogte te stellen van de aspecten die een rol spelen bij de welstandsbeoordeling. Het welstandsbeleid geeft de gemeente de mogelijkheid om cultuurhistorische, stedenbouwkundige en  architectonische waarden een rol te geven bij de ontwikkeling en beoordeling van bouwplannen.
 
De redelijkheid van welstand is beredeneerd aan de hand van een kwaliteitskaart. Hierop zijn waardevolle plekken en de ruimtelijke samenhang tussen de verschillende gebieden in beeld gebracht. Aan de hand van deze kaart is bepaald waar welstand bij moet dragen aan de ruimtelijke kwaliteit en waar een meer terughoudende inzet gepast is
 
Planspecifiek 
Het plangebied maakt onderdeel uit van deelgebied 1C 'stedelijk lint Oude Rijn'. Het stedelijk lint langs de Oude Rijn bevat de oudste straten van Alphen aan den Rijn en is een belangrijk onderdeel van de identiteit van de stad. Deze uitlopers van het Stadshart hebben gevarieerde bebouwing uit diverse periodes in een gegroeide en compacte structuur met als basis het individuele pand met een stedelijk karakter. Het gebied bestaat onder andere uit bebouwing aan de Hooftstraat, Raadhuisstraat, Emmalaan en Prins Hendrikstraat.
 
Waarde
Het stedelijk lint langs de Oude Rijn bevat meerdere gezichtsbepalende routes voor de stad, zowel via het land als het water. De waarde is vooral gelegen in het afwisselende beeld van de gegroeide structuur met hoofdzakelijk kleinschalige bebouwing aan stenige straten. De kwaliteit van de bebouwing wisselt sterk, zowel in architectonische uitwerking als in staat van onderhoud. Diverse panden en ensembles zijn cultuurhistorisch waardevol. Een deel hiervan is aangewezen als monument.
 
Uitgangspunten
Het stedelijk lint langs de Oude Rijn is een gebied met een bijzonder welstandsniveau. Het beleid is terughoudend en gericht op behoud van variatie zonder verrommeling. Bij de advisering zal onder meer aandacht geschonken worden aan het behoud van het gegroeide stedelijke karakter, zonder wijzigingen en nieuwbouw onmogelijk te maken. Individualiteit en zorgvuldigheid zijn belangrijke aspecten bij de beoordeling.
  
Criteria
In de welstandsnota zijn criteria opgesteld omtrent de ligging, massa, architectonische uitwerking en materiaal en kleur, welke de gemeente hanteert bij de beoordeling van bouwplannen. Met de uitwerking van de drie (half)vrijstaande woningen worden deze criteria in acht genomen. Dit resulteert onder andere in een oriëntatie op zowel de Hoorn als de Oude Rijn, beide belangrijke openbare ruimten.
4 Uitvoerbaarheid
De uitvoerbaarheid van een bestemmingsplan moet ingevolge de Wet ruimtelijke ordening (Wro) aangetoond worden (artikel 3.1 lid 3 van de Wro). Daaronder valt zowel de onderzoeksverplichting naar verschillende ruimtelijk relevante aspecten (geluid, bodem, etc.) als ook de economische uitvoerbaarheid van het plan.
4.1 Milieueffectrapportage
De milieueffectrapportage (m.e.r.) is een hulpmiddel om bij diverse procedures het milieubelang een volwaardige plaats in de besluitvorming te geven. Een m.e.r. is verplicht bij de voorbereiding van plannen en besluiten van de overheid over initiatieven en activiteiten van publieke en private partijen die belangrijke nadelige gevolgen voor het milieu kunnen hebben. De m.e.r. is wettelijk verankerd in hoofdstuk 7 van de Wet milieubeheer. Naast de Wet milieubeheer is het Besluit m.e.r. belangrijk om te kunnen bepalen of bij de voorbereiding van een plan of een besluit de m.e.r.-procedure moet worden doorlopen. Bij toetsing aan het Besluit m.e.r. zijn er vier mogelijkheden:
  1. het plan of besluit is direct m.e.r.- plichtig;
  2. het plan of besluit bevat activiteiten uit kolom 1 van onderdeel D, en ligt boven de (indicatieve) drempelwaarden, zoals beschreven in kolom 2 ‘gevallen’, van onderdeel D. Het besluit moet eerst worden beoordeeld om na te gaan of er sprake is van m.e.r.-plicht: het besluit is dan m.e.r.- beoordelingsplichtig. Voor een plan in kolom 3 ‘plannen’ geldt geen m.e.r-beoordelingsplicht, maar direct een (plan-)m.e.r.-plicht;
  3. het plan of besluit bevat wel de activiteiten uit kolom 1, maar ligt beneden de drempelwaarden, zoals beschreven in kolom 2 ‘gevallen’, van onderdeel D: er dient in overleg met de aanvrager van het bijbehorende plan of besluit beoordeeld te worden of er aanleiding is voor het uitvoeren van een m.e.r.-beoordeling (als sprake is van een besluit) of het direct uitvoeren van een m.e.r. (als sprake is van een plan). Deze keuze wordt uiteindelijk in het bijbehorende plan of besluit gemotiveerd;
  4. de activiteit(en) of het betreffende plan en/of besluit worden niet genoemd in het Besluit m.e.r.: er geldt geen m.e.r.- (beoordelings)plicht.
Planspecifiek
Uit toetsing aan het Besluit m.e.r. volgt dat het besluit tot vaststelling van voorliggend ruimtelijk plan valt onder mogelijkheid c. Het besluit bevat namelijk wel een activiteit uit kolom 1 (de aanleg, wijziging of uitbreiding van een stedelijk ontwikkelingsproject met inbegrip van de bouw van winkelcentra of parkeerterreinen), maar er wordt niet voldaan aan de gegeven drempelwaarde van 2.000 woningen of meer. Omdat het in dit geval slechts om 3 woningen gaat, is een m.e.r.-beoordeling niet vereist en kan volstaan worden met een vormvrije m.e.r.-beoordeling.
 
In het kader van dit ruimtelijke plan zijn de belangrijkste milieuaspecten waaronder bodem, luchtkwaliteit, geluid, externe veiligheid en ecologie in beeld gebracht. Hieruit is niet gebleken dat er sprake is van een ontwikkeling die een forse invloed heeft op het milieu. Belangrijke milieugevolgen kunnen worden uitgesloten. De huidige onderzoeken geven voldoende inzicht in de milieugevolgen om een gewogen besluit omtrent dit ruimtelijke plan te nemen. Het opstellen van een milieueffectrapportage zal geen verder inzicht verschaffen op de relevante milieuaspecten. De kenmerken van het project, de plaats van het project en de kenmerken van de potentiële effecten zijn niet van dien aard dat er aanleiding bestaat tot het opstellen van een milieueffectrapportage.
4.2 Bodem
In het kader van een ruimtelijk plan dient aangetoond te worden dat de kwaliteit van de bodem en het grondwater in het plangebied in overeenstemming zijn met het beoogde gebruik. De bodemkwaliteit kan namelijk van invloed zijn op de beoogde functie van het plangebied. Indien sprake is van een functiewijziging zal er soms een bodemonderzoek moeten worden uitgevoerd in het plangebied. Ontwikkelingen kunnen pas plaatsvinden als de bodem waarop deze ontwikkelingen plaatsvinden geschikt is of geschikt is gemaakt voor het beoogde doel.
 
Bij een bestemmingswijziging is een bodemonderzoek slechts noodzakelijk, indien de bestemmingswijziging tevens een wijziging naar een strenger bodemgebruik inhoudt. Bij een bestemmingswijziging die een gelijkblijvend of minder streng bodemgebruik oplevert, is de bodemkwaliteit in het kader van de bestemmingswijziging niet relevant en is bodemonderzoek niet noodzakelijk.
 
Planspecifiek
In 2010 is een verkennend bodemonderzoek verricht aan de Hoorn 100 in Alphen aan den Rijn. In dit onderzoek werd, vanwege de aangetoonde verontreinigingen, geconcludeerd dat nader onderzoek noodzakelijk was om te bepalen of er sprake is van een geval van ernstige bodemverontreiniging. Derhalve is door Grondslag een nader bodemonderzoek uitgevoerd (d.d. 12 mei 2015, zie bijlage).
 
Met het nadere bodemonderzoek is de omvang van een verontreiniging met minerale olie ter plaatse van de onderzoekslocatie Hoorn 100 te Alphen aan den Rijn vastgelegd. Er zijn meerdere verontreinigingsspots (vlekken) aanwezig. Het totale volume sterk verontreinigde bodem wordt momenteel geraamd op 400 m³. Op basis van de terreinsituatie (vloerbedekking, betonvloer, winkel nog in gebruik, plaatselijk tweede betonvloer of puin en grint in de bovengrond) is een detailafperking in het pand ondoenlijk. De omvang van de verontreiniging is in kaart gebracht voor zover de terreinsituatie dit mogelijk maakt (grens onderzoekslocatie). De begrenzing in zuidelijke richting (kabels en leidingen en openbare weg) is nog niet bekend.
Er is sprake van een geval van ernstige bodemverontreiniging, waarvoor de Provincie het bevoegd gezag is. Het geval van bodemverontreiniging is niet spoedeisend. De verontreiniging is mogelijk te relateren aan ophogingen uit het verleden of uit bedrijfsactiviteiten in het verleden. Uit historisch onderzoek is gebleken dat ter plaatse van een nabij gelegen perceel (Hoorn 128) een ongedefinieerde ophooglaag aanwezig is.
 
Voorafgaand aan de nieuwbouw dient bodemsanering plaatsvinden. In overeenstemming met de omgevingsdienst Midden Holland is besloten dat voorafgaand aan de werkzaamheden een saneringsplan wordt opgesteld, welke ter goedkeuring zal worden voorgelegd aan het bevoegd gezag.
4.3 Geluid
De mate waarin het geluid, het woonmilieu mag belasten, is geregeld in de Wet geluidhinder (Wgh). De kern van de wet is dat geluidsgevoelige objecten worden beschermd tegen geluidhinder uit de omgeving. In de Wgh worden de volgende objecten beschermd (artikel 1 Wgh):
  • woningen;
  • geluidsgevoelige terreinen (terreinen die behoren bij andere gezondheidszorggebouwen dan categorale en academische ziekenhuizen, verpleeghuizen, woonwagenstandplaatsen);
  • andere geluidsgevoelige gebouwen, waaronder onderwijsgebouwen, ziekenhuizen en verpleeghuizen, andere gezondheidszorggebouwen dan ziekenhuizen en verpleeghuizen die zijn aangegeven in artikel 1.2 van het Besluit geluidhinder (Bgh):
    • verzorgingstehuizen;
    • psychiatrische inrichtingen;
    • medisch centra;
    • poliklinieken;
    • medische kleuterdagverblijven.
Het beschermen van deze geluidsgevoelige objecten gebeurt aan de hand van vastgestelde zoneringen. De belangrijkste geluidsbronnen die in de Wet geluidhinder worden geregeld zijn: industrielawaai, wegverkeerslawaai en spoorweglawaai. Verder gaat deze wet onder meer ook in op geluidwerende voorzieningen en geluidbelastingkaarten en actieplannen.
 
Planspecifiek
Voor dit bestemmingsplan is een akoestisch onderzoek wegverkeerslawaai uitgevoerd (Adviesbureau van der Boom, 11 mei 2017, zie bijlage). De ontwikkeling ligt binnen de bebouwde kom van Alphen aan de Rijn op ca. 16 meter uit de as van de Hoorn, binnen de geluidzone van deze weg. De ontwikkeling ligt eveneens op ca. 97 meter afstand van de Gnephoek/Oudshoornseweg/Churchillaan. Dit is een 30 km weg zonder geluidzone.
 
Uit het akoestisch onderzoek blijkt dat de geluidbelasting door wegverkeer op de Hoorn op de gevels van de woningen ten hoogste 63 dB bedraagt na aftrek van 5 dB ex art 110-g Wgh. De voorkeursgrenswaarde van 48 dB wordt daarmee overschreden. De maximale hogere waarde van 63 dB wordt niet overschreden.
 
Het verlagen van de geluidbelasting door het treffen van maatregelen aan de bron ligt niet voor de hand, is niet kosteneffectief en niet doeltreffend. Afscherming van de woningen is op deze locatie eveneens niet haalbaar. Voor de gevels van de woning dient daarom een hogere waarde te worden aangevraagd voor wegverkeer op Hoorn, conform tabel III.2.
 
Er zal voor het aspect geluid sprake zijn van een goede ruimtelijke ordening als voor de woningen wordt voldaan aan de eisen voor de geluidwering conform het Bouwbesluit. De zuid-, oost- en westgevels ondervinden in alle rekenpunten een geluidbelasting van meer dan 53 dB zonder aftrek. Voor deze gevels zijn aanvullende geluidwerende voorzieningen nodig. De hoogste geluidbelasting bedraagt zonder aftrek 68 dB. De benodigde karakteristieke geluidwering GA;k voor deze gevel bedraagt 35 dB.
4.4 Luchtkwaliteit
In de Wet Milieubeheer gaat paragraaf 5.2 over luchtkwaliteit en staat ook wel bekend als de ‘Wet luchtkwaliteit’. Deze wet maakt onderscheid tussen 'kleine' en 'grote' projecten. Kleine projecten dragen 'niet in betekenende mate' (NIBM) bij aan de verslechtering van de luchtkwaliteit. Een paar honderd grote projecten dragen juist wel 'in betekenende mate' bij aan de verslechtering van de luchtkwaliteit. Het gaat hierbij vooral om bedrijventerreinen en infrastructuur (wegen).
 
Wat het begrip 'in betekenende mate' precies inhoudt, staat in een de algemene maatregel van bestuur ‘Niet in betekenende mate bijdragen’ (Besluit NIBM). Op hoofdlijnen komt het erop neer dat 'grote' projecten die jaarlijks meer dan 3 % bijdragen aan de jaargemiddelde norm voor fijn stof (PM10) en stikstofdioxide (NO2) (1,2 µg/m³) een 'betekenend' negatief effect hebben op de luchtkwaliteit. 'Kleine' projecten die minder dan 3 % bijdragen, kunnen doorgaan zonder toetsing. Dat betekent bijvoorbeeld dat lokale overheden een woonwijk van minder dan 1.500 woningen niet hoeven te toetsen aan de normen voor luchtkwaliteit. Deze kwantitatieve vertaling naar verschillende functies is neergelegd in de 'Regeling niet in betekenende mate bijdragen'.
 
Een belangrijk onderdeel voor de verbetering van de luchtkwaliteit is het Nationale Samenwerkingsprogramma Luchtkwaliteit (NSL). Binnen dit NSL, dat sinds 1 augustus 2009 in werking is, werken het Rijk, de provincies en gemeenten samen om de Europese eisen voor luchtkwaliteit te realiseren.
 
Vanaf 1 januari 2015 geldt er ook een grenswaarde voor een kleinere fractie van fijn stof namelijk PM2,5. De grenswaarde voor PM2,5 bedraagt 25 µg/m³. Gezien het grote verschil tussen de grenswaarde en de achtergrondconcentratie zullen overschrijdingen van deze grenswaarde niet vaak voorkomen. Het blijkt dat als de grenswaarde voor PM10 niet wordt overschreden, er geen overschrijding van de grenswaarde voor PM2,5 zal zijn. Het is de verwachting dat door het schoner worden van de autotechniek de concentratie van met name stikstofdioxide in de toekomst nog verder afneemt.
 
Besluit gevoelige bestemmingen
Op 16 januari 2009 is het Besluit gevoelige bestemmingen in werking getreden. Het Besluit gevoelige bestemmingen is gebaseerd op artikel 5.16a van de Wet milieubeheer. Met het Besluit wordt de vestiging van zogeheten 'gevoelige bestemmingen' in de nabijheid van provinciale- en rijkswegen beperkt. Dit heeft consequenties voor de ruimtelijke ordening.
 
Het Besluit is gericht op bescherming van mensen met een verhoogde gevoeligheid voor fijn stof (PM10) en stikstofdioxide (NO2), in het bijzonder kinderen, ouderen en zieken. Indien een project betrekking heeft op een gevoelige bestemming en geheel of gedeeltelijk is gelegen op een afstand van 300 m aan weerszijden van rijkswegen en 50 m langs provinciale wegen (gemeten vanaf de rand van de weg) mag het totaal aantal mensen dat hoort bij een gevoelige bestemming niet toenemen als overschrijding van de grenswaarden voor PM10 of NO2 dreigt/plaatsvindt.
 
De volgende gebouwen met de bijbehorende terreinen zijn aangemerkt als gevoelige bestemming:
  • scholen;
  • kinderdagverblijven;
  • verzorgings-, verpleeg- en bejaardentehuizen.
Het gaat niet om bestemmingen in de meest enge zin van het woord, maar om alle vergelijkbare functies, ongeacht de exacte aanduiding ervan in bestemmingsplannen en andere besluiten.
 
In het kader van het opstellen van een bestemmingsplan moeten er twee aspecten in beeld gebracht worden. Ten eerste of de luchtkwaliteit de nieuwe functie toelaat. Ten tweede moet bekeken worden of het plan de luchtkwaliteit ‘niet in betekenende mate’ verslechtert. Indien het plan wel ‘in betekenende mate’ bijdraagt aan verslechtering van de luchtkwaliteit, is het van belang om te toetsen of de grenswaarden niet overschreden worden. Indien geen overschrijding van de grenswaarden plaatsvindt, kan het plan alsnog gerealiseerd worden.
 
Planspecifiek
In de bestaande situatie is het gebouw in gebruik als meubelwinkel met een oppervlakte van circa 1.500 m² en bijbehorende verkeersbewegingen. In de nieuwe situatie verdwijnt de detailhandel op locatie en is sprake van 3 (half)vrijstaande woningen. Gemiddeld wordt per woning uitgegaan van 6 verkeersbewegingen. De verwachte verkeersgeneratie ligt daarmee maximaal rond de 18 motorvoertuigen per etmaal. Ten opzichte van de huidige situatie zal de ontwikkeling geen extra verkeer tot gevolg hebben. Hoogstwaarschijnlijk neemt de verkeersgeneratie op locatie zelfs af.
 
Desondanks is op basis van het aantal toekomstige verkeersbewegingen een berekening uitgevoerd met de NIBM-tool:
 
NIBM-tool (versie 14 juli 2016)
 
Uit deze berekening (= worst-case scenario waarbij alle voertuigbewegingen nieuw zijn ten opzichte van de bestaande situatie) blijkt dat er geen nader onderzoek noodzakelijk is. De bijdrage van het verkeer aan de verslechtering van de luchtkwaliteit is niet in betekenende mate en valt ruimschoots onder de norm van 1,2 μg/m³.
4.5 Externe veiligheid
Sommige activiteiten brengen risico's op zware ongevallen met mogelijk grote gevolgen voor de omgeving met zich mee. Externe veiligheid richt zich op het beheersen van deze risico's. Het gaat daarbij om onder meer de productie, opslag, transport en het gebruik van gevaarlijke stoffen. Dergelijke activiteiten kunnen een beperking opleggen aan de omgeving. Door voldoende afstand tot de risicovolle activiteiten aan te houden kan voldaan worden aan de normen. Aan de andere kant is de ruimte schaars en het rijksbeleid erop gericht de schaarse ruimte zo efficiënt mogelijk te benutten. Het ruimtelijk beleid en het externe veiligheidsbeleid moeten dus goed worden afgestemd. De wetgeving rond externe veiligheid richt zich op de volgende risico’s:
  • risicovolle (Bevi-)inrichtingen;
  • vervoer gevaarlijke stoffen door buisleidingen;
  • vervoer gevaarlijke stoffen over weg, water of spoor.
Daarnaast wordt er in de wetgeving onderscheid gemaakt tussen de begrippen kwetsbaar en beperkt kwetsbaar en plaatsgebonden risico en groepsrisico.
 
Kwetsbaar en beperkt kwetsbaar
Kwetsbaar zijn onder meer woningen, onderwijs- en gezondheidsinstellingen, kinderopvang- en dagverblijven en grote kantoorgebouwen (>1.500 m²). Beperkt kwetsbaar zijn onder meer kleine kantoren, winkels en horeca. De volledige lijst wat onder (beperkt) kwetsbaar wordt verstaan is in het Besluit externe veiligheid inrichtingen (Bevi) opgenomen.
 
Plaatsgebonden risico en groepsrisico
Het plaatsgebonden risico wordt uitgedrukt in een contour van 10-6 als grenswaarde. Het realiseren van kwetsbare objecten binnen deze contour is niet toegestaan. Het realiseren van beperkt kwetsbare objecten binnen deze contour is in principe ook niet toegestaan. Echter, voor beperkte kwetsbare objecten is deze 10-6 contour een richtwaarde. Mits goed gemotiveerd kan worden afgeweken van deze waarde tot de 10-5 contour.
 
Het groepsrisico is gedefinieerd als de cumulatieve kansen per jaar dat ten minste 10, 100 of 1.000 personen overlijden als rechtstreeks gevolg van hun aanwezigheid in het invloedsgebied van een inrichting en een ongewoon voorval binnen die inrichting waarbij een gevaarlijke stof betrokken is. Het groepsrisico wordt niet in contouren vertaald, maar wordt weergegeven in een grafiek. In de grafiek wordt de groepsgrootte van aantallen slachtoffers (x-as) uitgezet tegen de cumulatieve kans dat een dergelijke groep slachtoffer wordt van een ongeval (y-as). Voor het groepsrisico geldt geen grenswaarde, maar een zogenaamde oriëntatiewaarde. Daarnaast geldt voor het groepsrisico een verantwoordingsplicht. Het bevoegd gezag moet aangeven welke mogelijkheden er zijn om het groepsrisico in de nabije toekomst te beperken, het moet aangeven op welke manier hulpverlening, zelfredzaamheid en bestrijdbaarheid zijn ingevuld. Het bevoegd gezag moet tevens aangeven waarom de risico's verantwoord zijn, en de veiligheidsregio moet in de gelegenheid zijn gesteld een brandweeradvies te geven. Hierbij geldt hoe hoger het groepsrisico, hoe groter het belang van een goede groepsrisicoverantwoording.
 
Risicovolle (Bevi-)inrichtingen
Voor (de omgeving van) de meest risicovolle bedrijven is het Besluit externe veiligheid inrichtingen (Bevi) van belang. Het Bevi legt veiligheidsnormen op aan bedrijven die een risico vormen voor mensen buiten de inrichting. Het Bevi is opgesteld om de risico's, waaraan burgers in hun leefomgeving worden blootgesteld vanwege risicovolle bedrijven, te beperken. Het besluit heeft tot doel zowel individuele als groepen burgers een minimaal (aanvaard) beschermingsniveau te bieden. Via een bijhorende ministeriële regeling (Revi) worden diverse veiligheidsafstanden tot kwetsbare en beperkt kwetsbare objecten gegeven. Aanvullend op het Bevi zijn in het Vuurwerkbesluit en het Activiteitenbesluit (Besluit algemene regels inrichtingen milieubeheer) veiligheidsafstanden genoemd die rond minder risicovolle inrichtingen moeten worden aangehouden.
 
Vervoer gevaarlijke stoffen door buisleidingen
Met betrekking tot het beleid en de regelgeving voor het vervoer van gevaarlijke stoffen door buisleidingen zijn er de afgelopen jaren verschillende ontwikkelingen geweest. Zo is er een nieuw Besluit externe veiligheid buisleidingen (Bevb) en een Structuurvisie buisleidingen. Deze structuurvisie bevat een lange termijnvisie op het buisleidingentransport van gevaarlijke stoffen.
 
Het Bevb en de bijbehorende Regeling externe veiligheid buisleidingen (Revb) zijn op 1 januari 2011 in werking getreden. Het Bevb regelt onder andere welke veiligheidsafstanden moeten worden aangehouden rond buisleidingen met gevaarlijke stoffen. Op basis van het Bevb wordt het voor gemeenten verplicht om bij de vaststelling van een ruimtelijk plan, op basis waarvan de aanleg van een buisleiding of een kwetsbaar object of een risicoverhogend object mogelijk is, de grenswaarde voor het plaatsgebonden risico in acht te nemen en het groepsrisico te verantwoorden.
 
Vervoer gevaarlijke stoffen over weg, water en spoor
Het Besluit externe veiligheid transportroutes (Bevt) stelt regels aan transportroutes en de omgeving daarvan. Zo moet een basisveiligheidsniveau rond transportassen (plaatsgebonden risico) en een transparante afweging van het groepsrisico worden gewaarborgd.
 
Als onderdeel van het Bevt is op 1 april 2015 tevens het basisnet in werking getreden. Het basisnet verhoogt de veiligheid van mensen die wonen of werken in de buurt van rijksinfrastructuur (auto-, spoor- en vaarwegen) waarover gevaarlijke stoffen worden vervoerd. In de regeling ligt vast wat de maximale risico’s voor omwonenden mogen zijn. Die begrenzing was er tot nu toe niet. Bovendien zorgt het basisnet ervoor dat gevaarlijke stoffen tussen de belangrijkste industriële locaties in Nederland en het buitenland vervoerd kunnen blijven worden.
 
Indien een ruimtelijk plan betrekking heeft op een gebied dat geheel of gedeeltelijk gelegen is binnen 200 m van een (basisnet)transportroute voor gevaarlijke stoffen, moet in de toelichting ingegaan worden op de dichtheid van personen in het invloedsgebied van de transportroute op het tijdstip waarop het plan wordt vastgesteld. Hierbij moet rekening worden gehouden met de personen die a) in dat gebied reeds aanwezig zijn, b) in dat gebied op grond van het geldende bestemmingsplan redelijkerwijs te verwachten zijn en c) de redelijkerwijs te verwachten verandering van de dichtheid van personen in het gebied waarop dat plan betrekking heeft.
 
Planspecifiek
Voor de beoordeling of in de omgeving van het plangebied risicovolle inrichtingen en/of transportroutes gevaarlijke stoffen aanwezig zijn is de risicokaart geraadpleegd. De volgende afbeelding toont een uitsnede van deze kaart:
 
 
Uitsnede risicokaart en Basisnet
   
Uit de risicokaart blijkt dat in het plangebied en de omgeving ervan geen vervoer plaatsvindt van gevaarlijke stoffen over weg, water, spoor of door buisleidingen. Er liggen ook geen, wat betreft externe veiligheid, relevante bedrijven in de omgeving van het plangebied.
De dichtstbijzijnde risicovolle inrichting ligt op circa 550 meter afstand tot het plangebied. Dit betreft een groothandel in brandstoffen en andere minerale olieproducten, gevestigd aan de Gnephoek 4. Het bedrijf beschikt over een generiek plaatsgebonden risico met een risicoafstand van 0 meter. De planlocatie ligt op voldoende afstand tot deze en andere inrichtingen. Het aspect externe veiligheid is daarmee niet relevant voor de ontwikkeling.
 
Ten aanzien van het aspect externe veiligheid kan worden geconcludeerd dat er geen sprake is van een belemmering van de uitvoering van onderhavig bouwplan.
4.6 Milieuzonering
Het aspect bedrijven en milieuzonering gaat in op de invloed die bedrijven kunnen hebben op hun omgeving. Deze invloed is afhankelijk van de afstand tussen een gevoelige bestemming en de bedrijvigheid. Milieugevoelige bestemmingen zijn gebouwen en terreinen die naar hun aard bestemd zijn voor het verblijf van personen gedurende de dag of nacht of een gedeelte daarvan (bijvoorbeeld woningen). Daarnaast kunnen ook landelijke gebieden en/of andere landschappen belangrijk zijn bij een zonering tot andere, minder gevoelige, functies zoals bedrijven.
 
Bij een ruimtelijke ontwikkeling kan sprake zijn van reeds aanwezige bedrijvigheid en van nieuwe bedrijvigheid. Milieuzonering zorgt er voor dat nieuwe bedrijven een juiste plek in de nabijheid van de gevoelige functie krijgen en dat de (nieuwe) gevoelige functie op een verantwoorde afstand van bedrijven komen te staan. Doel hiervan is het waarborgen van de veiligheid en het garanderen van de continuïteit van de bedrijven als ook een goed klimaat voor de gevoelige functie.
 
Milieuzonering beperkt zich tot milieuaspecten met een ruimtelijke dimensie zoals: geluid, geur, gevaar en stof. De mate waarin de milieuaspecten gelden en waaraan de milieucontour wordt vastgesteld, is voor elk type bedrijvigheid verschillend. De 'Vereniging van Nederlandse Gemeenten' (VNG) geeft sinds 1986 de publicatie 'Bedrijven en Milieuzonering' uit. In deze publicatie is een lijst opgenomen, met daarin de minimale richtafstanden tussen een gevoelige bestemming en bedrijven. Indien van deze richtafstanden afgeweken wordt dient een nadere motivatie gegeven te worden waarom dat wordt gedaan.
 
Het belang van milieuzonering wordt steeds groter aangezien functiemenging steeds vaker voorkomt. Hierbij is het motto: 'scheiden waar het moet, mengen waar het kan'. Het scheiden van milieubelastende en milieugevoelige bestemmingen dient twee doelen:
  • het reeds in het ruimtelijk spoor voorkomen of zoveel mogelijk beperken van hinder en gevaar bij gevoelige bestemmingen;
  • het bieden van voldoende zekerheid aan de milieubelastende activiteiten (bijvoorbeeld bedrijven) zodat zij de activiteiten duurzaam, en binnen aanvaardbare voorwaarden, kunnen uitoefenen.
In de VNG-publicatie 'Bedrijven en milieuzonering' (editie 2009) wordt onderscheid gemaakt in niet-bindende richtafstanden voor de omgevingstypen 'gemengd gebied'" en 'rustige woonwijk/ rustig buitengebied'. De omgeving van het plangebied wordt gezien de ligging aangemerkt als een gemengd gebied. Dit betekent dat de richtafstanden met één afstandsstap kunnen worden verminderd, met uitzondering van het aspect gevaar. De omgeving van het plangebied wordt, gezien de ligging nabij diverse bedrijven en/of instellingen, aangemerkt als een gemengd gebied.
 
Planspecifiek
Onderhavig plan voorziet in de ontwikkeling van 3 (half)vrijstaande woningen. 'Wonen' wordt in het kader van bedrijven en milieuzonering gezien als een milieugevoelige bestemming. Hiertoe moet worden bepaald of de beoogde ontwikkeling omliggende bedrijven niet stoort in de uitvoering van de bedrijfsactiviteiten. Indien de nieuwe woningen binnen de milieucontour van een bestaand bedrijf liggen, zal dit het betreffende bedrijf kunnen hinderen in zijn bedrijfsvoering.
 
Het plangebied aan de Hoorn 100 maakt onderdeel uit van het bebouwingslint aan de Oude Rijn en kan gezien de mix van functies in de nabijheid van het plangebied worden beschouwd als een gemengd gebied. Dit betekent dat de richtafstanden met één afstandsstap kunnen worden verminderd, met uitzondering van het aspect gevaar. In de navolgende tabel zijn de in de omgeving aanwezige inrichtingen/bedrijven opgenomen.
  
AdresInrichtingSBI-2008MilieucategorieRichtafstand gemengd gebiedAfstand tot plangebied
Hoorn 124Goedhart Keukens en Tegels47 A10 m16 m
Hoorn 65Hotel Avifauna551010 m122 m
Hoorn 65Vogelpark Avifauna
91041
 
3.2
 
50 m
110 m
Hoorn 65Parkeerplaats Vogelpark Avifauna
5221
210 m 40 m
 
Uit voorgaande tabel blijkt dat de omliggende bedrijven/inrichtingen op voldoende afstand tot het plangebied liggen. In het kader van een goede ruimtelijke ordening is het mogelijk de geluidbelasting van het nabij gelegen parkeerterrein te berekenen. Uit overleg met de omgevingsdienst Midden-Holland blijkt echter dat de Hoorn ter hoogte van de planlocatie een maximumsnelheid van 50 km/h kent met een referentiewegdek (DAB). Vanwege de verkeersintensiteit van de Hoorn is het geluid van deze weg dermate maatgevend dat een berekening naar de geluidsbelasting ten gevolge van het nabijgelegen parkeerterrein (met een gering aantal parkeerplaatsen) niet toereikend wordt geacht door de omgevingsdienst. In toelichting paragraaf 4.3 is met behulp van een akoestisch onderzoek wegverkeerslawaai gemotiveerd dat sprake is van een aanvaardbaar woon- en leefklimaat, mits voldaan wordt aan de eisen  voor de geluidwering conform het Bouwbesluit.
 
Ook de overige omliggende inrichtingen, liggen op voldoende afstand tot het plangebied. Hiermee vormt het aspect milieuzonering geen belemmering voor de uitvoerbaarheid van de voorgenomen ontwikkeling.
4.7 Waterhuishouding
Het aspect water is van groot belang binnen de ruimtelijke ordening. Door verstandig om te gaan met het water kan verdroging en wateroverlast (waaronder ook risico van overstromingen e.d.) voorkomen worden en de kwaliteit van het water hoog gehouden worden.
Op Rijksniveau en Europees niveau zijn de laatste jaren veel plannen en wetten gemaakt met betrekking tot water. De belangrijkste hiervan zijn het Waterbeleid voor de 21e eeuw, de Waterwet en het Nationaal Waterplan.
 
Waterbeleid voor de 21e eeuw
De Commissie Waterbeheer 21ste eeuw heeft in augustus 2000 advies uitgebracht over het toekomstige waterbeleid in Nederland. De adviezen van de commissie staan in het rapport ‘Anders omgaan met water, Waterbeleid voor de 21ste eeuw’ (WB21). De kern van het rapport WB21 is dat water de ruimte moet krijgen, voordat het die ruimte zelf neemt. In het Waterbeleid voor de 21e eeuw worden twee principes (drietrapsstrategieën) voor duurzaam waterbeheer geïntroduceerd:
  • vasthouden, bergen en afvoeren: dit houdt in dat overtollig water zoveel mogelijk bovenstrooms wordt vastgehouden in de bodem en in het oppervlaktewater. Vervolgens wordt zo nodig het water tijdelijk geborgen in bergingsgebieden en pas als vasthouden en bergen te weinig opleveren wordt het water afgevoerd.
  • schoonhouden, scheiden en zuiveren: hier gaat het erom dat het water zoveel mogelijk schoon wordt gehouden. Vervolgens worden schoon en vuil water zoveel mogelijk gescheiden en als laatste komt het zuiveren van verontreinigd water aan het bod.
Waterwet
Centraal in de Waterwet staat een integraal waterbeheer op basis van de ‘watersysteembenadering’. Deze benadering gaat uit van het geheel van relaties binnen watersystemen. Denk hierbij aan de relaties tussen waterkwaliteit, -kwantiteit, oppervlakte- en grondwater, maar ook aan de samenhang tussen water, grondgebruik en watergebruikers. Het doel van de waterwet is het integreren van acht bestaande wetten voor waterbeheer. Door middel van één watervergunning regelt de wet het beheer van oppervlaktewater en grondwater en de juridische implementatie van Europese richtlijnen, waaronder de Kaderrichtlijn Water. Via de Waterwet gelden verschillende algemene regels. Niet alles is onder algemene regels te vangen en daarom is er de integrale watervergunning. In de integrale watervergunning gaan zes vergunningen uit eerdere wetten (inclusief keurvergunning) op in één aparte watervergunning.
 
Beleid Hoogheemraadschap van Rijnland
Het Hoogheemraadschap van Rijnland is in het plangebied het bevoegd gezag voor het beheer van waterkeringen, oppervlaktewater en (ondiep) grondwater. De drie hoofddoelen van dit beheer zijn:
  • veiligheid tegen overstromingen;
  • voldoende water;
  • gezond water.
Wat betreft veiligheid is cruciaal dat de waterkeringen voldoende hoog en stevig zijn én blijven en dat rekening wordt gehouden met mogelijk toekomstige dijkverbeteringen. Wat betreft voldoende water gaat het erom het complete watersysteem goed in te richten en te beheren. Daarbij wil Rijnland dat watergangen en kunstwerken zoals gemalen op orde en toekomstvast worden gemaakt, rekening houdend met klimaatverandering.
 
Rijnlands taken en bevoegdheden op het gebied van gezond water betreffen het zuiveren van afvalwater en het reguleren van lozingen op oppervlaktewater. Europese regelgeving (de Kaderrichtlijn Water) is hierbij kaderstellend. Het voorkómen van verontreiniging en een goede inrichting van oppervlaktewateren dragen in belangrijke mate bij aan gezond water.
 
Met het oog op het zuiveren van afvalwater beheert Rijnland rioolgemalen, persleidingen en zuiveringsinstallaties.
Aan de hand van het Waterbeheersplan werkt Rijnland aan zijn ambities. In het proces van ruimtelijke planvorming heeft Rijnland een adviserende rol. In de uitvoerings- en beheersfase van ruimtelijke plannen heeft Rijnland een regelgevende rol.
 
Keur en uitvoeringsregels
Op grond van de Waterwet is het hoogheemraadschap bevoegd via een eigen verordening, de Keur, regels te stellen aan handelingen die het watersysteem beïnvloeden. Denk hierbij aan handelingen in of nabij:
  • waterkeringen (onder andere duinen, dijken en kaden);
  • watergangen (onder andere kanalen, rivieren, sloten, beken);
  • andere waterstaatswerken (o.a. bruggen, duikers, stuwen, sluizen en gemalen);
  • de bodem van kwelgevoelige gebieden.
Maar ook aan:
  • Onttrekken en lozen van grondwater;
  • Het aanbrengen van verhard oppervlak.
De Keur vermeldt expliciet welke handelingen vergunningplichtig zijn en welke aan algemene regels of aan de zorgplicht moeten voldoen. Wie bijvoorbeeld op een waterkering wil bouwen, moet een watervergunning aanvragen bij Rijnland (én een omgevingsvergunning bij de gemeente). In de uitvoeringsregels die bij de Keur horen is dit nader uitgewerkt.
 
Indien de toename aan verharding minder bedraagt dan 500 m², dan geldt alleen de algemene zorgplicht. Indien de toename meer bedraagt (t/m 5.000 m²) is in de regels opgenomen dat het oppervlak van het ter compensatie aan te leggen water, minimaal 15 % moet bedragen van het oppervlak van de toename aan verharding. Indien nieuwe compensatie moet worden gerealiseerd, moet deze voorafgaand aan het aanbrengen van de verharding zijn gerealiseerd, of gelijktijdig met het aanbrengen van de verharding worden gerealiseerd.
 
Riolering en afkoppelen
Voor zover het bestemmingsplan nieuwe ontwikkelingen mogelijk maakt, is het van belang dat er met het hoogheemraadschap afstemming plaatsvindt over het omgaan met afvalwater en hemelwater. Overeenkomstig het rijksbeleid gaat het hoogheemraadschap uit van een voorkeursvolgorde voor de omgang met deze waterstromen. Deze volgorde houdt in dat allereerst geprobeerd moet worden het ontstaan van (verontreinigd) afvalwater te voorkomen, bijvoorbeeld door het toepassen van niet uitlogende bouwmaterialen en het vermijden van vervuilende activiteiten op straat zoals auto’s wassen en chemische onkruidbestrijding. Vervolgens is het streven vuil water te scheiden van schoon water, bijvoorbeeld door het afkoppelen van hemelwaterafvoeren van gemengde rioolstelsels. De laatste stap in de voorkeursvolgorde is het zuiveren van het afvalwater. De doelmatigheid daarvan wordt vergroot door het scheiden van de schone en de vuile stromen.
 
De gemeente kan gebruik maken van deze voorkeursvolgorde bij de totstandkoming van het gemeentelijk rioleringsplan (GRP), waarin de uiteindelijke afweging wordt gemaakt en waarbij doelmatigheid van de oplossing centraal staat.
 
Planspecifiek
In de huidige situatie is het plangebied volledig verhard (zie ook toelichting paragraaf 2.1). Met de voorgenomen ontwikkeling maakt de huidige bebouwing plaats voor 3 (half)vrijstaande woningen. Hierbij worden een drietal tuinen gerealiseerd welke veelal als halfverharding gerekend worden. Indien de tuinen volledig worden bestraat, bedraagt het toekomstig verhard oppervlakte in het plangebied in het uiterste geval het volledige plangebied. In geen geval vindt een toename aan verharding plaats van meer dan 500 m². Watercompensatie is derhalve niet noodzakelijk.
     
De nieuwe bebouwing wordt aangesloten op het riool grenzend aan het plangebied. Het hemelwater vanaf de nieuwbouw (daken) zal zoveel als mogelijk afgekoppeld worden van het riool en worden afgevoerd naar de Oude Rijn.
 
De voorgenomen ontwikkeling vindt plaats in de kern- en beschermingszone van de regionale waterkering. Voor het uitvoeren van de voorgenomen ontwikkeling is op grond van de Rijnlandse Keur instemming van hoogheemraadschap van Rijnland vereist. Conform de 'ja, tenzij' benadering vallen handelingen met een klein risico onder de zorgplicht en kunnen zonder vergunning of melding worden uitgevoerd. Voor handelingen met een groter risico of in expliciet benoemde situaties zijn er algemene regels met voorwaarden van kracht of is een watervergunning vereist.  
4.8 Cultureel erfgoed
4.8.1 Cultuurhistorie
Goede ruimtelijke ordening betekent dat er een integrale afweging plaatsvindt van alle belangen die effect hebben op de kwaliteit van de ruimte. Een van die belangen is de cultuurhistorie. Ruimtelijke plannen zijn een belangrijk instrument om cultuurhistorische waarden in een gebied te beschermen.
 
Per 1 januari 2012 is in het kader van de modernisering van de monumentenzorg (MOMO) in het Besluit ruimtelijke ordening van het rijk opgenomen dat gemeenten bij het maken van ruimtelijke plannen rekening moeten houden met cultuurhistorische waarden.
 
Planspecifiek
Binnen het plangebied zijn geen monumenten of cultuurhistorische waardevolle elementen aanwezig. Daarmee is uitgesloten dat de ontwikkeling eventuele monumentale waarden aantast.
 
4.8.2 Archeologie
In 1992 is in Valletta (Malta) het Europees Verdrag inzake de bescherming van het archeologisch erfgoed (Verdrag van Malta) ondertekend. Het Verdrag van Malta voorziet in bescherming van het Europees archeologisch erfgoed onder meer door de risico's op aantasting van dit erfgoed te beperken. Per 1 juli 2016 is de Erfgoedwet ingegaan totdat de Omgevingswet in werking treedt. De Erfgoedwet bundelt bestaande wet- en regelgeving voor behoud en beheer van het cultureel erfgoed in Nederland. Onder andere de Monumentenwet is hierin opgegaan. Op basis van de Erfgoedwet zijn mogelijke (toevals)vondsten bij het verrichten van werkzaamheden in de bodem altijd beschermd. Artikel 5.10 lid 1 van de Erfgoedwet stelt namelijk: 'Degene die anders dan bij het verrichten van opgravingen een vondst doet waarvan hij weet dan wel redelijkerwijs moet vermoeden dat het een archeologische vondst betreft, meldt dit zo spoedig mogelijk bij Onze Minister'.
  
Planspecifiek
Het plangebied ligt in een zone waar volgens bestemmingsplan Alphen West een hoge verwachting geldt op het aantreffen van archeologische waarden. Voor ruimtelijke plannen geldt dat archeologisch onderzoek noodzakelijk is, indien werkzaamheden uitgevoerd worden over een oppervlakte groter dan 50 m².
 
De volgende afbeelding toont een uitsnede van de archeologische verwachtingen- en beleidskaart van de gemeente Alphen aan den Rijn.
Uitsnede archeologische waardenkaart Alphen aan den Rijn (globale ligging plangebied: rode omkadering)
 
Het plangebied bevindt zich op deze kaart eveneens in een zone met een hoge archeologische verwachting (Waarde archeologie 3a). Binnen deze zone gaat het om historische dorpslinten, de limeszone en de hoge oeverafzettingen en stroomgordels langs de Rijn en de aangrenzende wat lagere delen van de stroomgordels. Deze gebieden waren vanwege hun hoge (semi)droge ligging gunstige vestigingsplaatsen. Vondsten in dit gebied duiden op bewoning vanaf de late steentijd tot in de nieuwe tijd. Bij de voor Waarde archeologie 3a aangewezen gronden geldt dat archeologisch onderzoek noodzakelijk is bij een verstoring met een oppervlakte groter dan 100 m² en dieper dan 50 cm.
 
Vanwege de ligging van het plangebied in een zone met een hoge archeologische verwachting is in mei 2017 een archeologisch bureau- en booronderzoek uitgevoerd door Transect (zie bijlage). Op basis van het archeologisch vooronderzoek is vastgesteld dat het plangebied een middelhoge verwachting heeft op de aanwezigheid van archeologische resten uit de periode Late Middeleeuwen- Nieuwe tijd. Dit is gebaseerd op de mogelijke aanwezigheid van resten van een historische buitenplaats in het plangebied. De aan- of afwezigheid ervan kon op basis van onderhavig onderzoek niet worden vastgesteld, mede vanwege het geringe succes van het veldonderzoek. Alle boringen zijn namelijk gestaakt in puin of ondergrondse obstakels. Op basis van milieukundige boringen is wel afgeleid dat onder het puin ophooglagen en/of natuurlijke afzettingen aanwezig zijn die geïnterpreteerd zijn als geulafzettingen. Deze geulafzettingen dateren uit de periode Romeinse tijd- Late Middeleeuwen, waarmee de verwachting op nederzettingsresten in het plangebied uit die periode laag is. De aanwezigheid van water-gerelateerde zaken zoals scheepswrakken, visfuiken en beschoeiing in die afzettingen is echter nog wel mogelijk.
 
Gezien de middelhoge verwachting is een aanvullend onderzoek noodzakelijk om de aanwezigheid van archeologische resten aan te tonen dan wel uit te sluiten. Gezien het huidige grondgebruik en de aanwezigheid van diverse obstakels in de ondergrond wordt geadviseerd dit vervolgonderzoek uit te voeren in de vorm van een archeologische begeleiding (protocol proefsleuven, eventueel met doorstarten naar opgraving). Iedere andere vorm van onderzoek is op voorhand niet uitvoerbaar. Het doel van het onderzoek is daarbij met name het toetsen van de in het rapport beschreven verwachting. Voor een dergelijk gravend archeologisch onderzoek dient de werkwijze te worden vastgelegd in een Programma van Eisen (PvE), dat door de gemeente Alphen aan den Rijn dient te worden beoordeeld en goedgekeurd.
Op grond van de resultaten van het rapport en het advies zal het bevoegd gezag (de gemeente Alphen aan den Rijn) een besluit nemen over de daadwerkelijke omgang met eventueel aanwezige archeologische waarden binnen het plangebied.
4.9 Ecologie
Bij ruimtelijke ingrepen dient rekening te worden gehouden met de natuurwaarden ter plaatse. Daarbij wordt onderscheid gemaakt tussen gebiedsbescherming en soortenbescherming. Gebiedsbescherming kan volgen uit de aanwijzing van een gebied. Wat betreft soortenbescherming is per 1 januari 2017 de huidige Flora- en faunawet samen met de Boswet en Natuurbeschermingswet vervangen door de Wet natuurbescherming (Wnb). Onder de Wet natuurbescherming vervallen de huidige tabellen 1, 2 en 3 waarin de beschermde soorten zijn opgenomen. Tevens zijn er circa 200 soorten niet langer beschermd en worden enkele bedreigde soorten toegevoegd. De soortenbescherming binnen de Wet natuurbescherming is opgedeeld in de volgende beschermingsregimes: Vogelrichtlijnsoorten, Habitatrichtlijnsoorten en andere soorten. Voor alle beschermde soorten geldt een ontheffingsplicht. Het bevoegd gezag (de provincie) kunnen voor de soorten die zijn opgenomen in het ‘beschermingsregime andere soorten’ vrijstellingbesluit nemen en hierin onderscheid maken tussen meer en minder strikt beschermde soorten.
 
Daarnaast geldt voor iedereen in Nederland altijd, dus ook los van het voorliggende beoogde ruimtelijke project, dat de zorgplicht nageleefd moet worden bij het verrichten van werkzaamheden. Voor menig soort geldt dat indien deze zorgplicht nagekomen wordt een bepaald beoogd project uitvoerbaar is.
   
Planspecifiek
Ten behoeve van de beoogde ontwikkeling is voor het plangebied een ecologische quickscan uitgevoerd (Blom Ecologie, 11 mei 2017, zie bijlage). Uit het onderzoek blijkt dat in het plangebied of de directe omgeving daarvan beschermde diersoorten van de Wet natuurbescherming voorkomen. Het plangebied heeft aannemelijk geen essentiële betekenis voor soorten die behoren tot de beschermingsregimes habitatrichtlijnsoorten, vogelrichtlijnsoorten of overige soorten. Vleermuizen maken mogelijk gebruik van de locatie tijdens het foerageren en migreren. De locatie maakt onderdeel uit van het leefgebied van algemene amfibieën en zoogdieren. De planlocatie maakt geen onderdeel uit van een Natura2000-gebied, Beschermd natuurmonument, Wetland, Nationaal Park of Natuurnetwerk Nederland. Gelet op de aard van de werkzaamheden en de afstand tot gebieden is van externe werking op omliggende Natura2000-gebieden geen sprake.
   
Uitvoerbaarheid bestemmingsplan
De realisatie van 3 woningen leidt niet tot aantasting van beschermde natuurwaarden en/of beschermde gebieden. Tijdens de uitvoering dient rekening te worden gehouden met de (mogelijke) aanwezigheid van vleermuizen. Voor deze soorten dienen eventueel maatregelen te worden getroffen om effecten te voorkomen. De aanwezigheid van beschermde soorten (Wnb, overige soorten, art. 3.10) en hun leefgebied vormen geen bezwaar voor de beoogde wijziging (vrijstellingsbesluit).
 
Conclusie
De sloop van een winkelpand aan de Hoorn 100 te Alphen aan den Rijn ten behoeve van 3 (half)vrijstaande woningen is uitvoerbaar conform het bepaalde in de Wro (artikel 3.1.6 Bro).
 
4.9.1 Zorgplichtmaatregelen
Tijdens de werkzaamheden zal rekening gehouden worden met de aanbevelingen zoals deze zijn opgenomen in de ecologische quickscan:  
  • Tijdens de werkzaamheden moet voorzichtig worden gehandeld met alle voorkomende flora en fauna (Zorgplicht).
  • Wanneer ondanks zorgvuldig handelen, onderzoek en advies schade lijkt te ontstaan voor beschermde flora en fauna, dient direct contact opgenomen te worden met een ter zake deskundige.
  • Alle aanwezige vegetatie of bodemmateriaal (takken, stronken) gefaseerd verwijderen. Dit om bodembewonende dieren de kans te geven in de nabijgelegen omgeving een ander leefgebied te benutten.
  • Er wordt gelegenheid gegeven aan dieren, die tijdens de werkzaamheden worden gevonden, zich te verplaatsen naar een schuilplaats buiten het bereik van de werkzaamheden.
  • De planlocatie tijdens de werkzaamheden en in de nieuwe situatie bij voorkeur minimaal verlichten en een vleermuisvriendelijke verlichtingswijze toepassen (amberkleurig licht, lichtbundel nederwaarts, geconvergeerde lichtbundel) en de werkzaamheden in de periode april-oktober tussen zonsopgang en zonsondergang uitvoeren (buiten schemerperiodes).
  • Geen bouwzand met steile oevers creëren en dergelijke structuren voorafgaand aan het broedseizoen afdekken, afvlakken dan wel verwijderen. Tevens de werkzaamheden opstarten/uitvoeren buiten het broedseizoen (medio maart t/m medio juli). Indien de werkzaamheden in het broedseizoen worden uitgevoerd dient voor de aanvang door een ter zake deskundig gecontroleerd te worden of er broedvogels aanwezig zijn. E.e.a. op aanwijzing van deskundige.
4.10 Verkeer en parkeren
Verkeer
De planlocatie blijft direct ontsloten op Hoorn. In totaal worden een tweetal in- en uitritten gerealiseerd waaraan per woning, naast een garage, een tweetal parkeerplaatsen zijn voorzien.  In de nieuwe situatie is sprake van 3 woningen. Gemiddeld wordt per woning uitgegaan van 6 verkeersbewegingen. De verwachte verkeersgeneratie ligt daarmee maximaal rond de 18 motorvoertuigen per etmaal. De ontwikkeling heeft geen noemenswaardige toename van de verkeersintensiteit op de Hoorn tot gevolg. Te meer omdat het plangebied in de huidige situatie geschikt is voor volumineuze detailhandel met bijbehorende verkeersbewegingen.
 
Parkeren
In de huidige situatie is het plangebied geschikt voor volumineuze detailhandel met bijbehorende parkeerbehoefte. Met de voorgenomen ontwikkeling worden 3 (half)vrijstaande woningen mogelijk gemaakt. Navolgende tabel geeft de parkeerbalans weer behorende bij deze ontwikkeling. De parkeernorm betreft het gemiddelde van de bandbreedte van het CROW-kencijfers per functietype en per stedelijkheidsgraad uit CROW-publicatie 317, conform de nota Parkeernormen en parkeervoorzieningen 2014 van de gemeente Alphen aan den Rijn.
 
OntwikkelingAansluiting parkeernorm wonenParkeernorm per woningTotaal
3 (half)vrijstaande woningenkoop, 2 onder kap, rest binnen bebouwde kom (biko)2,06,0
koop, vrijstaand, rest binnen bebouwde kom (biko)2,16,3
Totaal--6 - 6,3 parkeerplaatsen
 
Met de voorgenomen ontwikkelingen dienen ten minste 2 parkeerplaatsen per woning op eigen terrein te worden gerealiseerd. Deze parkeerplaatsen (totaal 6 stuks) zijn voorzien aan de voorzijde van de woningen, bereikbaar vanaf de 2 in- en uitritten. Een viertal langsparkeerplaatsen aan de Hoorn blijven gehandhaafd. In toelichting paragraaf 2.2 is weergeven hoe de parkeerplaatsen in het plangebied zijn gesitueerd. Hiermee wordt voorzien in voldoende parkeergelegenheid in het plangebied.
 
Op het gebied van verkeer en parkeren zijn er geen belemmeringen.  
5 Juridische planbeschrijving
5.1 Algemeen
Voor het bestemmingsplan is gebruik gemaakt van de in de Wet ruimtelijke ordening opgenomen standaardvorm van de Standaard Vergelijkbare Bestemmingplannen 2012 (SVBP 2012).
 
Dit bestemmingsplan bestaat uit een verbeelding, planregels en een toelichting. De verbeelding en de planregels vormen samen het juridisch bindende gedeelte van het bestemmingsplan. Beide planonderdelen dienen in onderlinge samenhang te worden bezien en toegepast. Op de verbeelding zijn de bestemmingen aangewezen. Aan deze bestemmingen zijn bouwregels en regels betreffende het gebruik gekoppeld.
5.2 Toelichting
De toelichting heeft geen rechtskracht, maar vormt niettemin een belangrijk onderdeel van het plan. De toelichting van dit bestemmingsplan geeft een weergave van de beweegredenen, de onderzoeksresultaten en de beleidsuitgangspunten die aan het bestemmingsplan ten grondslag liggen. Ook is de toelichting van wezenlijk belang voor een juiste interpretatie en toepassing van het bestemmingsplan. Tot slot maakt een eventuele bijlage onlosmakelijk onderdeel uit van het bestemmingsplan.
5.3 Verbeelding
Op de verbeelding worden de bestemmingen weergegeven met daarbij andere bepalingen als gebiedsaanduidingen, bouwaanduidingen, bouwvlakken etc.. Voor de analoge verbeelding is gebruik gemaakt van een digitale ondergrond (Grootschalige Basiskaart en/of kadastrale kaart).
5.4 Planregels
Voor de planregels is de gestandaardiseerde opbouw uit de Standaard Vergelijkbare Bestemmingsplannen 2012 gebruikt. In de planregels is een standaard hoofdstukindeling aangehouden die begint met 'Inleidende regels' (begrippen en wijze van meten), vervolgens met de 'Bestemmingsregels', de 'Algemene regels' (de regels die voor alle bestemmingen gelden) en de 'Overgangs- en slotregels'. In het tweede hoofdstuk, de Bestemmingsregels, staan de verschillende bestemming op alfabetische volgorde.
 
Ook de regels van een bestemming kennen een standaardopbouw en worden als volgt benoemd:
  • Bestemmingsomschrijving (in elk bestemmingsplan);
  • Bouwregels (bestemmingsplanafhankelijk);
  • Nadere eisen (bestemmingsplanafhankelijk);
  • Afwijken van de bouwregels (bestemmingsplanafhankelijk);
  • Specifieke gebruiksregels (bestemmingsplanafhankelijk);
  • Afwijken van de gebruiksregels (bestemmingsplanafhankelijk);
  • Omgevingsvergunning voor het uitvoeren van een werk, geen bouwwerk zijnde, of van werkzaamheden (bestemmingsplanafhankelijk).
5.5 Wijze van bestemmen
Voorliggend bestemmingsplan bevat de volgende bestemmingen:
 
Dubbelbestemming - Waterstaat-Waterkering
De dubbelbestemming 'Waterstaat-waterkering' geldt voor de strook gelegen in het noorden van het plangebied. Deze dubbelbestemming is opgenomen ten behoeve van de nabij gelegen dijk. De bestemming is overgenomen uit het vigerende bestemmingsplan.
 
Dubbelbestemming - Waarde - Archeologie 3a
De voor 'Waarde - Archeologie 3a' aangewezen gronden zijn mede bestemd voor het behoud en de bescherming van archeologische waarden.
 
Overige zone - parkeren
Ter plaatse van de gebiedsaanduiding 'overige zone-parkeren' geldt dat het bevoegd gezag onder voorwaarden een omgevingsvergunning kan verlenen voor de activiteit bouwen en/of het gebruiken van gronden en/of de activiteit handelen in strijd met de regels ruimtelijke ordening.
 
Tuin
Deze bestemming betreft in principe, niet openbare gronden, die 'Tuin' zijn in de gebruikelijke betekenis van het woord en die dat dienen te blijven. Op gronden met deze bestemming zijn alleen bouwwerken, geen gebouw zijnde toegestaan tenzij een bouwaanduiding bijgebouw is opgenomen.
 
Verkeer
De wegen en straten e.d. en daarmee samenhangende infrastructuur met een functie die hoofdzakelijk is gericht op de afwikkeling van het (doorgaande) verkeer zijn bestemd tot 'Verkeer'. Kleine(re) stukjes groen zijn in de regel in de verkeersbestemmingen opgenomen. Hierdoor is een zekere flexibiliteit in de inrichting van de openbare ruimte gewaarborgd.
 
Vrijwaringszone - Straalpad
Ter plaatse van de aanduiding 'vrijwaringszone - straalpad' zijn de gronden mede aangewezen voor een straalverbinding.
 
Vrijwaringszone – Vaarweg
Op het perceel is een vrijwaringszone gelegen. Hierbij geldt dat 10 meter vanaf de waterzijde van de oever geen diepwortelende beplanting mag worden geplaatst en geen schuren, tuinhuisjes of andere hoogopgaande getimmerten mogen worden aangebracht, tenzij hierover schriftelijk advies is aangevraagd bij de vaarwegbeheerder.
 
Wonen
Voor de geplande woningen in het plangebied is de bestemming wonen opgenomen.
6 Economische uitvoerbaarheid
Bij de voorbereiding van een ruimtelijke plan dient, op grond van artikel 3.1.6 lid 1, sub f van het Besluit ruimtelijke ordening (Bro), onderzoek plaats te vinden naar de (economische) uitvoerbaarheid van het plan. In principe dient bij vaststelling van een ruimtelijk besluit tevens een exploitatieplan vastgesteld te worden om verhaal van plankosten zeker te stellen. Op basis van 'afdeling 6.4 grondexploitatie', artikel 6.12, lid 2 van de Wro kan de gemeenteraad bij het besluit tot vaststelling van een ruimtelijk plan echter besluiten geen exploitatieplan vast te stellen indien:
  • het verhaal van kosten van de grondexploitatie over de in het plan of besluit begrepen gronden anderszins verzekerd is;
  • het bepalen van een tijdvak of fasering als bedoeld in artikel 6.13, eerste lid, onder c, 4°, onderscheidenlijk 5°, niet noodzakelijk is;
  • het stellen van eisen, regels, of een uitwerking van regels als bedoeld in artikel 6.13, tweede lid, onderscheidenlijk b, c of d, niet noodzakelijk is.
Planspecifiek
De gemeente heeft met de initiatiefnemer een anterieure overeenkomst afgesloten. In deze overeenkomst wordt onder andere de betaling van de eventuele tegemoetkoming in de planschade, die het nieuwe planologisch kader kan veroorzaken, geregeld. Tevens wordt door de initiatiefnemer een bedrag gereserveerd voor de nog te maken kosten voor bodemsanering.
 
De overige kosten worden door middel van leges op de initiatiefnemer verhaald. Het ruimtelijke plan is hierdoor financieel uitvoerbaar.
7 Maatschappelijke uitvoerbaarheid
Bij de voorbereiding van een (voor)ontwerp bestemmingsplan dient op grond van artikel 3.1.6 lid 1 Wro sub c overleg te worden gevoerd als bedoeld in artikel 3.1.1 Bro. Op basis van het eerste lid van dit artikel wordt overleg gevoerd met relevante instanties.
 
Een ontwerp plan dient conform afdeling 3.4 Awb gedurende 6 weken ter inzage gelegd worden. Hierbij is er de mogelijkheid voor een ieder om zienswijzen in te dienen op het plan.
 
Na vaststelling door de gemeenteraad wordt het vaststellingsbesluit bekend gemaakt. Het bestemmingsplan ligt na bekendmaking 6 weken ter inzage. Gedurende deze termijn is er de mogelijkheid beroep in te dienen bij de Afdeling bestuursrechtspraak van de Raad van State. Het bestemmingsplan treedt vervolgens de dag na afloop van de tervisielegging in werking als er geen beroep is ingesteld. Is er wel beroep ingesteld dan treedt het bestemmingsplan ook in werking, tenzij naast het indienen van een beroepschrift ook om een voorlopige voorziening is gevraagd. De schorsing van de inwerkingtreding eindigt indien de voorlopige voorziening wordt afgewezen. De procedure eindigt met het besluit van de Afdeling bestuursrechtspraak van de Raad van State. 
7.1 Vooroverleg
Ter voldoening van het bepaalde in artikel 3.1.1. van het Besluit ruimtelijke ordening is het ontwerpbestemmingsplan toegezonden aan diverse instanties. Naar aanleiding van de reactie van hoogheemraadschap van Rijnland is in paragraaf 4.7 een alinea opgenomen over werkzaamheden in de kern- en beschermingszone van de regionale waterkering. Er zijn verder geen reacties ontvangen.
7.2 Zienswijzen
Het ontwerpbestemmingsplan heeft in de periode van 14 september 217 tot en met 25 oktober 2017 gedurende zes weken ter inzage gelegen. Gedurende deze termijn zijn geen zienswijzen ontvangen.