direct naar inhoud van Toelichting
Plan: Rijndijk 189a - Hazerswoude-Rijndijk
Status: vastgesteld
Plantype: bestemmingsplan
IMRO-idn: NL.IMRO.0484.B128rijndijk189a-VA01

Toelichting

Hoofdstuk 1 Inleiding

1.1 Aanleiding en doel

Door de gemeente Alphen aan den Rijn worden ter plaatse van het perceel Rijndijk 189a te Hazerswoude-Rijndijk twee kavels uitgegeven. Een derde kavel is van een particuliere grondeigenaar. De gemeente heeft met deze grondeigenaar een overeenkomst gesloten over de ontwikkeling van de drie kavels.

Omdat deze ontwikkeling strijdig is met het geldende bestemmingsplan, maar omdat het initiatief past op de locatie en gewenst is wordt medewerking verleend. Via voorliggend bestemmingsplan wordt gemotiveerd waarom de gemeente voornemens is medewerking te verlenen aan het plan en waarom dat kan volgens de Wet ruimtelijke ordening (Wro).

1.2 Ligging en begrenzing plangebied

Het plangebied is gelegen in Hazerswoude-Rijndijk aan de Rijndijk ter hoogte van huisnummer 189 en 189a. Onderstaande afbeelding toont de ligging van het plangebied in de omgeving.

afbeelding "i_NL.IMRO.0484.B128rijndijk189a-VA01_0002.jpg"  
bron: Bing maps  

1.3 Geldende bestemmingsplannen

Ter plaatse van het plangebied geldt het bestemmingsplan "Tussen Rijn en Rails 1986" vastgesteld op 27-02-1986 en goedgekeurd op 07-04-1987. De gewenste ontwikkeling past niet in dat bestemmingsplan, omdat dat plan alleen het bestaande aantal woningen toe staat. Om die reden is deze partiële herziening opgesteld.

Voor de kern Hazerswoude is een bestemmingsplan in voorbereiding. Het bestemmingsplan "Van Rijksweg 11 tot Rijn" moet alle vigerende bestemmingsplannen voor de kern vervangen. Dat plan wordt gemaakt in het kader van de wettelijke verplichting om iedere 10 jaar tot een actueel ruimtelijk plan te komen en is een zogenoemd actualisatieplan. De werkelijke situatie wordt vastgelegd en dit heeft tot gevolg dat het plan conserverend van aard is. Nieuwe ontwikkelingen worden niet meegenomen. Om deze reden wordt de ontwikkeling die dit bestemmingsplan mogelijk maakt niet meegenomen in het actualisatieplan, maar is hiervoor een eigen ruimtelijk plan geschreven.

1.4 Leeswijzer

Na dit inleidende hoofdstuk wordt in hoofdstuk 2 het initiatief beschreven. In hoofdstuk 3 is een beschrijving van het relevante Rijks-, provinciale-, regionale en gemeentelijke beleid en de relevante wetgeving opgenomen. In hoofdstuk 4 wordt het project inhoudelijk op haalbaarheid getoetst aan de hand van het geldende beleid en (milieu)wetgeving. In hoofdstuk 5 wordt vervolgens een juridische planbeschrijving gegeven. Hoofdstuk 6 gaat in op de economische uitvoerbaarheid van het plan. Tot slot gaat hoofdstuk 7 in op de maatschappelijke uitvoerbaarheid van het plan waarbij de uitkomsten van de inspraak en overlegmomenten zijn opgenomen.

Hoofdstuk 2 Planbeschrijving

2.1 Historie

Het valt niet met zekerheid te zeggen wanneer het dorp Hazerswoude is ontstaan. Wel bestaat het in 1281 als ambacht en hogen de boeren hun landerijen op met bagger. Als bescherming tegen het steeds wassende water leggen zij dijken aan, met een grasmat van afgestoken graszoden. Het Hollandse 'moer' -een barre veenwildernis- wordt ontgonnen. De bewoners ontdekken dat het moeraswater door het graven van sloten wegloopt en de bovenste veenlagen droog vallen. De grond kan dan worden afgegraven, wat hen een rijke brandstof oplevert: de turf. Daaronder bevindt zich een zeer vruchtbare grond.
Toch heeft men nog niet zoveel kennis van dit proces: de grond wordt nog verder afgegraven, nu alleen vanwege de turf, en dat blijft niet zonder gevolgen. In de vijftiende eeuw is Hazerswoude -evenals veel andere dorpen in de Rijnstreek- omgeven door water. Voor de inwoners betekent dit het einde van hun bestaan: ze trekken weg door gebrek aan bouwgrond.

Vanaf 1500 komt er een kentering in het denken: er moet strijd worden geleverd tegen het water. Er ontstaat weer wat bewoning en de agrarische sector komt tot ontwikkeling. Boeren leggen zich onder andere toe op het kweken van elzen, waarvan het twijghout wordt gebruikt. Deze 'kwekerijen' vestigen zich op de nog niet uitgegeven landen langs de -huidige- Voorweg en het riviertje De Loete. Daarnaast is er sprake van huisnijverheid. Veel bewoners leggen zich toe op het weven van kaasdoeken, wat ook betekent dat er kaas wordt gemaakt. Langs de Rijndijk liggen de meeste boerderijen.

Hazerswoude maakte in het verleden deel uit van de gemeente Rijnwoude. Rijnwoude ontstond in 1991 onder de naam 'Rijneveld' uit een fusie van de toen opgeheven gemeenten Benthuizen, Hazerswoude en Koudekerk aan den Rijn. In 1993 werd de gemeente omgedoopt tot Rijnwoude.
Op 1 januari 2014 zijn de gemeenten Alphen aan den Rijn, Boskoop en Rijnwoude gefuseerd tot een nieuwe gemeente Alphen aan den Rijn.

2.2 Bestaande ruimtelijke structuur

Langs de Oude Rijn loopt de Rijndijk waaraan de lintbebouwing van Hazerswoude-Rijndijk ligt. De foto hieronder geeft een impressie van de omgeving.

afbeelding "i_NL.IMRO.0484.B128rijndijk189a-VA01_0003.jpg"

Luchtfoto omgeving (bron: Google Maps)

Direct aan de weg ligt de lintbebouwing. Op het achterterrein van nummer 189 ligt nog een woning, Rijndijk 189a. De lintbebouwing langs de dijk is open en authentiek. Direct achter het perceel ligt een houtopstand die onderdeel uitmaakt van de EHS. Daarachter begint het open weidelandschap. Op de afgebeelde luchtfoto is de situatie te zien.

afbeelding "i_NL.IMRO.0484.B128rijndijk189a-VA01_0004.jpg"

Afbeelding vogelvlucht van plangebied (bron: Bing Maps)

Bijgevoegde beelden geven een impressie van het plangebied.

afbeelding "i_NL.IMRO.0484.B128rijndijk189a-VA01_0005.png"   afbeelding "i_NL.IMRO.0484.B128rijndijk189a-VA01_0006.png"  
Beeld plangebied in richting Rijndijk   Plangebied met bestaande inrit Rijndijk 189a  

2.3 Bestaande functionele structuur

Langs de dijk liggen met name woningen. Aan huis verbonden beroepen zijn toegestaan. Bedrijvigheid vindt plaats in de kernen en komt in de directe nabijheid van het plangebied niet voor. Achter het perceel ligt het veenweidelandschap dat behoort tot het Groene Hart. De houtopstand achter de woningen maakt onderdeel uit van de Ecologische Hoofdstructuur.

2.4 Toekomstige situatie

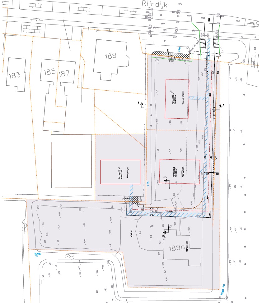
Langs de Rijndijk is nog gelegenheid voor de bouw van een woning. Naast perceel nr. 189 ligt een onbebouwd perceel dat hiervoor in aanmerking komt. Daarnaast zullen twee woningen verder van de Rijndijk af gebouwd worden, tussen nr. 189 en de verder achterop in het land gelegen woning 189a. Onderstaand een afbeelding van de inpassing van de drie nieuwe woningen.

afbeelding "i_NL.IMRO.0484.B128rijndijk189a-VA01_0007.jpg"

Voorlopige impressietekening van de nieuw te bouwen woningen

Het plan betreft 3 bouwkavels, waarvan 2 bouwkavels door de gemeente worden verkocht en waarvan 1 bouwkavel door een derde te zijner tijd nader wordt ontwikkeld.

2.5 Beeldkwaliteit

In het kader van een goede inpassing van het plan in het bestaande bebouwingslint en het landschap, dient er in elk nieuw bestemmingsplan voor het buitengebied en stads- en dorpsranden een beeldkwaliteitsparagraaf opgesteld te worden. In deze paragraaf worden de eisen ten aanzien van de beeldkwaliteit uiteengezet.

Het plangebied ligt op de oeverwal langs de Oude rijn. Van oorsprong zijn dit de vroegst bewoonde gebieden, door de natuurlijke hoogte werden bewoners beschermd tegen het water. Vanaf deze bebouwde gebieden is het achterliggende land ontgonnen. De ontginningsrichting is haaks op de rivier.

Stedenbouwkundige uitgangspunten

Langs de Rijndijk tussen Hazerswoude en Alphen heeft de bestaande bebouwing een verspringende rooilijn. Ook is er tweedelijnsbebouwing aanwezig. De stedenbouwkundige uitgangspunten voor de locatie gaan uit van beide principes. Eén woning is direct aan de Rijndijk gesitueerd, de andere twee liggen (schuin) achter deze woning. De volgende stedenbouwkundige uitgangspunten worden gehanteerd:

  • De woningen zijn met de voorzijde gericht op de Rijndijk, met de achterzijde richting het open veenweidelandschap;
  • De woningen zijn ten opzichte van de Rijndijk haaks of evenwijdig gesitueerd;
  • De oorspronkelijke verkavelingsrichting blijft herkenbaar;
  • De bestaande waterlopen blijven gehandhaafd;
  • De doorzichten richting het veenweidelandschap over het water blijven zoveel mogelijk open;
  • De woningen bestaan maximaal uit twee lagen met een kap;
  • De kavels mogen voor maximaal 50 % worden bebouwd;
  • De woningen worden ontsloten via één centrale uitrit.

Architectonische uitgangspunten

Er moet vanwege de relatie met de bestaande bebouwing van het lint van de Rijndijk aansluiting worden gezocht bij de omvang van de bestaande woningen en de architectuur. Dit betekent dat nieuwe woningen een traditionele uitstraling hebben, waarbij de woningen zijn voorzien van schuine kappen.

  • De inhoud van de bebouwing bedraagt maximaal 750 m³ inclusief aan- en uitbouwen en aangebouwde bijgebouwen;
  • De maximale goot-, en nokhoogte van het hoofdgebouw bedragen 6, respectievelijk 9 meter;
  • De maximale goot-, en nokhoogte van bijgebouwen bedragen 3, respectievelijk 6 meter;
  • De minimale afstand van hoofdgebouwen tot zijdelingse perceelgrens bedraagt 5 meter;
  • Hoofgebouwen mogen niet worden voorzien van een lessenaarskap of plat dak;
  • De nokrichting van het hoofdgebouw loopt ten opzichte van de Rijndijk haaks of evenwijdig;
  • De kap van het hoofdgebouw bestaat uit pannen of riet;
  • De wanden bestaan hoofdzakelijk uit baksteen of hout in gedekte kleuren, aangevuld met details in glas of metaal.

Erfinrichting

Kenmerkend voor de lintbebouwing aan de Rijndijk is de groene inrichting van de kavels. De huidige groene inpassing van het bestaande plangebied blijft zoveel mogelijk behouden. De kavels mogen maximaal voor 50% bebouwd worden. Om de groene uitstraling te behouden, worden de volgende eisen gesteld aan de erfinrichting:

  • Het maximale oppervlak van vrijstaande bijgebouwen en overkappingen bedraagt 50m²;
  • Het maximale oppervlak van bijbehorende bouwwerken beslaat 50% van het totale achtererfgebied op de kavel;
  • Erfafscheidingen hebben een natuurlijk karakter en worden gerealiseerd als hagen of groene schermen;
  • Erfafscheidingen zijn maximaal 2 m hoog, vóór de voorgevel maximaal 1 m hoog;
  • Parkeren geschiedt volledig op eigen terrein.

Hoofdstuk 3 Beleidskader

3.1 Rijksbeleid

Structuurvisie Infrastructuur en Ruimte (SVIR) en Besluit algemene regels ruimtelijke ordening (Barro)

In de Structuurvisie Infrastructuur en Ruimte (SVIR) geeft het kabinet een totaalbeeld van het ruimtelijk- en mobiliteitsbeleid op rijksniveau. De structuurvisie benoemt 13 onderwerpen van nationaal ruimtelijk belang. Het merendeel van die onderwerpen betreft specifieke gebieden zoals de mainportontwikkeling van Rotterdam en Schiphol, de bescherming van de waterveiligheid aan de kust en rond de grote rivieren, bescherming en behoud van de Waddenzee en enkele werelderfgoederen, de uitoefening van defensietaken, Ecologische hoofdstructuur, elektriciteitsvoorziening, toekomstige uitbreiding hoofd(spoor)wegennet en de veiligheid rond rijksvaarwegen. Een onderwerp dat niet aan bepaalde gebieden gebonden is, is duurzame verstedelijking. Voor dit onderwerp introduceert het Rijk de 'ladder voor duurzame verstedelijking' waarmee zorgvuldig ruimtegebruik door optimale benutting van de ruimte in stedelijke gebieden en het voorkomen van overprogrammering worden nagestreefd. Provincies en gemeenten dienen in hun ruimtelijke besluiten te motiveren of een nieuwe stedelijke ontwikkeling in een actuele regionale behoefte voorziet. Als dat het geval is dient gekeken te worden of deze in bestaand stedelijk gebied past (inbreiding). Pas als dat niet het geval is komt uitbreiding in beeld onder voorwaarde van een optimale ontsluiting door verschillende vervoersmodaliteiten.

In het Barro heeft het Rijk voor deze onderwerpen regels opgesteld waarmee het SVIR juridisch verankerd is richting lagere overheden. Via het Besluit ruimtelijke ordening en het Besluit omgevingsrecht zijn deze regels aanvullend verankerd.

In de structuurvisie worden, naast de onderwerpen van nationaal belang, accenten geplaatst op het gebied van bestuurlijke verantwoordelijkheden. Het beleid betekent een decentralisatie van rijkstaken en bevoegdheden. Het Rijk gaat zo min mogelijk op de stoel van provincies en gemeenten zitten en lagere overheden, burgers en bedrijven krijgen, zolang het nationaal belang niet in het geding is, de ruimte om oplossingen te creëren.

Planspecifiek

De SVIR richt zich op onderwerpen van nationaal ruimtelijk belang. Het voorliggend initiatief ligt niet in een gebied dat van belang is voor het nationaal functioneren. Het Barro geeft in die zin geen regels voor het plangebied. Daarnaast is het project verenigbaar is met de strekking van de ladder voor duurzame verstedelijking, aangezien de toevoeging van het aantal woningen regionaal is afgestemd en is opgenomen in de woonvisies. Het initiatief is niet strijdig met geldend rijksbeleid.

3.2 Provinciaal beleid

Provinciale Structuurvisie (PSV-2010) en Provinciale Verordening Ruimte (2010)

Op 2 juli 2010 hebben Provinciale Staten van Zuid-Holland de provinciale structuurvisie "Visie op Zuid-Holland, Ontwikkelen met schaarse ruimte" vastgesteld. In de provinciale structuurvisie is weergegeven dat er in 2040 een aantrekkelijk woon- en leefklimaat in Zuid-Holland bestaat. Stedelijke centra, waaronder Alphen aan den Rijn, hebben hun eigen aantrekkelijk aanbod van woonmilieus. Er bestaat een gedifferentieerd aanbod van voorzieningen waar nuttige en recreatieve tijdsbesteding kan worden gecombineerd. Uitgangspunt is een balans tussen hectiek en rust. De parken, kleine groengebieden in combinatie met andere voorzieningen en de nabijheid van de omliggende groenstructuur zorgen hiervoor.

Herziening Structuurvisie en verordening

Sinds 2010 zijn een aantal aanpassingen gedaan en reparaties uitgevoerd aan dit beleidsstuk. De volgende besluiten zijn verwerkt:

  • Reparatiebesluit contour Gouda Zuid, vastgesteld door Gedeputeerde Staten op 23 november 2010
  • Eerste Herziening, vastgesteld door Provinciale Staten op 23 februari 2011
  • Aanpassing bebouwingscontour Kaag, vastgesteld door Gedeputeerde Staten op 20 december 2011
  • Actualisering 2011, vastgesteld door Provinciale Staten op 29 februari 2012
  • Actualisering 2012, vastgesteld door Provinciale Staten op 30 januari 2013
  • Kennelijke onjuistheidsprocedure ex artikel 24 van de verordening Ruimte voor de Barrepolder te Zoeterwoude, vastgesteld door Gedeputeerde Staten op 7 november 2013
  • Herziening Herijking EHS, vastgesteld door Provinciale Staten op 11 december 2013
  • Kennelijke onjuistheidsprocedure ex artikel 24 van de verordening Ruimte voor de bebouwingscontour ter plaatse van de kruising Madepolderweg - Madesteinweg te Den Haag, vastgesteld door Gedeputeerde Staten op 9 januari 2014
  • Herziening Oostvlietpolder / Veenderveld-2, vastgesteld door Provinciale Staten op 26 februari 2014
  • Kennelijke onjuistheidsprocedure ex artikel 24 van de verordening Ruimte voor de bebouwingscontour te Goedereede, vastgesteld door Gedeputeerde Staten op 12 maart 2014

Provinciale Staten van Zuid-Holland hebben op 23 februari 2011 de Eerste Herziening van de Provinciale Structuurvisie en de Verordening Ruimte vastgesteld. De herziening heeft betrekking op enkele onderwerpen die bij de vaststelling bij de Provinciale Structuurvisie in juli 2010 nog onvoldoende waren afgerond. De belangrijkste onderwerpen zijn: bouwen buiten de contour, landgoederenzones, landgoed- en kasteelbiotopen, aanpassing kaarten van enkele gemeenten (waaronder Hillegom en Gorinchem), begrenzing Ecologische Hoofdstructuur en procedure voor transformatiegebieden nieuwe glastuinbouwlocaties.

De Verordening Ruimte stelt dat bestemmingsplannen die betrekking hebben op nieuwe ontwikkelingen op het gebied van: wonen, bedrijven, zelfstandige kantoren, detailhandel en andere stedelijke voorzieningen, moeten voorzien in een aantoonbare behoefte en gebaseerd zijn op een regionale visie op het programma terzake danwel tenminste regionaal zijn afgestemd. Nieuwe ontwikkelingen moeten voldoen aan de ladder voor duurzame verstedelijking. Dit houdt in dat wanneer een nieuwe ontwikkeling mogelijk wordt gemaakt, deze nieuwe ontwikkeling binnen of aansluitend aan bestaand stedelijk gebied moet plaatsvinden.

Bebouwingscontour

Het bestemmingsplangebied is op de bij de verordening behorende kaart 'Bebouwingscontour' met betrekking tot de woning achter 189 gelegen binnen de bebouwingscontour. De twee woningen ten oosten van nr. 189 zijn gelegen buiten de contour. Binnen de contour is verstedelijking toegestaan en zijn er vanuit de verordening geen belemmeringen.

afbeelding "i_NL.IMRO.0484.B128rijndijk189a-VA01_0008.jpg"

Uitsnede kaart bebouwingscontour Provinciale ruimtelijke verordening

Voor de twee woningen buiten de contour geldt dat deze een bijdrage moeten leveren aan de ambities die voortvloeien uit de kwaliteitskaart van de provinciale structuurvisie. Dit dient te gebeuren door de ruimtelijke kwaliteiten van het gebied te behouden en te versterken.

Ladder voor duurzame verstedelijking

De ladder voor duurzame verstedelijking gaat verder in op de wijze waarop verstedelijking tot stand mag komen. De ladder stuurt op herstructurering, intensivering en transformatie van bestaand stedelijk gebied, maar ook op gebieden aansluitend aan stedelijk gebied. De voorwaarde die hieraan verbonden is, is dat sprake moet zijn van een goed beeldkwaliteitsplan, waarin wordt aangetoond dat het plan bijdraagt aan de beeldkwaliteit van de omgeving. In dit bestemmingplan is daarom een paragraaf Beeldkwaliteit opgenomen.

afbeelding "i_NL.IMRO.0484.B128rijndijk189a-VA01_0009.jpg"

Uitsnede kaart Ladder duurzame verstedelijking

Volgens de kaart 'Ladder voor duurzame verstedelijking' die hoort bij de provinciale ruimtelijke verordening, valt het plangebied binnen de contouren voor nieuw stads- en dorpsgebied.

Kwantitatieve opgave woningbouw

De provincie stelt dat een deel van de ruimtelijke opgaven is te vertalen naar kwantitatieve woningbouwopgaven. Deze opgaven zijn, naast "het verbeteren van de ruimtelijke structuur" en "sturen op ruimtelijke kwaliteit" een belangrijk uitgangspunt voor de visie tot 2020. De volgende tabel geeft het overzicht van de kwantitatieve opgaven voor de verschillende ruimtelijke gebruiksfuncties in Zuid-Holland voor de periode 2010-2020, waarop de visie is gebaseerd. Deze opgaven zijn het resultaat van onderzoek en zijn vastgelegd in diverse bestuurlijke afspraken. Via bebouwingscontouren en afspraken zijn kaders geschetst waarbinnen gemeenten de opgaven realiseren. De cijfers laten zien dat er in de komende tien jaar nog een grote vraag naar ruimte is. Deze verschilt overigens per regio.

Regio     Programma   Behoefte WBR2010   Trend BP2010  
Zuidvleugel     115.000 + 5.000   114.800   106.800  
Holland-Rijnland (deel Rijnstreek)     6.150   4.500   1.800  
Midden-Holland (deel Groene Hart)     3.700   3.100   1.800  
Alblasserwaard/Vijfheerenlanden     5.550   4.500   2.400  
Hoeksche Waard     2.150   1.900   1.000  
Goeree-Overflakkee     1.200   1.300   1.200  
Groene Hart + Delta     18.750   15.300   8.200  
ZUID-HOLLAND     138.700   130.100   115.000  

De woningbehoefte ramingen (WBR) 2010 gaat uit van balans in vertrek en vestiging vanaf 2010 (migratiesaldo 0). Recente woningbehoefteramingen geven aan dat de afgesproken programma’s niet zonder bijzondere inspanning haalbaar zijn. Bij het gesprek dat de provincie voert in het kader van het opstellen van een regionale woonvisie, zijn de cijfers WBR2010 het vertrekpunt van gesprek van de provincie.

Het hierboven weergegeven programma betreft de toename woningbouw. Dat is exclusief compensatie sloop. De opbouw van deze programma's is verantwoord in de Provinciale Monitor Wonen 2010.

Voor de regio’s in het Groene Hart en de Hoeksche Waard geldt dat programma's die kunnen worden afgeleid van migratiesaldo nul niet afzetbaar zijn (dat is voor de markt teveel). Met de regio samen is een meer bescheiden, wel afzetbaar, programma ontwikkeld.

Wonen in het Groene Hart

Met het rijk is afgesproken dat het in het gehele Groene Hart gaat om 35.700 netto toe te voegen woningen in de periode 2004 tot 2020. Dit betekent voor het Zuid-Hollandse deel een toename van de voorraad van 26.600 woningen in de periode 2004-2020. De Groene Hartprovincies monitoren jaarlijks gezamenlijk de woningbouw- en economische ontwikkeling in het gebied. Het restant van dit afgesproken programma voor de periode 2010 tot en met 2019 bestaat uit circa 20.000 woningen. Uit de woningmarktverkenningen Zuid-Holland 2010 blijkt dat de actuele vraag naar woningen in het Groene Hart aanmerkelijk lager is dan dit afgesproken programma.

Een doorvertaling van het woningbouwprogramma op gemeentelijk niveau, is verder uitgewerkt in paragraaf 3.4.

Groene Hart

De provinciale structuurvisie gaat ook in op het Groene Hart. In het Groene Hart is behoud en ontwikkeling van de onderscheiden waardevolle landschappen gekoppeld aan verschillende opgaven. Deze worden per gebied genoemd. Per (deel)gebied worden de kwaliteiten toegelicht en wordt de samenhang met deze gebiedsopgaven uitgewerkt.

Versterking van de landschappelijke kwaliteit richt zich globaal op de vier kernkwaliteiten die benoemd zijn in de Voorloper Groene Hart: landschappelijke diversiteit, veenweidekarakter (inclusief de strokenverkaveling en lintbebouwing), openheid en rust & stilte. De kernkwaliteiten in de deelgebieden voor het Groene Hart hebben de gezamenlijke Groene Hartgemeenten en -provincies uitgewerkt in de Kwaliteitsatlas Groene Hart.

De ontwikkeling vindt plaats binnen de grenzen van het Groene Hart. Omdat het plan echter onderdeel is van het dorp Hazerswoude-Rijndijk wordt verder geen afbreuk gedaan aan de kwaliteiten van het Groene Hart.

Conclusie

Geconcludeerd kan worden dat het plan niet in strijd is met provinciaal beleid of provinciale belangen.

Visie Ruimte en Mobiliteit

De provincie stuurt op (boven)regionaal niveau op de inrichting van de ruimte in Zuid-Holland. De Visie ruimte en mobiliteit (VRM), vastgesteld door Provinciale Staten op 9 juli 2014, geeft op hoofdlijnen sturing aan de ruimtelijke ordening en maatregelen op het gebied van verkeer en vervoer. Na de publicatie in het provinciaal blad omstreeks 1 augustus, treedt de VRM in werking.

Hoofddoel van de VRM is het scheppen van voorwaarden voor een economisch krachtige regio. Dat betekent: ruimte bieden om te ondernemen, het mobiliteitsnetwerk op orde en zorgen voor een aantrekkelijke leefomgeving. De VRM bevat een nieuwe sturingsfilosofie. De kern daarvan is:

Ruimte bieden aan ontwikkelingen.

  • Aansluiten bij de maatschappelijke vraag naar woningen, bedrijfsterreinen, kantoren, winkels en mobiliteit.
  • Allianties aangaan met maatschappelijke partners.
  • Minder toetsen op regels en meer sturen op doelen.

Bij de VRM horen: de Visie ruimte en mobiliteit, de Verordening ruimte, het Programma ruimte en het Programma mobiliteit.

In de VRM zijn 4 thema’s te onderscheiden:

  • 1. Beter benutten en opwaarderen
  • 2. Versterken stedelijk gebied (agglomeratiekracht)
  • 3. Versterken ruimtelijke kwaliteit
  • 4. Bevorderen van een water- en energie-efficiënte samenleving

Programma ruimte

Het programma ruimte beschrijft de operationele doelen en de realisatiemix om doelen te (doen) bereiken. Ook wordt ingegaan op de rolverdeling en afspraken tussen gemeenten, regio’s en provincie. De realisatiemix uit het programma ruimte bestaat uit juridische, financiële en bestuurlijke instrumenten en nader uit te werken beleid. In de praktijk worden deze vrijwel altijd gecombineerd ingezet.

Programma mobiliteit

In het programma mobiliteit staan de ambities en de provinciale belangen. Het programma mobiliteit kent een grotere dynamiek dan de visie. Het kan hierdoor bijvoorbeeld in samenhang met een nieuw collegeprogramma, elke vier jaar worden geactualiseerd. Daarbij wordt verbinding gelegd met de verschillende uitvoeringsprogramma’s, beleidsuitwerkingen en verordeningen zoals deze al bestaan voor mobiliteit.

Juridisch instrumentarium (o.a. Verordening ruimte 2014)

Het juridisch instrumentarium vloeit voort uit de Wet ruimtelijke ordening en staat in de Verordening ruimte 2014. Het gaat daarbij om de verordening, het provinciaal inpassingsplan en de (proactieve en reactieve) aanwijzing. De provincie kan deze instrumenten inzetten als er sprake is van provinciaal belang. De provincie beschouwt in ieder geval van provinciaal belang de in de visie opgenomen doelen en de uitwerking daarvan in het programma ruimte en mobiliteit. In de verordening staan de regels die de provincie stelt aan ruimtelijke ontwikkelingen. In de Agenda Ruimte werkt de provincie uit wat nodig is om de gewenste ontwikkelingen samen met partners of alleen te realiseren. Deze wordt in een later stadium vastgesteld.

Conclusie

Belangrijk ten opzichte van de Provinciale Structuurvisie en Provinciale Verordening Ruimte is dat bouwen van woningen en bedrijven buiten het bestaande stads- en dorpsgebied mogelijk wordt. Dit is echter alleen het geval wanneer binnen de bestaande bebouwing geen ruimte is, de maatschappelijke behoefte is aangetoond en de nieuwe ontwikkeling bijdraagt aan het behoud of verbetering van de ruimtelijke kwaliteit. De 'rode contouren' verdwijnen. Voor onderhavig plangebied geldt dat het binnen het bestaande dorpsgebied komt te liggen. De VRM staat daarmee ontwikkeling van het initiatief niet in de weg.

In lijn met de maatschappelijke behoefte zet de provincie in op het beter benutten van het bestaand stads- en dorpsgebied. Indien een gemeente een ruimtelijke ontwikkeling wil realiseren, wordt de Ladder voor duurzame verstedelijking doorlopen. De provincie wil bevorderen dat de ladder op (sub)regionaal niveau wordt toegepast en dat samenwerkende gemeenten een gezamenlijk beeld ontwikkelen van de ontwikkelmogelijkheden binnen en buiten bestaand stads- en dorpsgebied. De gemeenten stemmen de geplande opgave met behulp van actuele regionale visies voor wonen, kantoren, bedrijventerreinen en detailhandel af met andere gemeenten in de regio. De toe te voegen woningen maken reeds onderdeel uit van de regionale woonvisie. In die zin past de ontwikkeling binnen de uitgangspunten van de VRM.

3.3 Regionaal beleid

Gebiedsprofiel Wijk en Wouden

Met de introductie van gebiedsprofielen wil de provincie ruimtelijke kwaliteit als belangrijke voorwaarde stellen voor nieuwe gebiedsontwikkelingen. Het gebiedsprofiel Wijk en Wouden (vastgesteld door de GS op 17 juli 2013) verbeeldt en beschrijft de ruimtelijke kwaliteiten en ambities voor het (landelijke) gebied in de regio rondom het plangebied. Hierdoor wordt duidelijk waar rekening mee moet worden gehouden bij nieuwe ruimtelijke ingrepen.

In samenwerking met gemeenten, de regio, het waterschap en enkele maatschappelijk betrokken partijen, heeft de provincie de kwaliteiten in Wijk en Wouden bepaald. De ambities in het gebiedsprofiel richten zich op:

  • De herkenbaarheid van de structuur van dijken en kreken.
  • De openheid van de polders.
  • De ontwikkeling van hoogwaardige dorpsranden.
  • Een zonering van het landschap.
  • Versterken van de verbindingen tussen dorp en landschap.
  • De verdere ontwikkeling van natuur.

Voor gemeenten vormt het gebiedsprofiel een handreiking bij de verplicht op te stellen beeldkwaliteitsparagraaf bij nieuwe bestemmingsplannen voor het buitengebied en stads- en dorpsranden. Voor ontwikkelaars en ontwerpbureaus bevat het gebiedsprofiel informatie voor de ruimtelijke kwaliteitseisen die zij kunnen gebruiken bij hun planuitwerking. Tot slot zijn de gebiedsprofielen zelfbindend voor de provincie. Dit betekent dat de provincie bij het opstellen van haar plannen gebruik dient te maken van de informatie in de gebiedsprofielen.

Conclusie

Het plangebied ligt aan de Rijndijk, onderdeel van het 'Rivierdijklint'. Dit was het vroegst bebouwde gebied, vanwaaruit het achterliggende land is ontgonnen. De ontginningsrichting is haaks op de rivier. Het rivierdijklint kenmerkt zich door een mix van bedrijvigheid en wonen, statige boerderijen en opvallend langgerekte bebouwing met groen ingeplante erven. Enkele monumentale boerderijen staan op enige afstand van de weg, waar kleiruggen wat verder van de rivier af liggen. Tussen de bebouwing door zijn lange zichtlijnen de polder in. De weg ligt over het grootste gedeelte aan het water, vaak met het jaagpad tussen weg en water. Op smalle buitendijkse stroken land heeft zich in eerste instantie watergebonden industrie gevestigd, maar later ook woonbebouwing.

Bij ontwikkelingen zijn de huidige korrel, profiel, en transparantie van het lint richtinggevend. Bij nieuwe ontwikkelingen dient rekening gehouden te worden met:

  • Hoge cultuurhistorische waarde van het rivierlint, er wordt inspiratie geput uit oorspronkelijke elementen en geschiedenis.
  • De oorspronkelijke verkavelingsrichting blijft herkenbaar. Over sloten haaks op de oeverwal blijft zicht mogelijk naar open veenweidelandschap.
  • De directe relatie tussen het lint en de rivier blijft behouden, zowel door het zicht over het water te handhaven, als door openbare oevers te behouden.
  • Bebouwing staat met de voorkant naar de weg, en met de achterkant naar het polderlandschap.

De hiervoor beschreven uitgangspunten zijn als uitgangspunt gehanteerd bij het opstellen van de beeldkwaliteitsparagraaf in dit bestemmingsplan.

Regionale structuurvisie 2020

Regio Holland Rijnland ligt midden in de Randstad en telt ruim vijfhonderdduizend inwoners. De gemeenten Alphen aan den Rijn, Kaag & Braassem, Hillegom, Katwijk, Leiden, Leiderdorp, Lisse, Nieuwkoop, Noordwijk, Noordwijkerhout, Oegstgeest, Teylingen, Voorschoten en Zoeterwoude werken samen in het samenwerkingsorgaan Holland Rijnland. In de Regionale StructuurVisie 2020 verwoorden deze veertien gemeenten hun ruimtelijke visie op de regio.

De Regionale Structuurvisie heeft als doel: een goede balans realiseren tussen gebiedsontwikkeling en behoud van het oorspronkelijke karakter. In de Regionale Structuurvisie van Holland Rijnland wordt inzicht gegeven in de ruimtelijke ontwikkelingen tot 2020 (met doorkijk naar 2030). Op basis van deze visie zijn de zeven kernbeslissingen geformuleerd.

  • 1. Holland Rijnland als topwoonregio; Het reserveren van grond voor woningen heeft ruimtelijke prioriteit;
  • 2. Leiden vervult een regionale centrumfunctie;
  • 3. Concentratie van stedelijke ontwikkeling; Bebouwing wordt geconcentreerd in de Aaneengesloten Stedelijke Agglomeratie van Katwijk tot en met Leiden, de zone langs de Oude Rijn tussen Leiden en Alphen aan den Rijn conform de Transformatievisie Oude Rijnzone en in Alphen aan den Rijn;
  • 4. Groen-Blauwe kwaliteit staat centraal; de groen-blauwe ondergrond wordt gebruik als onderlegger bij het stedenbouwkundig ontwerp;
  • 5. Het Groene Hart, de Bollenstreek en Duin, Horst en Weide blijven open;
  • 6. twee economische speerpunten; opschaling van de kenniseconomie en uitbreiding van de Greenports;
  • 7. verbetering van de regionale bereikbaarheid.

Conclusie

De onderscheidenlijke gemeenten die deel uitmaken van Holland Rijnland, maken bovenstaande 7 kernbeslissingen specifieker in hun gemeentelijk beleid. De kernbeslissingen staan ontwikkeling van het plangebied niet in de weg.

Regionale Woonvisie Holland Rijnland 2009-2019

De regionale woonvisie is feitelijk de uitwerking van de regionale structuurvisie op het beleidsterrein voor wonen. De regio is een top woonregio en draagt daarmee bij aan een aantrekkelijk (internationaal) vestigingsklimaat in de Zuidvleugel. Daarom ligt de focus enerzijds de realisatie van topwoonmilieus voor hen die willen verhuizen vanwege hun werk in de groeiende bedrijfstakken zoals Bio Sciences. Anderzijds is er een belangrijke opgave voor sociale woningbouw voor doelgroepen die niet zelfstandig in hun woonbehoefte kunnen voorzien. Dus niet alleen voor de huidige maar ook voor toekomstige bewoners wil Holland Rijnland een alternatief bieden. Daarom heeft het Algemeen Bestuur ingestemd met de Woonvisie Holland Rijnland 2009-2019. Hierin staan de belangrijkste afspraken over wonen in de regio.

De woningbouwopgave voor Holland Rijnland is zeer divers. In het meer verstedelijkte deel van de regio is nog steeds een kwantitatief tekort aan woningen. In de komende tien jaar zouden in heel Holland Rijnland circa 20.000 woningen erbij moeten worden gebouwd om aan de vraag te voldoen. Maar in sommige delen van het Groene Hart zet een tendens naar krimp in en zal de (kwantitatieve) vraag afnemen. Voor de hele regio geldt dat er steeds beter rekening zal moeten worden gehouden met gewijzigde woonvoorkeuren van consumenten. Kwaliteit wordt steeds belangrijker en de uitdaging zal zijn om middelen te vinden om vraag en aanbod zowel in kwantitatieve als kwalitatieve zin op elkaar af te stemmen. Die slag zal moeten worden gemaakt in de nieuwe woonvisie met een nieuw bouw- en herstructureringsprogramma.

Conclusie

De 3 toe te voegen woningen in het plangebied passen binnen de regionale woningafspraken met Holland Rijnland.

3.4 Gemeentelijk beleid

Samengestelde structuurvisie Rijnwoude 2020 (2008)

Op grond van de Wro zijn gemeenten verplicht om voor hun grondgebied één of meer structuurvisies vast te stellen. De voormalige gemeente Rijnwoude heeft ervoor gekozen om de bestaande visies te bundelen en in één document op te nemen. De samengestelde structuurvisie bestaat uit de volgende documenten: Structuurvisie Rijnwoude 2020, Van droom naar daad (2005) en de Transformatievisie Oude Rijnzone (2007).

De hoofdkeuzen uit de Structuurvisie Rijnwoude 2020 zijn nog steeds actueel. Ook na de herindeling met de gemeenten Alphen aan den Rijn en Boskoop. De hoofdkeuzen zijn:

  • 1. Rijnwoude 'Dorpen tussen steden' - versterken dorpse kwaliteiten en niet (visueel) vastgroeien aan de nabijgelegen stedelijke gebieden en Ontwikkelen Oude Rijnzone vanuit kwaliteiten.
  • 2. Rijnwoude een complete, leefbare gemeente van subregionaal niveau - versterking van het bestaande voorzieningencentrum, Hazerswoude-Rijndijk als hoofdvoorzieningencentrum Rijnwoude, versterken structuur Hazerswoude-Dorp en Benthuizen aan het Bentwoud;
  • 3. Verschil ontwikkelingsmogelijkheden 'grasland' en 'akkerland' - behouden en versterkenvan graslandschap en geleidelijke transformatie akkerland.

Conclusie

De Samengestelde Structuurvisie Rijnwoude 2020 biedt geen concrete uitgangspunten die voor onderhavig initiatief van belang zijn. Het staat de ontwikkeling echter niet in de weg.

Woonvisie Rijnwoude 2005-2020 'Wonen in de tuin van de Randstad' 

De druk van steden in de regio, bijvoorbeeld de ontwikkeling van de Oude Rijnzone, was voor de gemeente Rijnwoude aanleiding om een woonvisie op te stellen. Op 22 september 2005 is deze vastgesteld door de raad. Eind 2012 is de woonvisie geactualiseerd.

De gemeente heeft verantwoordelijkheden voor een goed functionerende woningmarkt. De afgelopen jaren is het besef gegroeid dat goed inspelen op de 'vraag' bepalend is voor een goed werkende woningmarkt. Dus niet regels vanuit de overheid, noch de aanbiedende partijen. Meer dan ooit blijkt de 'markt' (de vraag) te dicteren.
De gemeente heeft hierin vooral een faciliterende en regisserende rol. Zij heeft verantwoordelijkheid voor een betere afstemming tussen vraag en aanbod, in het bijzonder voor groepen die dit niet op eigen (economische) kracht kunnen. De uitvoering is in handen van autonome marktpartijen (corporaties, beleggers, ontwikkelaars). Sturing geven aan de gewenste ontwikkelingen vraagt derhalve om een subtiel samenspel tussen gemeente en marktpartijen. Op grond van haar woonvisie onderneemt de gemeente de volgende activiteiten.

  • Stimuleren: rol van de gemeente is initiëren van nieuwe ontwikkelingen en voldoende keuzemogelijkheden (variëteit). De gemeente stimuleert partijen dat zij vanuit hun verantwoordelijkheden bijdragen aan de uitvoering.
    Situeren: de gemeente heeft kennis en overzicht van het netwerk van partijen en bestaande initiatieven. Hierdoor is zij in staat een integrale afweging te maken.
  • Steun creëren: de gemeente zorgt voor (blijvend) draagvlak voor het beleid bij betrokken organisaties. Deze organisaties zullen immers het beleid moeten uitvoeren. Dan is draagvlak bij hen essentieel.
  • Sturen: de gemeente gebruikt haar beschikbare instrumenten (waaronder vergunningen en subsidies) om ontwikkelingen te sturen.
  • Samenwerken: de gemeente is partner van marktpartijen bij ontwikkelingen. Zij helpt de gewenste ontwikkelingen van de grond te komen en ondersteunt zo partijen bij het realiseren van hun ondernemingsdoelen.

Tot 2020 zijn er in Rijnwoude 85 woningen per jaar nodig om de groei in autonome woningbehoefte op te kunnen vangen. Om het tekort van afgelopen jaren op te vangen zijn 30 extra woningen per jaar haalbaar.

Tevens wordt gestuurd op kwaliteit. Dit om de doorstroming op gang te kunnen brengen. Starters en senioren krijgen de prioriteit, waarbij de gemeente inzet op een sluitend aanbod van wonen, zorg en welzijn op kern- en of wijkniveau.

Conclusie

De te bouwen woningen zijn opgenomen in de gemeentelijke Woonvisie. Alphen aan de Rijn is bezig om haar Woonvisie aan te passen (te harmoniseren) in verband met de gemeentelijke herindeling. In 2014 zal dit nog zijn beslag krijgen. De 3 woningen op de locatie Rijndijk 189a zullen in deze Woonvisie worden opgenomen.

Hoofdstuk 4 Omgevingsaspecten

De uitvoerbaarheid van een bestemmingsplan moet op grond van het Besluit ruimtelijke ordening (Bro) aangetoond worden (artikel 3.1.6 van het Bro). Daaronder valt zowel de onderzoeksverplichting naar verschillende ruimtelijk relevante aspecten (geluid, bodem, etc.) als ook de economische uitvoerbaarheid van het plan.

4.1 Milieueffectrapportage

In het Besluit m.e.r. is bepaald dat een milieueffectbeoordeling uitgevoerd moet worden als een projectactiviteit nadelige gevolgen heeft voor het milieu. Dergelijke projectactiviteiten zijn genoemd in bijlage onder D van het Besluit m.e.r. De beschreven activiteit wordt genoemd in de D-lijst onder categorie D 11.2 ‘Stedelijk Ontwikkelingsproject’.

Categorie   Activiteit   Drempelwaarde   Omvang activiteit  
D.11.2   De aanleg, wijziging of uitbreiding van een stedelijk ontwikkelingsproject met inbegrip van de bouw van winkelcentra of parkeerterreinen.   In gevallen waarin de activiteit betrekking heeft op:
1. een oppervlakte van 100 ha of meer,
2. een aaneengesloten gebied en 2000 of meer woningen omvat, of
3. een bedrijfsvloeroppervlakte van 200.000 m2 of meer.  



oppervlakte ca. 1500 m2

3 woningen


geen bedrijfsvloeroppervlakte  

De omvang van de activiteit ligt ruim onder de drempelwaarden. In de omgeving van het plangebied liggen geen gevoelige gebieden. Een nadere beoordeling in een m.e.r.-beoordeling is niet nodig.

4.2 Bedrijven en milieuzonering

Het aspect bedrijven en milieuzonering gaat in op de invloed die bedrijven kunnen hebben op hun omgeving. Deze invloed is afhankelijk van de afstand tussen een gevoelige bestemming en de bedrijvigheid. Milieugevoelige bestemmingen zijn gebouwen en terreinen die naar hun aard bestemd zijn voor het verblijf van personen gedurende de dag of nacht of een gedeelte daarvan (bijvoorbeeld woningen). Daarnaast kunnen ook landelijke gebieden en/of andere landschappen belangrijk zijn bij een zonering tot andere, minder gevoelige, functies zoals bedrijven.

Bij een ruimtelijke ontwikkeling kan sprake zijn van reeds aanwezige bedrijvigheid en van nieuwe bedrijvigheid. Milieuzonering zorgt er voor dat nieuwe bedrijven een juiste plek in de nabijheid van de gevoelige functie krijgen en dat de (nieuwe) gevoelige functie op een verantwoorde afstand van bedrijven komen te staan. Doel hiervan is het waarborgen van de veiligheid en het garanderen van de continuïteit van bedrijven als ook een goed klimaat voor gevoelige functies.

Milieuzonering beperkt zich tot milieuaspecten met een ruimtelijke dimensie zoals: geluid, geur, gevaar en stof. De mate waarin de milieuaspecten gelden en waaraan de milieucontour wordt vastgesteld, is voor elk type bedrijvigheid verschillend. De 'Vereniging van Nederlandse Gemeenten' (VNG) geeft sinds 1986 de publicatie 'Bedrijven en Milieuzonering' uit. In deze publicatie is een lijst opgenomen, met daarin de minimale richtafstanden tussen een gevoelige bestemming en bedrijven. Indien van deze richtafstanden afgeweken wordt dient een nadere motivatie gegeven te worden waarom dat wordt gedaan.

Het belang van milieuzonering wordt steeds groter aangezien functiemenging steeds vaker voorkomt. Hierbij is het motto: 'scheiden waar het moet, mengen waar het kan'. Het scheiden van milieubelastende en milieugevoelige bestemmingen dient twee doelen:

  • het reeds in het ruimtelijk spoor voorkomen of zoveel mogelijk beperken van hinder en gevaar bij gevoelige bestemmingen;
  • het bieden van voldoende zekerheid aan de milieubelastende activiteiten (bijvoorbeeld bedrijven) zodat zij de activiteiten duurzaam, en binnen aanvaardbare voorwaarden, kunnen uitoefenen.

Planspecifiek

In het plangebied komen geen bedrijven voor en wordt ook geen bedrijvigheid mogelijk gemaakt. In de directe omgeving van het plangebied liggen 2 bedrijven. Een bedrijf op een afstand van ca. 100 meter ten oosten van het plangebied en een bedrijf op ca. 130 meter ten westen van het plangebied. Beide bedrijven kennen een hindercirkel van maximaal in maximaal 30 meter ingevolge de brochure bedrijvigheid en milieuzonering van de VNG. De afstand van deze bedrijven tot het plangebied is groot genoeg.

Hiermee kan gesteld worden dat onderhavig bestemmingsplan uitvoerbaar is op het gebied van milieuzonering.

4.3 Geluid

De mate waarin het geluid, het woonmilieu mag belasten, is geregeld in de Wet geluidhinder (Wgh). De kern van de wet is dat geluidsgevoelige objecten worden beschermd tegen geluidhinder uit de omgeving. In de Wgh worden de volgende objecten beschermd (artikel 1 Wgh per 01-04-2012):

  • woningen;
  • geluidsgevoelige terreinen (bij algemene maatregel van bestuur als zodanig aangewezen terrein dat vanwege de bestemming of het gebruik daarvan bijzondere bescherming tegen geluid behoeft);
  • andere geluidsgevoelige gebouwen (bij algemene maatregel van bestuur als zodanig aangewezen gebouw dat vanwege de bestemming of het gebruik daarvan bijzondere bescherming tegen geluid behoeft, niet zijnde een woning).

Het beschermen van deze geluidsgevoelige objecten gebeurt aan de hand van vastgestelde zoneringen. De belangrijkste geluidsbronnen die in de Wet geluidhinder worden geregeld zijn: industrielawaai, wegverkeerslawaai en spoorweglawaai. Verder gaat deze wet onder meer ook in op geluidwerende voorzieningen en geluidbelastingkaarten en actieplannen.

4.3.1 Industrielawaai

Dit plan voorziet in de mogelijkheid voor nieuwbouw van drie woningen. Van industrielawaai is in casu geen sprake. In de nabije omgeving is geen (gezoneerd) bedrijventerrein aanwezig.

4.3.2 Railverkeerslawaai

De spoorweg ligt op ca. 380 meter van de woning die het meest dicht op de spoorweg is geprojecteerd. Deze afstand is te groot om geluidshinder van railverkeer te ondervinden. Uit onderstaande afbeelding blijkt dat de planlocatie buiten de geluidszone voor spoorverkeer valt.

afbeelding "i_NL.IMRO.0484.B128rijndijk189a-VA01_0010.jpg"

Geluidkaart; geluid vanwege spoorverkeer

4.3.3 Wegverkeerslawaai

Om te onderzoeken of er consequenties zijn van het wegverkeerslawaai, is een akoestisch onderzoek uitgevoerd. Dit onderzoek is als bijlage bij dit bestemmingsplan gevoegd.

Om de bouw van de woningen geluidstechnisch mogelijk te maken gaat het gemeentebestuur ervoor kiezen de bebouwde komgrens, die nu op een afstand van ca. 65 meter van het plangebied ligt, op te schuiven, zodat het plangebied binnen de bebouwde kom van Hazerswoude-Rijndijk komt te liggen. Hierdoor wordt de maximum snelheid gereduceerd tot 50 km/u en is het mogelijke een procedure hogere waarde te doorlopen tot maximaal 63 dB. Omdat er nog meer woningen aan de Rijndijk liggen tussen het plangebied en de huidige bebouwde kom is dit een geldige reden de bebouwde kom van Hazerswoude-Rijndijk uit te breiden.

De drie woningen liggen op ca. 29, 58 en 60 meter uit de as van de Rijndijk. Dit is binnen de bebouwde kom een weg met een maximum snelheid van 50 km/uur en buiten de bebouwde kom een weg met een maximumsnelheid van 60 km/uur. De geluidbelasting door wegverkeer op de Rijndijk bedraagt ten hoogste 54 dB na aftrek van 5 dB ex art 110-g Wgh. Op de hoogst geluidbelaste gevel van de meest noordelijke woning wordt de voorkeursgrenswaarde op de hoogst geluidbelaste gevel met 6 dB overschreden. Op de hoogst geluidbelaste gevel van de meest westelijke woning wordt de voorkeursgrenswaarde op één woning met 1 dB overschreden. De maximale hogere waarde van 63 dB wordt niet overschreden. Op de derde woning wordt de voorkeursgrenswaarde niet overschreden.

Het besluit voor de aanpassing van de bebouwde komgrens is inmiddels genomen. Tevens is de ontheffing voor hogere waarden verleend. Hiermee kan gesteld worden dat het initiatief uitvoerbaar is op het gebied van geluid.

4.4 Lucht

In de Wet Milieubeheer gaat paragraaf 5.2 over luchtkwaliteit. Deze paragraaf vervangt het Besluit Luchtkwaliteit 2005 en staat ook wel bekend als de Wet luchtkwaliteit. De Wet luchtkwaliteit introduceert het onderscheid tussen 'kleine' en 'grote' projecten. Kleine projecten dragen 'niet in betekenende mate' (NIBM) bij aan de verslechtering van de luchtkwaliteit. Een paar honderd grote projecten dragen juist wel 'in betekenende mate' bij aan de verslechtering van de luchtkwaliteit. Het gaat hierbij vooral om bedrijventerreinen en infrastructuur (wegen).

Wat het begrip 'in betekenende mate' precies inhoudt, staat in de algemene maatregel van bestuur 'Niet in betekenende mate bijdragen' (Besluit NIBM). Op hoofdlijnen komt het erop neer dat 'grote' projecten die jaarlijks meer dan 3 procent bijdragen aan de jaargemiddelde norm voor fijn stof en stikstofdioxide (1,2 microgram per m3) een 'betekenend' negatief effect hebben op de luchtkwaliteit. 'Kleine' projecten die minder dan 3 procent bijdragen, kunnen doorgaan zonder toetsing. Dat betekent bijvoorbeeld dat lokale overheden een woonwijk van minder dan 1.500 huizen niet hoeven te toetsen aan de normen voor luchtkwaliteit. Deze kwantitatieve vertaling naar verschillende functies is neergelegd in de Regeling 'niet in betekenende mate bijdragen'.

In het kader van het opstellen van een bestemmingsplan moeten er twee aspecten in beeld gebracht worden. Ten eerste of de luchtkwaliteit de nieuwe functie toelaat. Ten tweede moet bekeken worden of het plan de luchtkwaliteit ‘niet in betekenende mate’ verslechtert. Indien het plan wel ‘in betekenende mate’ bijdraagt aan verslechtering van de luchtkwaliteit, is het van belang om te toetsen of de grenswaarden niet overschreden worden. Indien geen overschrijding van de grenswaarden plaatsvindt, kan het plan alsnog gerealiseerd worden.

Planspecifiek

Luchtkwaliteit

Vanuit het oogpunt van een goede ruimtelijke ordening is de luchtkwaliteit ter plaatse van het plangebied nagegaan. Met behulp van de saneringstool (www.saneringstool.nl) die behoort bij het Nationaal Samenwerkingsprogramma Luchtkwaliteit (NSL) kan voor diverse prognosejaren inzicht worden gegeven in de jaargemiddelde concentraties NO2 en PM10 langs relevante wegen. In dit geval is nagegaan wat de concentraties zijn in de directe omgeving, aangezien dit een maatgevende weg is voor luchtkwaliteit in de omgeving van het plangebied.

In dit bestemmingsplan wordt wonen mogelijk gemaakt. Dit is een nieuwe gevoelige functie. Met behulp van de NSL Rekentool is vastgesteld of de luchtkwaliteit ter plaatse van het plangebied voldoet aan de gestelde normen.

Volgens de NSL Rekentool zijn de concentraties voor het toetsingsjaar 2015:

  Stikstofdioxide (pg/m3)   Fijn stof PM 10 (Mg/m3)   Fijn stof PM2,5 (Hg/m3)  
Concentratie 2015   21,9   23,2   15,1  
grenswaarde   40   40   25  

Uit de tabel blijkt dat in 2011 langs de Rijndijk de concentraties stikstofdioxide en fijn stof lager zijn dan de grenswaarden (respectievelijk 24,6 µg/m3 en 23,9 µg/m3). Het is de verwachting dat door het schoner worden van de autotechniek de concentratie van met name stikstofdioxide in de toekomst nog lager is. Vanuit het aspect luchtkwaliteit zijn er geen belemmeringen.

Verslechtering niet in betekenende mate

Het plan maakt de ontwikkeling van 3 woningen mogelijk. De verkeersaantrekkende werking van deze ontwikkeling is beperkt zodat het plan niet in betekenende mate bijdraagt aan de luchtkwaliteit. Het plan valt in één van de aangewezen categorieën die op grond van het Besluit nibm is vrijgesteld van toetsing aan de grenswaarden voor luchtkwaliteit. Toetsing aan de grenswaarden voor luchtkwaliteit is daarom achterwege gelaten.

Geconcludeerd wordt dat in de directe omgeving van de Rijndijk aan de grenswaarden voor luchtkwaliteit wordt voldaan. De Wlk staat de uitvoering van het plan niet in de weg.

4.5 Bodem

In het kader van een bestemmingsplan dient aangetoond te worden dat de kwaliteit van de bodem en het grondwater in het plangebied in overeenstemming is met het beoogde gebruik. Dit is geregeld in de Wet Bodembescherming. De bodemkwaliteit kan namelijk van invloed zijn op de beoogde functie van het plangebied. Indien sprake is van een functiewijziging zal er in veel gevallen een bodemonderzoek moeten worden uitgevoerd op de planlocatie. Middels dit onderzoek kan in beeld worden gebracht of de bodemkwaliteit en de beoogde functie van het plangebied bij elkaar passen.

Planspecifiek 

In het plangebied zijn meerdere bodemonderzoeken verricht. In eerste instantie is een verkennend bodemonderzoek gedaan om een globaal beeld te krijgen van de kwaliteit van de bodem. De resultaten van dit rapport (nr.131026v2 d.d. 2-12-13) zijn te vinden in bijlage 2. De conclusie van het rapport was een constatering van PAK verontreiniging in de bovengrond. Ook is een lichte oliereactie in het grondwater- en grondmonster waargenomen, echter deze zijn beneden de grenswaarden. Omdat ook oudere puinverharding aanwezig is op het perceel is aangeraden een verkennend onderzoek te doen naar asbest. Dit rapport is opgenomen in bijlage 3.

Om beter inzicht te krijgen in de verontreinigde gronden, door de aanwezige PAKconcentratie is tevens een aanvullend verkennend bodemonderzoek uitgevoerd. Deze is opgenomen in bijlage 4 (projectnr. 131104, d.d. 6-1-14).

Asbest

In rekenkundig opzicht overschrijdt noch de totale RE, noch de "deellokatie" van de zintuiglijk verontreinigde sleuven (1, 2 en 3), noch de worst-case benadering van sleuf 1 (met het meeste asbesthoudende materiaal) de grenswaarde van 100 mg/kgds. De maximaal gemeten waarde is 40,16 mg/kgds in sleuf 1.

Er kan echter niet definitief gesteld worden dat het gehalte aan asbest zo laag is dat aan de grenswaarde zal worden voldaan òf dat het gehalte aan asbest is zo hoog dat zeker niet aan de grenswaarde zal worden voldaan.

Daarom is formeel nader onderzoek naar asbest noodzakelijk.

Echter, gezien de aard van het funderingsmateriaal is het nader onderzoek in de praktijk onuitvoerbaar. Zelfs een grove indicatie van het gehalte aan asbest is slecht aan te geven aangezien de verhardingslaag in feite onbewerkt sloopafval (met name puin) betreft.

Voor partijen onbewerkt bouw- en sloopafval is het praktisch gezien onmogelijk om het gehalte aan asbest exact te bepalen. De stukken puin zijn namelijk te groot voor een representatieve monsterneming en het asbesthoudend afval is meestal zeer inhomogeen in de partij verdeeld. Daarom geldt het laatst gedane onderzoek als eindfase.

Om elk risico uit te sluiten kan overwogen worden de funderingslaag af te voeren onder vigerende regelgeving. Ook kan overwogen worden de situatie te laten zoals deze nu is (afgedekt). Indien er onderhoud aan de weg gedaan dient te worden, wordt toezicht door een DTA geadviseerd. Deze kan mogelijke asbestnesten separaat houden.

PAK verontreiniging

De PAK verontreiniging is op belendend perceel analytisch in boring niet aangetroffen, zodat geconcludeerd mag worden dat deze enkel op perceel Rijndijk 185 (loods) aanwezig is en niet binnen het plangebied.

Op basis van de gegevens uit de boringen en analyses uit rapport 130403 alsmede deze aanvulling, kan worden geconcludeerd dat op de huidige onderzoekslokatie milieuhygiënisch geen problemen te verwachten voor het afgeven van een omgevingsvergunning.

Voor de afvoer van grond geldt wel dat rekening moet worden gehouden dat indien grond van de locatie wordt afgevoerd deze niet zonder meer overal toegepast kan worden. Voor afvoer en hergebruik is het Besluit Bodemkwaliteit van toepassing.

4.6 Externe veiligheid

Externe veiligheid gaat over de beheersing van activiteiten met gevaarlijke stoffen. Die activiteiten kunnen bestaan uit het opslaan, verwerken of transporteren van gevaarlijke stoffen. Deze activiteiten kunnen een risico veroorzaken voor de leefomgeving. Daarnaast worden de risico's van het opstijgen en landen op vliegvelden ook onder het thema externe veiligheid gevangen. De risico's worden uitgedrukt in twee risicomaten; het plaatsgebonden (hierna: PR) en het groepsrisico (hierna: GR).

Voor de beoordeling van een ruimtelijk plan moet voor externe veiligheid worden vastgesteld of dit plan is gelegen binnen het invloedsgebied van een inrichting die valt onder het Besluit externe veiligheid inrichtingen (Bevi). Daarnaast wordt gekeken of het plan ligt binnen het invloedsgebied van de transportroute (weg, spoor, water of buisleiding) waarover gevaarlijke stoffen (o.a. LPG en benzine) worden vervoerd.

Planspecifiek

In de nabijheid van het plangebied zijn enkele risicobronnen aanwezig die van belang zijn voor onderhavig initiatief. De Omgevingsdienst Midden Holland heeft naar aanleiding van de ter inzage legging van het ontwerp bestemmingsplan gereageerd middels een advies over externe veiligheid. Dit advies is als bijlage bij het bestemmingsplan gevoegd.

Uit het advies blijkt dat het plangebied niet binnen een plaatsgebonden risicocontour PR=10-6 van een risicobron ligt. Het plaatsgebonden risico leidt volgens de geldende regelgeving niet tot beperkingen voor het plangebied.

Het groepsrisico vanwege de hogedrukaardgasleiding A-515 ligt mogelijk hoger dan de oriëntatiewaarde voor het groepsrisico. Om hier duidelijkheid over te krijgen zijn aanvullende berekeningen nodig. Omdat het een bijzondere leiding betreft is de gemeente hiervoor echter afhankelijk van de Gasunie. Het maximaal aantal berekende dodelijke slachtoffers als gevolg van een calamiteit bij de gasleiding A-515 bedraagt enkele honderden. Het toevoegen van drie woningen door middel van dit plan zal daar hooguit 7 personen aan toevoegen. Het groepsrisico van de overige risicobronnen is lager dan de oriëntatiewaarde voor het groepsrisico.

Uit hoofdstuk 5 en 6 van de Nota externe veiligheid Rijnwoude 2011blijkt dat mogelijk niet voldaan aan het streefbeeld van de nota dat het groepsrisico maximaal de oriëntatiewaarde voor het groepsrisico bedraagt. De oriëntatiewaarde wordt vanwege de hogedrukaardgasleiding A-515 mogelijk overschreden.

Het bevoegd gezag is van oordeel dat, gelet op de relatief kleine bijdrage van dit plan aan de totale effecten van een calamiteit, in deze specifieke situatie afgeweken kan worden van het streefbeeld als beschreven in de Nota externe veiligheid. Daarvoor zijn de volgende maatregelen genomen:

  • 4. Er zijn voorzieningen getroffen opdat de hulpdiensten tijdig gealarmeerd worden, snel ter plaatse kunnen zijn en beschikken over voldoende mogelijkheden om de calamiteit te kunnen bestrijden.
  • 5. Voor zover mogelijk worden aan de woningen bouwkundige maatregelen, zoals afsluitbare en uitschakelbare ventilatievoorzieningen en afzuigsystemen ter beperking van de risico's getroffen.
  • 6. De gemeente treedt in overleg met de Gasunie om te onderzoeken welke maatregelen mogelijk zijn om de risico's vanwege de hogedrukaardgasleiding A-515 te verlagen.
  • 7. De gemeente houdt de bevolking actief op de hoogte van de risico's en wat te doen bij een calamiteit.

De gemeenteraad is om de volgende redenen van oordeel dat het plan verantwoord is :

  • 1. Het plan betreft de realisatie van 3 woningen op ca. 390 meter van de hogedrukaardgasleiding A-515;
  • 2. Deze 3 woningen leiden tot een potentiële verhoging met 7 dodelijke slachtoffers van het aantal dodelijke slachtoffers die berekend zijn als gevolg van een calamiteit bij de A-515. Volgens de beschikbare risicoberekeningen gaat het, zonder dit plan, om enkele honderden dodelijke slachtoffers;
  • 3. Van de risico's van de A-515 zijn geen actuele en betrouwbare risicoberekeningen beschikbaar. Op verzoek van de gemeente wordt er al meer dan een jaar aan deze betrouwbare risicoberekeningen gewerkt. De gemeente is afhankelijk van de Gasunie voor het uitvoeren van deze berekeningen. Alleen de Gasunie kan de berekeningen voor deze specifieke leiding uitvoeren. Er is nog geen zicht op het gereed komen van deze berekeningen.
  • 4. De bijdrage van dit plan aan de al bestaande totale risico's van de A-515 is beperkt. Dit zal niet anders zijn bij de nu in uitvoering zijnde risicoberekeningen.

De gemeenteraad vindt het niet redelijk om, gelet op de bovenstaande punten en de onzekerheid over het wel beschikbaar komen van betrouwbare risicoberekeningen, de initiatiefnemer nog langer te laten wachten op de vaststelling van dit plan. De gemeente zal al het mogelijke doen wat binnen haar mogelijkheden ligt om de risico's vanwege de hogedrukaardgasleiding A-515 in de toekomst te beperken.

Gezien de hiervoor beschreven aspecten wordt dit bestemmingsplan uitvoerbaar geacht op het gebied van externe veiligheid.

4.7 Verkeer en parkeren

Het plangebied wordt ontsloten aan de Rijndijk. Dit is de verbindingsweg tussen Alphen aan den Rijn en Hazerswoude Rijndijk. De weg kent een 60 km/u regime. De gemeente is echter voornemens de bebouwde komgrens te corrigeren, waardoor het plangebied binnen de bebouwde kom van Hazerswoude-Rijndijk komt te liggen. Door de ontwikkeling van dit plan zal geen onevenredige toename van verkeer op deze weg plaatsvinden.

De gemeente Rijnwoude heeft in 2009 de parkeernota Rijnwoude vastgesteld. In de nota zijn parkeernomen vastgesteld die gebruikt zullen worden als toetsingskader bij nieuwbouw en functiewijzigingen. De parkeernormen zijn gebaseerd op landelijke cijfers en vertaald naar de situatie in Rijnwoude.

Parkeren zal op de percelen zelf moeten gebeuren. Per woning dienen 2,7 parkeerplaatsen gerealiseerd te worden. Dit zal geen probleem aangezien de percelen alle drie een oppervlakte hebben van meer dan 500 m2.

4.8 Water

Het aspect water is van groot belang binnen de ruimtelijke ordening. Door verstandig om te gaan met het water kan verdroging en wateroverlast (waaronder ook risico van overstromingen e.d.) voorkomen worden en de kwaliteit van het water hoog gehouden worden.

Op Rijksniveau en Europees niveau zijn de laatste jaren veel plannen en wetten gemaakt met betrekking tot water. De belangrijkste hiervan zijn het Waterbeleid voor de 21e eeuw, de Waterwet en het Nationaal Waterplan.

Waterbeleid voor de 21e eeuw 

De Commissie Waterbeheer 21ste eeuw heeft in augustus 2000 advies uitgebracht over het toekomstige waterbeleid in Nederland. De adviezen van de commissie staan in het rapport ‘Anders omgaan met water, Waterbeleid voor de 21ste eeuw’ (WB21). De kern van het rapport WB21 is dat water de ruimte moet krijgen, voordat het die ruimte zelf neemt. In het Waterbeleid voor de 21e eeuw worden twee principes (drietrapsstrategieën) voor duurzaam waterbeheer geïntroduceerd:

  • vasthouden, bergen en afvoeren: dit houdt in dat overtollig water zoveel mogelijk bovenstrooms wordt vastgehouden in de bodem en in het oppervlaktewater. Vervolgens wordt zo nodig het water tijdelijk geborgen in bergingsgebieden en pas als vasthouden en bergen te weinig opleveren wordt het water afgevoerd.
  • schoonhouden, scheiden en zuiveren: hier gaat het erom dat het water zoveel mogelijk schoon wordt gehouden. Vervolgens worden schoon en vuil water zoveel mogelijk gescheiden en als laatste komt het zuiveren van verontreinigd water aan het bod.

Waterwet

Centraal in de Waterwet staat een integraal waterbeheer op basis van de ‘watersysteembenadering’. Deze benadering gaat uit van het geheel van relaties binnen watersystemen. Denk hierbij aan de relaties tussen waterkwaliteit, -kwantiteit, oppervlakte- en grondwater, maar ook aan de samenhang tussen water, grondgebruik en watergebruikers.

Het doel van de Waterwet is het integreren van acht bestaande wetten voor waterbeheer. Door middel van één watervergunning regelt de wet het beheer van oppervlaktewater en grondwater en de juridische implementatie van Europese richtlijnen, waaronder de Kaderrichtlijn Water. Via de Waterwet gelden verschillende algemene regels. Niet alles is onder algemene regels te vangen en daarom is er de integrale watervergunning. In deze integrale watervergunning zijn zes vergunningen uit eerdere wetten (inclusief keurvergunning) opgegaan in één aparte watervergunning.

Nationaal Waterplan 

Op basis van de Waterwet is het Nationaal Waterplan vastgesteld door het kabinet. Het Nationaal Waterplan geeft op hoofdlijnen aan welk beleid het Rijk in de periode 2009 - 2015 voert om te komen tot een duurzaam waterbeheer. Het Nationaal Waterplan richt zich op bescherming tegen overstromingen, beschikbaarheid van voldoende en schoon water en de diverse vormen van gebruik van water. Het geeft maatregelen die in de periode 2009-2015 genomen moeten worden om Nederland ook voor toekomstige generaties veilig en leefbaar te houden en de kansen die water biedt te benutten.

Hoogheemraadschap Rijnland

Waterbeheerplan 2010-2015
Voor de planperiode 2010-2015 is het Waterbeheerplan (WBP) van Rijnland van toepassing. In dit plan geeft Rijnland aan wat haar ambities voor de komende planperiode zijn en welke maatregelen in het watersysteem worden getroffen Het nieuwe WBP legt meer dan voorheen accent op uitvoering. De drie hoofddoelen zijn veiligheid tegen overstromingen, voldoende water en gezond water. Wat betreft veiligheid is cruciaal dat de waterkeringen voldoende hoog en stevig zijn én blijven en dat rekening wordt gehouden met mogelijk toekomstige dijkverbeteringen. Wat betreft voldoende water gaat het erom het complete watersysteem goed in te richten, goed te beheren en goed te onderhouden. Daarbij wil Rijnland dat het watersysteem op orde en toekomstvast wordt gemaakt, rekening houdend met klimaatverandering. Immers, de verandering van het klimaat leidt naar verwachting tot meer lokale en heviger buien, perioden van langdurige droogte en zeespiegelrijzing. Het waterbeheerplan sorteert voor op deze ontwikkelingen.

Keur en Beleidsregels 2009

Per 22 december 2009 is een nieuwe Keur in werking getreden, alsmede nieuwe Beleidsregels die in 2011 geactualiseerd zijn. Een nieuwe Keur is nodig vanwege de totstandkoming van de Waterwet en daarmee verschuivende bevoegdheden in onderdelen van het waterbeheer. Verder zijn aan deze Keur bepalingen toegevoegd over het onttrekken van grondwater en het infiltreren van water in de bodem. De 'Keur en Beleidsregels' maken het mogelijk dat het Hoogheemraadschap van Rijnland haar taken als waterkwaliteits- en kwantiteitsbeheerder kan uitvoeren. De Keur is een verordening van de waterbeheerder met wettelijke regels (gebod- en verbodsregels) voor:

  • Waterkeringen (onder andere duinen, dijken en kaden),
  • Watergangen (onder andere kanalen, rivieren, sloten, beken),
  • Andere waterstaatswerken (o.a. bruggen, duikers, stuwen, sluizen en gemalen).

De Keur bevat verbodsbepalingen voor werken en werkzaamheden in of bij de bovengenoemde waterstaatswerken. Er kan een ontheffing worden aangevraagd om een bepaalde activiteit wel te mogen uitvoeren. Als Rijnland daarin toestemt, dan wordt dat geregeld in een Watervergunning op grond van de Keur. De Keur is daarmee een belangrijk middel om via vergunningverlening en handhaving het watersysteem op orde te houden of te krijgen. In de Beleidsregels (voluit: Beleidsregels en Algemene Regels Inrichting Watersysteem 2011 Keur), die bij de Keur horen, is het beleid van Rijnland nader uitgewerkt.

Riolering en afkoppelen

Overeenkomstig het rijksbeleid geeft Rijnland de voorkeur aan het scheiden van hemelwater en afvalwater, mits het doelmatig is. De voorkeursvolgorde voor de omgang met afvalwater houdt in dat het belang van de bescherming van het milieu vereist dat:

  • 1. het ontstaan van afvalwater wordt voorkomen of beperkt;
  • 2. verontreiniging van afvalwater wordt voorkomen of beperkt;
  • 3. afvalwaterstromen gescheiden worden gehouden, tenzij het niet gescheiden houden geen nadelige gevolgen heeft voor een doelmatig beheer van afvalwater;
  • 4. huishoudelijk afvalwater en afvalwater dat daarmee wat biologische afbreekbaarheid betreft overeenkomt, worden ingezameld en naar een afvalwaterzuiveringsinrichting getransporteerd;
  • 5. ander afvalwater dan bedoeld in onderdeel d:
  • zo nodig na zuivering bij de bron, wordt hergebruikt;
  • lokaal, zo nodig na retentie of zuivering bij de bron, in het milieu wordt gebracht.

De gemeente kan gebruik maken van deze voorkeursvolgorde bij de totstandkoming van het gemeentelijk rioleringsplan (GRP). Deze voorkeursvolgorde is echter geen dogma. De uiteindelijke afweging zal lokaal moeten worden gemaakt, waarbij doelmatigheid van de oplossing centraal moet staan.

Zorgplicht en preventieve maatregelen voor Hemelwater
Voor de verwerking van hemelwater wijst Rijnland op de zorgplicht en op het nemen van preventieve maatregelen. Het verdient aanbeveling daar waar mogelijk aandacht te besteden aan maatregelen bij de bron. Preventie heeft de voorkeur boven 'end-of-pipe' maatregelen. Uitgangspunt is dat het te lozen hemelwater geen significante verslechtering van de kwaliteit van het ontvangende oppervlaktewater mag veroorzaken en emissie van vervuilende stoffen op het oppervlaktewater waar mogelijk wordt voorkomen door bijvoorbeeld:

  • duurzaam bouwen;
  • het toepassen berm- of bodempassage;
  • toezicht en controle tijdens de aanlegfase en handhaving tijdens de beheerfase ter voorkoming van verkeerde aansluitingen;
  • het regenwaterriool uit te voeren met (straat)kolken voorzien van extra zand- slibvang of zakputten (putten met verdiepte bodem) op tactische plekken in het stelsel;
  • adequaat beheer van straatoppervlak, straatkolken en zakputten (straatvegen en kolken/putten zuigen);
  • het toepassen van duurzaam onkruidbeheer;
  • de bewoners, gebruikers en beheerders voor te lichten over de werking van de riolering en een juist gebruik hiervan;
  • het vermijden van vervuilende activiteiten op straat zoals auto's wassen en repareren en chemische onkruidbestrijding.

Daar waar ondanks de zorgplicht en de preventieve maatregelen het te lozen hemelwater naar verwachting een aanmerkelijk negatief effect heeft op de oppervlaktewaterkwaliteit, kan in overleg tussen gemeente en waterschap gekozen worden voor aanvullende voorzieningen, een verbeterd gescheiden stelsel of - als laatste keus - aansluiten op het gemengde stelsel. Ook kan de gemeente in overleg met het waterschap kiezen voor een generieke 'end-of-pipe' aanpak. Deze keuze moet dan expliciet gemaakt worden in het GRP.

Planspecifiek

Het concept van dit bestemmingsplan is besproken met het Hoogheemraadschap van Rijnland. Het Hoogheemraadschap heeft hierop een reactie gegeven die in deze waterparagraaf is verwerkt.

Regionale waterkering 

Bij het plangebied loopt een regionale waterkering (Rijndijk). Vanuit het oogpunt van veiligheid, stabiliteit, dagelijkse zorg (maaien en ophalen en afsteken van talud), maar ook in verband met toekomstige versterkingen gelden er door deze regionale waterkering beperkingen aan bouwwerken, kabels en leidingen, verhardingen en beplanting. In het plangebied is een klein gedeelte van het bouwvlak gelegen binnen de beschermingszone van de waterkering. Door de beschermingszone is geregeld dat dit gedeelte vrij blijft van bebouwing. De geplande bebouwing blijft buiten het beoordelingsprofiel van de waterkering. Voor wat betreft voorgenomen bouwactiviteiten in de dubbelbestemming "Waterstaat-Waterkering" zal bij de waterbeheerder in casu, het Hoogheemraadschap van Rijnland, advies worden ingewonnen.

Overige watergangen

Midden door het plangebied loopt een overige watergang. Deze watergang in het plangebied is bestemd als "water". Voor deze overige watergang geldt dat de eigenaren van de aanpalende kavels verantwoordelijk zijn voor het onderhoud van de watergang (en dat deze dan ook bereikbaar moet zijn). Dit wordt in de koopovereenkomst vastgelegd.

Toename verhard oppervlak

Als door de nieuwe ontwikkeling de hoeveelheid verhard oppervlak in het gebied met meer dat 500 m2 toeneemt, dan moet 15% van deze toename aan verhard oppervlak worden gecompenseerd door het graven van functioneel open water zodat voldoende bergingscapaciteit binnen het watersysteem aanwezig blijft. Om dit te onderzoeken, is een berekening opgesteld.

afbeelding "i_NL.IMRO.0484.B128rijndijk189a-VA01_0011.png"

In de berekening is te zien dat bij een footprint van woningen van 10x10 meter, garages en toeritten tot deze garages, er ten opzichte van de bestaande situatie een toename van verharding is van 563 m2. Hiervan moet 15% gecompenseerd worden. Tevens wordt er oppervlakte water gedempt (9 m2). Ook dit moet gecompenseerd worden. De compensatie kan niet plaatsvinden in het plangebied zelf. Daarom vindt deze compensatie plaats in het plangebied Orionhof dat zich in hetzelfde peilvlak bevindt als Rijndijk 189a. In dit plangebied is ruimte voldoende aanwezig om de compensatie toe te passen, ook als dit nog iets ruimer wordt dan in de berekening is getoond. De toekomstig op te richten bebouwing is vergunningplichtig in het kader van de Keur. De vergunningenprocedure en -doorlooptijd staan los van de procedure van de watertoets.

Gezien de aard van de ontwikkeling, de afstemming met het Hoogheemraadschap (dat heeft aangegeven dat de gewenste wijzigingen correct zijn verwerkt) en de watercompensatie elders, kan gesteld worden dat het initiatief uitvoerbaar is op het gebied van water.

4.9 Ecologie

Gebiedsbescherming

De Natuurbeschermingswet richt zich op de bescherming van gebieden. In de Natuurbeschermingswet zijn de volgende gronden aangewezen en beschermd:

  • Natura 2000-gebieden (Habitat- en Vogelrichtlijngebieden);
  • beschermde Natuurmonumenten;
  • wetlands.

Naast deze drie soorten gebieden is de (Provinciale) Ecologische Hoofdstructuur ((P)EHS) in het kader van de gebiedsbescherming van belang. De (P)EHS is een samenhangend netwerk van belangrijke natuurgebieden in Nederland. Zij bestaat uit bestaande natuurgebieden, nieuwe natuurgebieden en ecologische verbindingszones. De EHS draagt bij aan het bereiken van de hoofddoelstelling van het Nederlandse natuurbeleid, namelijk: 'Natuur en landschap behouden, versterken en ontwikkelen, als bijdrage aan een leefbaar Nederland en een duurzame samenleving'. Hiertoe zijn de volgende uitgangspunten van belang:

  • vergroten: het areaal natuur uitbreiden en zorgen voor grotere aaneengesloten gebieden;
  • verbinden: natuurgebieden zoveel mogelijk met elkaar verbinden;
  • verbeteren: de omgeving zo beïnvloeden dat in natuurgebieden een zo hoog mogelijke natuurkwaliteit haalbaar is.

Soortenbescherming

De Flora- en faunawet regelt de bescherming van de in het wild voorkomende inheemse planten en dieren: de soortenbescherming. De wet richt zich vooral op het in stand houden van populaties van soorten die bescherming behoeven. In de wet zijn algemene en specifieke verboden vastgelegd ten aanzien van beschermde dier- en plantensoorten. Naast een aantal in de wet (en daarop gebaseerde besluiten) vermelde specifieke mogelijkheden om ontheffing te verlenen van in de wet genoemde verboden, geeft de wet een algemene ontheffingsbevoegdheid aan de minister (artikel 75, lid 3). Bekeken moet worden in hoeverre ruimtelijke plannen negatieve gevolgen hebben op beschermde dier- en plantensoorten en of er compenserende of mitigerende maatregelen genomen moeten worden.

Daarnaast geldt voor iedereen in Nederland altijd, dus ook los van het voorliggende beoogde ruimtelijke project, dat de zorgplicht nageleefd moet worden bij het verrichten van werkzaamheden. Voor menig soort geldt dat indien deze zorgplicht nagekomen wordt een bepaald beoogd project uitvoerbaar is.

Planspecifiek

Om de gevolgen van gebiedsbescherming te beoordelen is onderzocht of er zich in de nabijheid van plangebied beschermde natuurgebieden zijn gesitueerd. Er zijn, behalve de EHS, geen natuurgebieden in de omgeving gesitueerd. In bijgevoegde afbeelding is de ligging van het plangebied ten opzichte van de EHS aangegeven.

afbeelding "i_NL.IMRO.0484.B128rijndijk189a-VA01_0012.png"

Ligging onderzoekslocatie ten opzichte van de EHS (groen) (bron: quick-scan Econsultancy)

Het plangebied ligt echter niet in de directe omgeving van ecologische hoofdstructuur, strategische reservering natuur, weidevogelgebied en karakteristieke landschapselementen, zodat er geen belemmeringen vanuit provinciaal ecologisch beleid bestaan.

Om te onderzoeken of er diersoorten aanwezig zijn die mogelijk verstoord worden door de nieuwe ontwikkeling, is op 30 april 2014 een quick-scan flora en fauna uitgevoerd (rapportnr.: 14043332).

Uit de conclusie van de quick-scan blijkt dat gelet op de gevonden en te verwachten ecologische waarden en de beoogde planontwikkeling de verwachting is dat de wijziging van het bestemmingsplan uitvoerbaar is. Tijdens het uitvoeren van de werkzaamheden dient het bepaalde in de Flora- en faunawet in acht te worden genomen, hetgeen goed mogelijk is. Voor een complete overweging wordt verder verwezen naar Bijlage 6.

4.10 Archeologie en cultuurhistorie

In elk bestemmingsplan moet een beschrijving worden opgenomen van de wijze waarop met de in het gebied aanwezige cultuurhistorische waarden wordt omgegaan. Denk aan aanwezige monumenten, historische gebieden, kenmerkende (straat)beelden en landschapselementen. Bij het maken van plannen kan ook (weer) rekening gehouden worden met al deze elementen die er vroeger wel waren maar nu niet meer. Een bijzonder onderdeel van cultuurhistorie is archeologie.

Cultuurhistorie

Onder de noemer Modernisering Monumentenzorg (MoMo) heeft het Rijk in 2009 een aanzet gegeven voor een goede afweging van het belang van de cultuurhistorie in de ruimtelijke ordening. Gepleit wordt voor een verantwoorde verankering van de integrale cultuurhistorie in structuurvisies, bestemmingsplannen en milieueffectrapportages. Het voornaamste doel hiervan is om het cultuurhistorische karakter van Nederland op gebiedsniveau te behouden en te versterken. De aandacht voor cultuurhistorie is ook wettelijk vastgelegd in het Besluit ruimtelijke ordening. Artikel 3.1.6 onder 2 van dit Besluit geeft aan dat “een beschrijving van de wijze waarop met de in het gebied aanwezige cultuurhistorische waarden en in de grond aanwezige of te verwachten monumenten rekening is gehouden” in het bestemmingsplan opgenomen moet worden.

Bij ruimtelijke ingrepen dient rekening te worden gehouden met de natuurwaarden ter plaatse. Daarbij wordt onderscheid gemaakt tussen gebiedsbescherming en soortenbescherming. Gebiedsbescherming kan volgen uit de aanwijzing van een gebied. Wat betreft soortenbescherming is de Flora- en faunawet van toepassing. Hier wordt onder andere de bescherming van plant- en diersoorten geregeld. Bij ruimtelijke ontwikkelingen dient te worden getoetst of er sprake is van negatieve effecten op de aanwezige natuurwaarden. Indien hiervan sprake is, moet ontheffing of vrijstelling worden aangevraagd.

Archeologie

De verantwoordelijkheid voor het archeologiebeleid is sinds 2008 van de provincie verschoven naar de gemeenten. Naar aanleiding daarvan heeft de gemeente Rijnwoude gemeentelijk archeologiebeleid opgesteld. De totstandkoming daarvan is in samenwerking met de gemeenten Zoeterwoude en Leiden gebeurd. Binnen de ABRgemeenten en de werkgroep Harmonisatie van Beleid is gekeken naar de uitbreiding van het Archeologiebeleid voor het gehele grondgebied van de nieuwe gemeente.

Het Archeologiebeleid is op 13 december 2012 door de gemeenteraad vastgesteld en bedoeld om de in de grond aanwezige archeologische waarden te beschermen. In verband hiermede is een uitgangspuntennotitie archeologie opgesteld, waarin een beeld wordt geschetst van nieuwe verantwoordelijkheden ten aanzien van archeologie en van de wijze waarop de gemeente Rijnwoude aan deze nieuwe taak vorm en inhoud kan geven.

In het gemeentelijke Archeologiebeleid wordt aan de hand van verschillende categorieën bepaald wanneer archeologisch onderzoek nodig is (en wanneer niet). Dit is afhankelijk van de archeologische verwachtingswaarde. Onderscheid is gemaakt naar wat bekende waarden zijn en wat, op grond van een theoretisch model, kan worden verwacht.

Het gemeentelijk beleid gaat primair uit van "behoud in situ". Dit betekent dat archeologische resten zoveel mogelijk in de bodem bewaard moeten blijven. Daar waar verstoring van de bodem onvermijdelijk is, dient de ontwikkelaar zorg te dragen voor archeologisch onderzoek zodat de informatie over het verleden middels opgravingen behouden blijft. Het beleid is daarbij streng waar het moet en minder streng waar het kan en niet tot kennisverlies leidt. Dit uitgangspunt vertaalt zich naar de vrijstellingsgrenzen: daar waar veel en waardevolle archeologische resten verwacht worden, wordt aangesloten op de wettelijke voorgeschreven vrijstellingsgrens van 100 m2. Op plaatsen waar de kans op het aantreffen van archeologische resten klein is, is de kans op informatieverlies eveneens klein en worden ruimere vrijstellingsgrenzen gehanteerd.

Planspecifiek

Cultuurhistorie

Het plan voor de 3 woningen wordt ingepast binnen de historische structuur zoals die aanwezig is aan de Rijndijk. Het open weidelandschap wordt niet aangetast, de nieuwbouw vindt plaats tussen de bestaande woning Rijndijk 189a en de dijk. De woningen passen qua maatvoering en verschijningsvorm binnen de van oudsher aanwezige bebouwing langs de Rijndijk.

Archeologie

Onderstaande afbeelding is een uitsnede van de verwachtingskaart van de (voormalige) gemeente Rijnwoude. De gele gebieden betreffen gebieden met 'Verwachtingswaarde archeologie 3'. De zalmroze gebieden betreffen gebieden met 'Verwachtingswaarde archeologie 2' en de donkerrode gebieden betreffen gebieden met 'Verwachtingswaarde archeologie 1'. Het plangebied valt geheel in een gebied met verwachtingswaarde 2.

afbeelding "i_NL.IMRO.0484.B128rijndijk189a-VA01_0013.jpg"

Uitsnede verwachtingskaart Rijnwoude

Omdat het plangebied Verwachtingswaarde 2 heeft (en daarnaast tevens onderdeel is van het besluitvlak 'Romeinse Limes' in de Verordening Ruimte 2014 van de provincie) is voor het plangebied een archeologisch bureauonderzoek en een inventariserend veldonderzoek (IVO), verkennende fase, uitgevoerd (bijlage 4, projectnr.: 38570613/57652 d.d. juli 2013). Op basis van beide onderzoeken blijkt dat de archeologische verwachting voor intacte archeologische resten in het plangebied zeer laag is. Ten eerste bestaat de ondergrond uit veen- en kleilagen die een lage verwachting hebben vanwege de slechte waterhuishouding. Daarnaast blijkt uit het veldonderzoek dat de in het plangebied voorkomende kleisedimenten van de Oude Rijn zijn vergraven tijdens tuinieren of afgegraven bij afkleien. Op basis hiervan heeft de top van een natuurlijk uitserst siltig kleipakket (pakket 4), dat voorkomt op een diepte van 80-90 cm (-1,8 tot -1,6 m NAP) in de tuin en 1,0 tot 1,3 m (-2,5 tot -2,1 m NAP) in het perceel van de gemeente, een zeer lage verwachting voor alle perioden die kunnen voorkomen op de afzettingen van de Oude Rijn (Neolithicum tot en met Late Middeleeuwen). Ook voor resten uit de Late Middeleeuwen en Nieuwe tijd heeft het gebied een zeer lage archeologische verwachting omdat ook de resten van eventuele bewoning aan de Rijndijk zullen zijn weggegraven met het afkleien.

In pakket 4 van de bodemopbouw is de archeologische verwachting het hoogst. Het genoemde pakket 4 komt voor wat betreft de beschrijving overeen met één van de pakketten zoals deze is aangetroffen bij het archeologisch proefsleuvenonderzoek ten zuiden van het plangebied, namelijk de komklei. IDDS Archeologie gaat er echter vanuit dat er in dit geval geen sprake is van komklei en dat deze laag in het huidige plangebied een hogere verwachting heeft. De verwachting is echter lager dan die van de neolithische vindplaats 100 meter ten zuiden van het plangebied. Gezien ook het feit dat de grond naar verwachting 0,8-1,3 m is weggegraven, zouden hooguit nog diepere sporen aanwezig kunnen zijn. Om bovengenoemde redenen is aanvullend archeologisch onderzoek niet noodzakelijk.

Op basis van de resultaten van het bureauonderzoek en inventariserend veldonderzoek is geen vervolgonderzoek nodig. In het bestemmingsplan wordt geen dubbelbestemming archeologie opgenomen, omdat de verwachting dat er archeologische restanten aanwezig zijn, uitgesloten is. Hiermee is het initiatief uitvoerbaar op het gebied van cultuurhistorie en archeologie.

4.11 Duurzaamheid

Het algemene kader voor het milieubeleid van de gemeente Rijnwoude van 2011-2014 is vastgelegd in de Duurzaamheidsagenda "Samenwerken en Verbinden", die door de raad op 15 december 2011 is vastgesteld. Deze vervangt het Milieubeleidsplan 2003-2010.

Dit beleid kent een directe relatie met de ruimtelijke ordening, bijvoorbeeld met betrekking tot de doelstellingen voor duurzame inrichting, voor duurzame (steden)bouw, als ook het klimaat en energietoepassing.

De woningen zullen moeten voldoen aan de meest recente eisen omtrent het duurzaam materiaal- en energiegebruik. Dit is middels het bouwbesluit gewaarborgd. Het past daarmee binnen het streven vanuit de Duurzaamheidsagenda "Samenwerken en Verbinden".

Hoofdstuk 5 Juridische planbeschrijving

Voor het bestemmingsplan is gebruik gemaakt van de in de Wet ruimtelijke ordening opgenomen standaardvorm van de Standaard Vergelijkbare Bestemmingplannen 2012 (SVBP 2012).

Dit bestemmingsplan bestaat uit een verbeelding, planregels en een toelichting. De verbeelding en de planregels vormen samen het juridisch bindende gedeelte van het bestemmingsplan. Beide planonderdelen dienen in onderlinge samenhang te worden bezien en toegepast. Op de verbeelding zijn de bestemmingen aangewezen. Aan deze bestemmingen zijn bouwregels en regels betreffende het gebruik gekoppeld.

De toelichting heeft geen rechtskracht, maar vormt niettemin een belangrijk onderdeel van het plan. De toelichting van dit bestemmingsplan geeft een weergave van de beweegredenen, de onderzoeksresultaten en de beleidsuitgangspunten die aan het bestemmingsplan ten grondslag liggen. Ook is de toelichting van wezenlijk belang voor een juiste interpretatie en toepassing van het bestemmingsplan. Tot slot maakt een eventuele bijlage onlosmakelijk onderdeel uit van het bestemmingsplan.

5.1 Inleidende regels

Hoofdstuk 1 (artikelen 1 en 2) bevat inleidende regels. In de inleidende regels worden de in het bestemmingsplan voorkomende begrippen beschreven en wordt de wijze van meten uitgelegd.

5.2 Bestemmingen

Hoofdstuk 2 bevat de bestemmingen. In totaal zijn er twee enkelbestemmingen en één dubbelbestemming.

Artikel 3 Water

De belangrijkste watergangen in het plangebied zijn bestemd als 'Water'. Deze bestemming is gericht op het behoud en beheer van de bestaande watergangen.

Artikel 4 Wonen

De nieuw te bouwen woningen zijn bestemd als 'Wonen'. Binnen deze bestemming zijn naast wonen ook kleinschalige bedrijfsmatige activiteiten en aan-huis-gebonden beroepen toegestaan.

Voor wat betreft de bouwregels is aangesloten bij de woonbestemming in het vigerend bestemmingsplan. Op de verbeelding is aangegeven hoe hoog de maximale goot- en bouwhoogte mogen zijn. Per bouwvlak is één vrijstaande woning toegestaan.

Artikel 5 Waterstaat - Waterkering

Middels deze dubbelbestemming worden dijken en andere waterkerende elementen beschermd. Deze dubbelbestemming beperkt de bebouwingsmogelijkheden zodat de waterkering gewaarborgd blijft.

5.3 Algemene regels

In de Algemene Regels zijn regels opgenomen die voor het hele plangebied gelden.

Artikel 6 Antidubbeltelregel

In deze regels is opgenomen dat grond die eerder in aanmerking is genomen bij het toestaan van een bouwplan, bij de beoordeling van latere bouwplannen buiten beschouwing blijft.

Artikel 7 Algemene bouwregels en Artikel 8 Algemene gebruiksregels

In deze artikelen zijn regels opgenomen voor het bouwen en het gebruiken die in het gehele plangebied gelden. Dit gaat bijvoorbeeld over ondergronds bouwen.

In de Algemene gebruiksregels is vermeld welk gebruik in ieder geval niet is toegestaan binnen het plangebied.

Artikel 9 Algemene afwijkingsregels en Artikel 10 Algemene wijzigingsregels.

In deze artikelen zijn de regels voor kleine afwijkingen ten opzichte van de bouwregels uit de bestemmingen opgenomen. Het bevoegd gezag kan voor dergelijke afwijkingen een omgevingsvergunning verlenen.

5.4 Overgangs- en slotregels

Hoofdstuk 4 (artikel 11 en 12) bevat bepalingen omtrent het overgangsrecht, de hardheidsclausule en de slotregel.

Hoofdstuk 6 Economische uitvoerbaarheid

Bij de voorbereiding van een bestemmingsplan dient, op grond van artikel 3.1.6 lid 1, sub f van het Bro, onderzoek plaats te vinden naar de (economische) uitvoerbaarheid van het plan. In principe dient bij vaststelling van een ruimtelijk besluit tevens een exploitatieplan vastgesteld te worden om verhaal van plankosten zeker te stellen. Op basis van 'afdeling 6.4 grondexploitatie', artikel 6.12, lid 2 van de Wro kan de gemeenteraad bij het besluit tot vaststelling van het bestemmingsplan echter besluiten geen exploitatieplan vast te stellen indien:

  • het verhaal van kosten van de grondexploitatie over de in het plan of besluit begrepen gronden anderszins verzekerd is;
  • het bepalen van een tijdvak of fasering als bedoeld in artikel 6.13, eerste lid, onder c, 4°, onderscheidenlijk 5°, niet noodzakelijk is;
  • het stellen van eisen, regels, of een uitwerking van regels als bedoeld in artikel 6.13, tweede lid, onderscheidenlijk b, c of d, niet noodzakelijk is.

Planspecifiek

De gemeente Alphen aan den Rijn heeft een grondexploitatie voor de herontwikkeling van de locatie Rijndijk 189a. Hierin zijn de kosten voor de herontwikkeling van de locatie en het bouw- en woonrijp maken opgenomen. Kostenverhaal vindt plaats door uitgifte van twee bouwkavels, de verkoop van de bestaande woning en een overeenkomst met de eigenaar van Rijndijk 189. Hiermee is het plan financieel haalbaar.

Hoofdstuk 7 Maatschappelijke uitvoerbaarheid

7.1 Inleiding

Bij de voorbereiding van een (voor)ontwerp bestemmingsplan dient op grond van artikel 3.1.6 lid 1 Wro sub c overleg te worden gevoerd als bedoeld in artikel 3.1.1 Bro. Op basis van het eerste lid van dit artikel wordt overleg gevoerd met waterschappen en met die diensten van provincie en Rijk die betrokken zijn bij de zorg voor de ruimtelijke ordening of belast zijn met de behartiging van belangen die in het plan in het geding zijn. Voor kleinere plannen kan, in overleg, afgezien worden van dit overleg.

Een ontwerpbestemmingsplan dient conform afdeling 3.4 Awb gedurende 6 weken ter inzage gelegd worden. Hierbij is er de mogelijkheid voor een ieder om zienswijzen in te dienen op het plan. Na vaststelling door de Raad wordt het vaststellingsbesluit bekend gemaakt. Het bestemmingsplan ligt na bekendmaking 6 weken ter inzage. Gedurende deze termijn is er de mogelijkheid beroep in te dienen bij de Afdeling bestuursrechtspraak van de Raad van State. Het bestemmingsplan treedt vervolgens daags na afloop van de tervisielegging in werking als er geen beroep is ingesteld. Is er wel beroep ingesteld dan treedt het bestemmingsplan ook in werking, tenzij naast het indienen van een beroepschrift ook om een voorlopige voorziening is gevraagd. De schorsing van de inwerkingtreding eindigt indien de voorlopige voorziening wordt afgewezen. De procedure eindigt met het besluit van de Afdeling bestuursrechtspraak van de Raad van State.

7.2 Overleg

Conform de gemeentelijke inspraakverordening kan het bestuursorgaan zelf besluiten of inspraak wordt verleend bij de voorbereiding van gemeentelijk beleid. In het voorliggende geval wordt gezien de geringe planologische wijziging geen voorontwerpbestemmingsplan ter inzage gelegd. Wel is vooroverleg gepleegd met het Hoogheemraadschap van Rijnland. De resultaten hiervan zijn verwerkt in de waterparagraaf, paragraaf 4.8.

Het ontwerp bestemmingsplan Rijndijk 189a - Hazerswoude-Rijndijk zal inclusief bijbehorende bijlagen voor een periode van zes weken voor iedereen ter inzage gelegd worden.